Dvosoban stan na prodaju, Kneginje Ljubice, 193.900€, 43m²






















193.900 €
4.509 € / m2
- Stan u zgradi
- Centralno grejanje
- Prostorije: terasa
- Uknjiženo
- Oglas oglašava agencija pod reg. brojem 145
- 1 lift
Opis oglasa
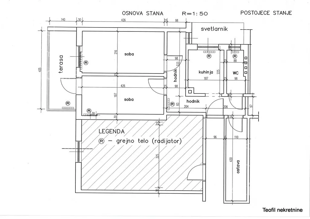
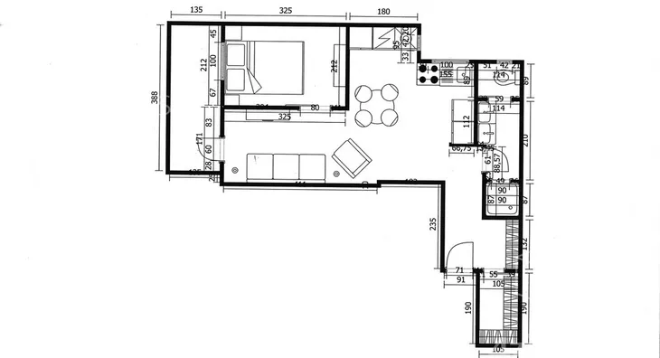
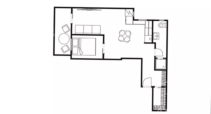
RETKO U PONUDI! U prilici smo da Vam ponudimo stan od 43m2 sa mogućnošću dodavanja još oko 4m2 na izuzetnoj lokaciji i u izuzetnoj zgradi. Nepokretnost se nalazi na 5tom spratu predratne zgrade koja ima izuzetno lep ulaz i nov lift, u ulici Kneginje Ljubice. Zgrada ima centralno grejanje.
Trenutna je to stan sa predsobljem, ostavom, kupatilom, kuhinjom, dve sobe i terasom.
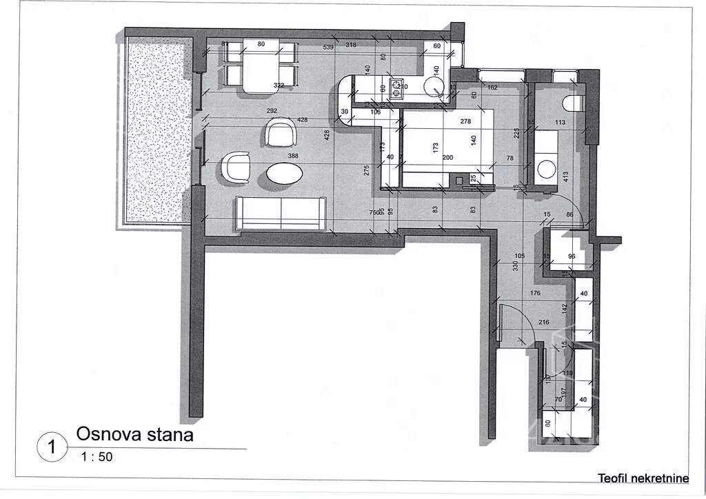
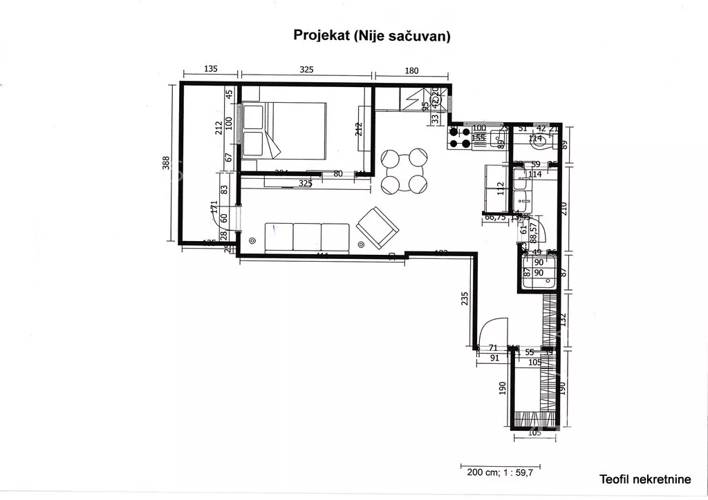
Stan zahteva veliku adaptaciju, ali i ima velike mogućnosti da se adaptira na više načina, što kupcu otvara mogućnost da ovu nekretninu prilagodi svojim željama i potrebama.
Ovo je nepokretnost koju treba pogledati. U prilogu slika su i trenutno postojeće stanje, kao i neke od mogućih načina adaptacije.
Stan je uknjižen.
Prodaju vodi Milojević Dragan br. licence 462,
060... (prikaži broj telefona)
Agencijska provizija je 2% od dogovorene kupoprodajne cene uknjizen Dragan
060... (prikaži broj telefona)
Kneginje Ljubice -imamo slicne NEKRETNINE BEOGRAD http://www.teofilnekretnine.com/stan-beograd/kartica.php?id=4582
*Sačuvaj oglas uz belešku i primaj obaveštenja o njihovom pojeftinjenju ili pojavljivanju sličnih
Prikaz stana na mapi
Parkovi u blizini
- Pančićev park8 min
- Univerzitetski park14 min
- Dečiji zabavni park17 min

Obeležja kulture u blizini
- Spomenik Čukur česma4 min
- Fontana Mike Alasa10 min
- Sebilj česma8 min

Škole/Fakulteti/Vrtići u blizini
- Osnovna škola (Osnovna škola Skadarlija)4 min
- Srednja škola (Prva beogradska gimnazija)5 min
- Vrtić (Dečiji vrtić Lola)8 min
- Fakultet (Univerzitet Nikola Tesla)7 min

- Bolnica (Specijalna bolnica Sveti vid)4 min
- Klinika (Poliklinika Aarona Medical B)8 min
- Teretana (Teretana Little Gym)3 min
- Prodavnica (Soulfood market)4 min
- Restoran (Restoran Holesterol)1 min
- Kafana (Gvint pivara)1 min
- Taksi stajalište (Taxi stanica)9 min
- Autobuska stanica (Dunavska)5 min
- Tramvajska stanica (Dorćol /Kneginje Ljubice/)5 min
- Trolejbuska stanica (Trg republike)12 min
- Banka (Raiffeisen Bank)5 min
- Pošta (Pošta 11014 Beograd 160 (šalter))5 min
Kontakt oglašivača
Krediti OTP banke
Saznaj više
Prikazana rata odnosi se na maksimalni period otplate. Kalkulator je informativnog karaktera.
* Nakon isteka 5 godina, prelazi se na varijabilnu kamatnu stopu


