Troiposoban stan na prodaju, Cara Dušana 67, 151.960€, 82m²


























151.960 €
1.853 € / m2
- Stan u zgradi
- Etažno grejanje
- Novo
- Prostorije: kupatilo, toalet, ostava
- Opremljenost: Prazno - internet
- Pogled na: dvorište
- Nije uknjiženo
- Oglas oglašava agencija pod reg. brojem 1473
- Garaža u sklopu zgrade
- 1 lift
- Godina izgradnje: 2026.
- Zgrada poseduje: lođa
- Tip interneta: optički
- 1 telefonska linija
Opis oglasa
Direktna prodaja - bez agencijske provizije!
Useljivo do 31.01.2026. godine!
Predstavljamo Vam objekat sa stepenom izgrađenosti od oko 95%, vrhunskog kvaliteta, u ulici Cara Dušana broj 67 u Pančevu, u neposrednoj blizini parka Narodna bašta, kao i magistralnog puta za Beograd, osnovnih i srednjih škola, a strogi centar grada je udaljen 15tak minuta laganog hoda.
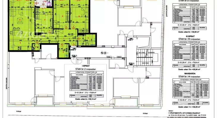
Stan 2 – prvi sprat od četiri - troiposoban – 82,14m2 – dvorišno orijentisan.
Stan se sastoji od predsoblja, toaleta, kupatila, ostave, kuhinje, dnevnog boravka sa trpezarijom, tri spavaće sobe i lođe.
Prilikom projektovanja posebno je vodjeno racuna o termo i zvucnoj izolaciji objekta. Objekat je izgrađen termo blokom koji ima posebna termoizolaciona svojstva, toplotna izolacija je stiropor debljine 10cm, stolarija je PVC sedmokomorna sa aluminijumskom oblogom spolja i troslojnim staklom i aluminijumskim roletnama. Zidovi između stanova zidaju se Xella-Silka** **silikatnim blokom koji je vrhunski zvucni izolator, do 56 decibela. Bešumni lift. Grejanje je radijatorsko, a svaki stan opremljen je zasebnim električnim kotlom. Svaki stan opremljen je klima uređajem. Od ostale opreme: keramika Italijanska i Spanska, staklene tus kabine, tarket prve klase, sigurnosna ulazna vrata, sobna vrata od furniranog medijapana vrhunskog kvaliteta, kapija sa daljinskom komandom, itd.
Postoji mogućnost kupovine garažnog mesta u dvorištu zgrade.
Planirani rok završetka izgradnje: 31.01.2026. godine
Cena: 1.850EUR/m2 sa uračunatim PDV-om
Izražena cena je sa uračunatim PDV-om od 10%, za kupce prvog stana koji ispunjavaju zakonske uslove, moguć je povrat PDV-a.
Uredna dokumentacija. Objekat se zida sa pravnosnažnom građevinskom dozvolom i prijavom radova. Stanovi su predbeleženi u katastru nepokretnosti.
Kupac ne plaća agencijsku proviziju!
Za sve dodatne informacije, stojimo Vam na raspolaganju!
Agencija Smart Invest
Pančevo, Vojvode Radomira Putnika 3A
*Sačuvaj oglas uz belešku i primaj obaveštenja o njihovom pojeftinjenju ili pojavljivanju sličnih
Prikaz stana na mapi
Parkovi u blizini
- Narodna bašta Pančevo5 min
- Park Barutana9 min
- Park na Trgu kralja Petra21 min

Obeležja kulture u blizini
- Zgrada Stare bolnice4 min
- Kompleks Svilara9 min
- Spomenik vojvodi Stevanu Šupljikcu9 min

Škole/Fakulteti/Vrtići u blizini
- Osnovna škola (Specijalna osnovna škola Mara Mandić)7 min
- Srednja škola (Privatna ekonomsko menadžerska škola Pančevo)5 min
- Vrtić (Dečiji vrtić Ljiljan)12 min
- Fakultet (Stomatološki fakultet Pančevo)6 min

- Bolnica (Opšta bolnica Pančevo)10 min
- Klinika (Poliklinika Dr Putnik)8 min
- Teretana (Fitnes klub Forma)5 min
- Prodavnica (IDEA Super)12 min
- Restoran (Restoran Zen)12 min
- Kafana (Publika pub)19 min
- Taksi stajalište (Taxi stanica)8 min
- Autobuska stanica (Donji mlin)8 min
- Banka (UniCredit Bank)5 min
- Pošta (Pošta Pančevo 3)6 min
Kontakt oglašivača
Stambeni krediti
- Period otplate od
96 -360 meseca
- NKS 4.50%
EKS 5.74%
Fiksna kamatna stopa
- Bez troškova obrade kredita
- Period otplate od
96 -360 meseca
- NKS 4.34%
Kombinovana kamatna stopa
- Bez troškova obrade kredita
- Odobrenje kredita do 48h
stranici kreditnih kalkulatora
Keš krediti
Period otplate
13 meseci- Period otplate od 13 -71 mesec
- NKS 10.55%
- EKS od 10.87%
- Za klijente banke
mesečno

