Jednoiposoban stan na prodaju, Donji Grad, 85.180€, 43m²








85.180 €
1.981 € / m2
- Etažno grejanje
- Prostorije: kupatilo, terasa
- Oglas oglašava agencija pod reg. brojem 298
- 1 garažno mesto
- 1 lift
- 1 telefonska linija
Opis oglasa
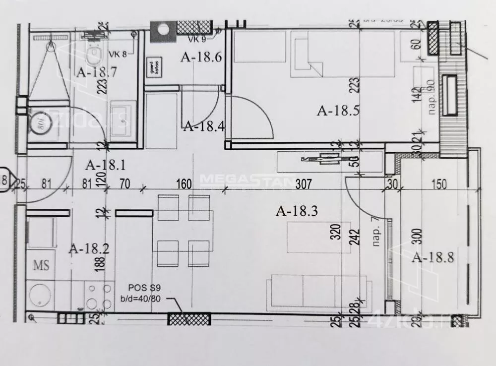
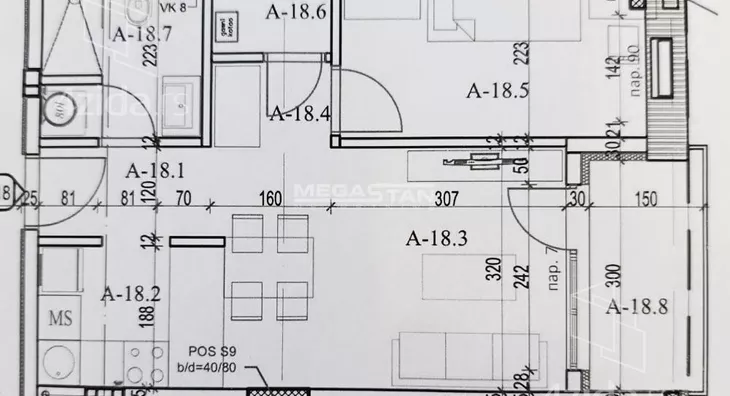
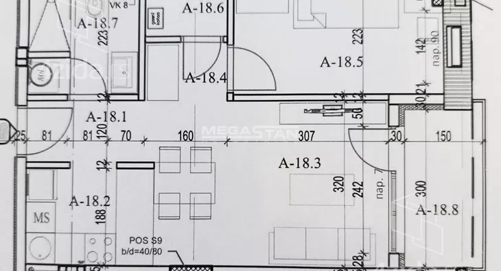
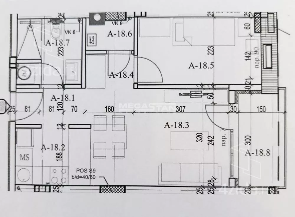
Na lokaciji Donji Grad, u toku je izgradnja petospratne zgrade, gde se na povučenom petom spratu nalazi jednoiposoban stan, sa odvojenom spavaćom sobom.
Grejanje podno, na struju, sopstveni kotao. Podovi Tarket i keramika.
U spavaćoj sobi drveni krovni prozor, a u dnevnoj aluminijumski profil velikih dimenzija, sa roletnama.
Geberit ugradni kupatilski elementi.
Iznad stana ploča. Preko ploče stiropor. Sendvič krovni panel.
Zidna izolacija stiropor 12cm. Pregradni zidovi od opeke.
Sigurnosna ulazna vrata.
Na iskazanu cenu se plaćaju apsolutna prava (nema Pdv-a).
Mogućnost kupovine garažnog mesta po ceni od 15.000 eura.
Predviđeni rok useljenja kraj 2026. godine.
Agencijska provizija za kupca 2%.
Broj agencije u Registru posrednika 298. Mapa je informativnog karaktera, ne prikazuje tačnu lokaciju nekretnine.
*Sačuvaj oglas uz belešku i primaj obaveštenja o njihovom pojeftinjenju ili pojavljivanju sličnih
Prikaz stana na mapi
Parkovi u blizini
- Narodna bašta Pančevo8 min
- Park Barutana12 min
- Park na Trgu kralja Petra17 min

Obeležja kulture u blizini
- Spomenik vojvodi Stevanu Šupljikcu5 min
- Zgrada Stare bolnice6 min
- Kompleks Svilara7 min

Škole/Fakulteti/Vrtići u blizini
- Osnovna škola (Osnovna škola Branko Radičević)4 min
- Srednja škola (Privatna ekonomsko menadžerska škola Pančevo)8 min
- Vrtić (Dečiji vrtić Lane)7 min
- Fakultet (Stomatološki fakultet Pančevo)7 min

- Bolnica (Hirurška ordinacija Arsov Marčetić)9 min
- Klinika (Poliklinika Dr Putnik)9 min
- Teretana (Fitnes klub Forma)5 min
- Prodavnica (DTL Podunavlje)10 min
- Restoran (Konoba Akustik 32)13 min
- Kafana (Publika pub)16 min
- Taksi stajalište (Taxi stanica)11 min
- Autobuska stanica (Donji mlin)3 min
- Banka (UniCredit Bank)6 min
- Pošta (Pošta Pančevo 3)6 min
Kontakt oglašivača
Krediti OTP banke
Saznaj više
Prikazana rata odnosi se na maksimalni period otplate. Kalkulator je informativnog karaktera.
* Nakon isteka 5 godina, prelazi se na varijabilnu kamatnu stopu


