Četvorosoban stan na prodaju, Šantićeva, 380.000€, 91m²
OBIĐI 3D TURU
































380.000 €
4.176 € / m2
- Salonac
- Uobičajeno stanje
- Opremljenost: Prazno - interfon, kanalizacija
- Uknjiženo
- Oglas oglašava agencija pod reg. brojem 167
- Kanalizacija
- Godina izgradnje: 1930.
- Zgrada poseduje: podrum
Opis oglasa
Stari grad, Donji Dorćol - Šantićeva
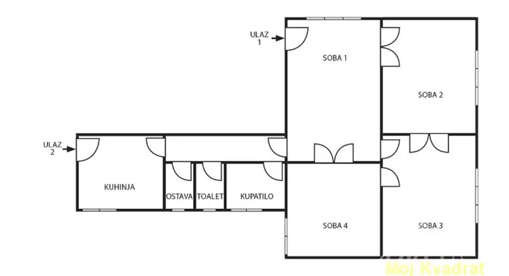
4.0, 91m2, VPR/2, grejanje na struju, interfon, podrum
U ponudi za prodaju autentičan, četvorosoban, salonski stan (visina plafona 3.40m) u neposrednoj blizini Bajlonijeve pijace. Stan je u izvornom stanju, trostrano je orijentisan i pozicioniran na visokom prizemlju zgrade koja ima svoje dvorište.
Sastoji se od četiri izuzetno prostrane sobe, kuhinje, kupatila, toaleta i ostave. Takođe, stan poseduje pripadajući podrum od 14m2.
Odličan potencijal za život ili poslovni prostor.
Uknjižen na 91m2.
Agencijska provizija 2%
Agent: Svetlana Todorov 066... (prikaži broj telefona) (licenca br.6305)
*Sačuvaj oglas uz belešku i primaj obaveštenja o njihovom pojeftinjenju ili pojavljivanju sličnih
Prikaz stana na mapi
Parkovi u blizini
- Pančićev park14 min
- Univerzitetski park17 min
- Park Hadžipopovac18 min

Obeležja kulture u blizini
- Prva varoška bolnica5 min
- Spomenik despotu Stefanu Lazareviću5 min
- Sebilj česma6 min

Škole/Fakulteti/Vrtići u blizini
- Osnovna škola (Osnovna škola Skadarlija)4 min
- Srednja škola (Sportska gimnazija)4 min
- Vrtić (Dečiji vrtić i rođendaonica Extreme Kids)3 min
- Fakultet (Fakultet za menadžment malih i srednjih preduzeća)5 min

- Bolnica (Bolnica za estetsku i rekonstruktivnu hirurgiju Orea)5 min
- Klinika (Poliklinika Endo Top)5 min
- Teretana (Extreme Gym)3 min
- Prodavnica (Šumadija Market)2 min
- Restoran (Restoran picerija Botako)2 min
- Kafana (Pab Gradska priča)5 min
- Taksi stajalište (Taxi stanica)5 min
- Autobuska stanica (Gundulićev Venac)3 min
- Tramvajska stanica (Pijaca Skadarlija)5 min
- Trolejbuska stanica (Makedonska)11 min
- Banka (ProCredit Bank)4 min
- Pošta (Pošta Beograd 36)2 min
Kontakt oglašivača
Stambeni krediti

- Period otplate od
96 -360 meseca
- NKS 4.75%
EKS 5.74%
Fiksna kamatna stopa
- Bez troškova obrade kredita
stranici kreditnih kalkulatora
Keš krediti
Period otplate
13 meseci