Trosoban stan na prodaju, Vrežinski Bulevar, 100.050€, 69m²






100.050 €
1.450 € / m2
- Stan u zgradi
- Grejanje na struju
- U izgradnji
- Uknjiženo
- Oglas oglašava agencija pod reg. brojem 1574
Opis oglasa
Opis zgrade – Novogradnja Donja Vrežina, Niš
U mirnom i porodičnom delu Niša, u naselju Donja Vrežina, gradi se moderan stambeni objekat savremenog dizajna, namenjen udobnom i kvalitetnom stanovanju. Zgrada je projektovana po važećim standardima energetske efikasnosti, sa akcentom na funkcionalnost, trajnost i komfor stanara.
Objekat se sastoji od više stambenih jedinica raspoređenih u dve lamele, sa liftom, video-interfonom i uređenim zajedničkim prostorijama. Posebna pažnja posvećena je kvalitetu gradnje i završnih materijala: termo i zvučna izolacija, PVC stolarija sa roletnama, kvalitetna keramika i parket, kao i priprema za inverter klima uređaje.
Lokacija pruža idealan balans između mirnog okruženja i dobre povezanosti sa ostatkom grada — u blizini su škole, vrtići, marketi i glavne saobraćajnice, što ovu zgradu čini odličnim izborom kako za porodično stanovanje, tako i za investiciju.
Planirani rok završetka gradnje: decembar 2026. godine.
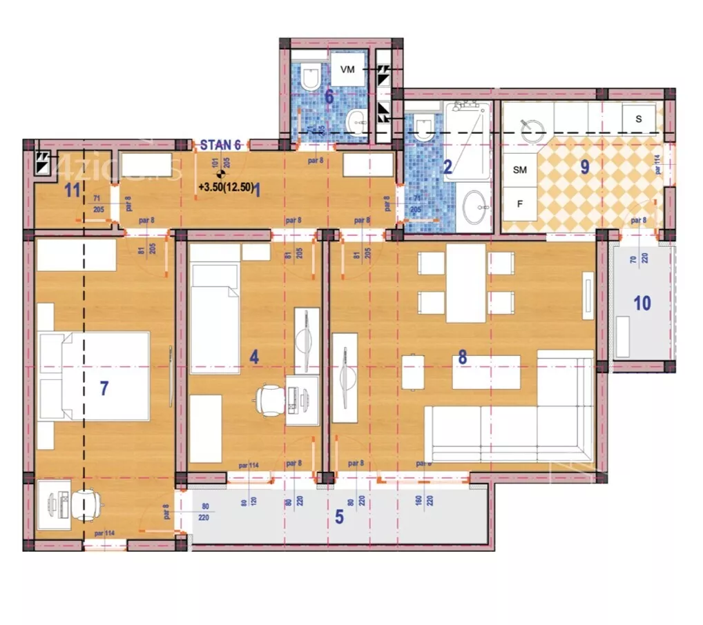
Opis stana – 69 m², prvi sprat
Na prodaju je komforan dvoiposoban stan površine 69 m², smešten na prvom spratu zgrade. Stan se odlikuje izuzetno funkcionalnim rasporedom prostorija i obiljem prirodne svetlosti.
Strukturu stana čine:
- ulazni hodnik
- prostrana dnevna soba sa trpezarijom i kuhinjom
- dve odvojene spavaće sobe
- kupatilo
- terasa
Stan je idealan za porodično stanovanje, ali i kao sigurna investicija za izdavanje. Završna obrada uključuje kvalitetan parket, keramiku I klase u kupatilu i na terasi, PVC stolariju i savremene instalacije.
Cena i pogodnosti
- Cena: 1.450 € / m² sa PDV-om
- Parking mesto: 3000 €
- Kupac ne plaća dodatnu proviziju
Odlična prilika za kupovinu novog stana u kvalitetnoj novogradnji, uz obezbeđeno parking mesto.
Za sve dodatne informacije i zakazivanje pregleda, slobodno nas kontaktirajte.
Mi smo tim Residence Nekretnine, vaš partner u pronalaženju savršenog doma. Pružamo vam sveobuhvatnu podršku advokata i garantujemo prisustvo prilikom overe ugovora kod javnog beležnika. Pozovite nas već danas na navedene brojeve telefona kako biste saznali više o lokaciji ili samoj nekretnini. Spremni smo da se prilagodimo vašem rasporedu, bilo da želite obilazak tokom radnih dana ili vikendom. Pored ovog projekta u našoj ponudi imamo veliki broj stanova u novogradnji i starogradnji širom grada. Za više informacija budite slobodni da nas nazovete na sledeće brojeve telefona, biće nam zadovoljstvo da učestvujemo u pronalaženju idealnog doma za Vas.
Residence Nekretnine
Broj u registru posrednika - 1574
*Sačuvaj oglas uz belešku i primaj obaveštenja o njihovom pojeftinjenju ili pojavljivanju sličnih
Prikaz stana na mapi
Parkovi u blizini
- Park Svetog Save36 min
- Park složnih komšija42 min

Obeležja kulture u blizini
- Spomenik borcima na Čegru10 min
- Ranohrišćanska grobnica11 min
- Ćele kula11 min

Škole/Fakulteti/Vrtići u blizini
- Osnovna škola (Osnovna škola Miroslav Antić)4 min
- Srednja škola (Trgovinska škola Niš)8 min
- Vrtić (Dečiji vrtić Mazza)5 min
- Fakultet (Univerzitet u Nišu Prirodno matematički fakultet)13 min

- Bolnica (Bolnica Đorić)9 min
- Klinika (Poliklinika Bocokić)11 min
- Teretana (Fitness centar TNT Gym)5 min
- Prodavnica (Metla diskont)6 min
- Restoran (Garni Hotel Svrljižanka)4 min
- Kafana (Kafana Dva jarana)26 min
- Taksi stajalište (Duga taksi)39 min
- Autobuska stanica (Radomira Antića)1 min
- Banka (Poštanska štedionica)4 min
- Pošta (Pošta Niš 3)6 min
Kontakt oglašivača
Krediti OTP banke
Saznaj više
Prikazana rata odnosi se na maksimalni period otplate. Kalkulator je informativnog karaktera.
* Nakon isteka 5 godina, prelazi se na varijabilnu kamatnu stopu


