Garsonjera na prodaju, Donja Vrežina, 63.500€, 37m²


63.500 €
1.716 € / m2
- Stan u zgradi
- Grejanje na struju
- U izgradnji
- Prostorije: kupatilo, terasa
- Opremljenost: Prazno - internet
- Orijentacija ka: zapad
- Pogled na: ulicu
- U procesu uknjižavanja
- Oglas oglašava agencija pod reg. brojem 2136
- 1 parking mesto, javni parking van zone
- 1 lift
- Godina izgradnje: 2027.
- Zgrada poseduje: podrum
Opis oglasa
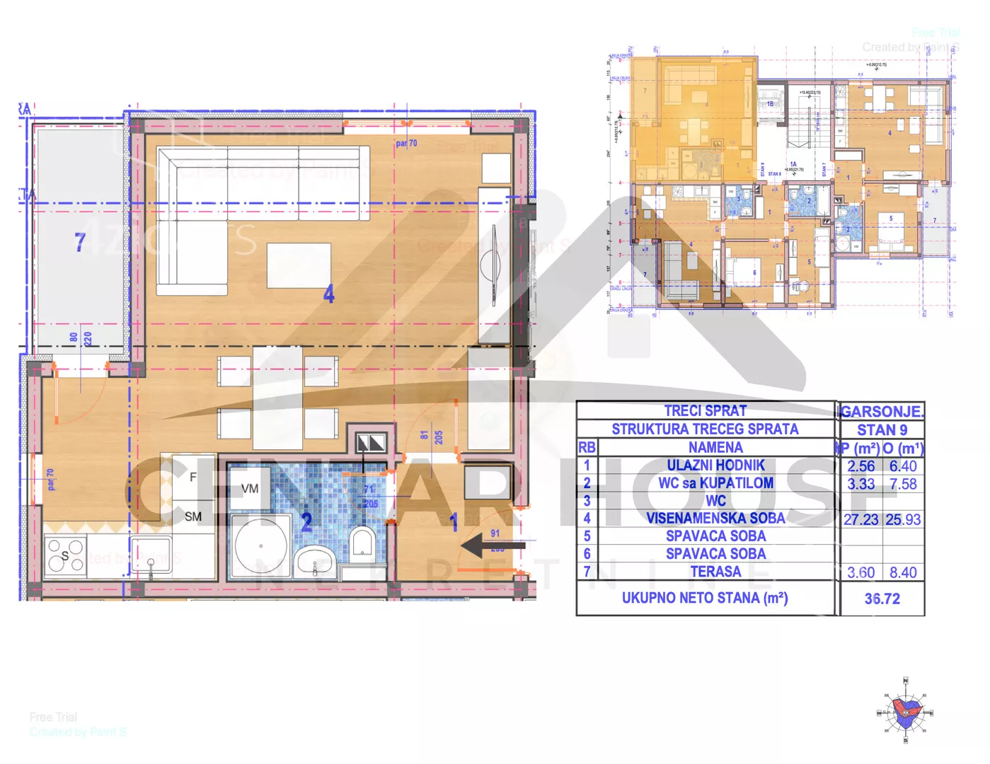
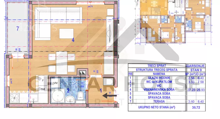
Prodaje se garsonjera u zgradi koja se gradi u Donjoj Vrežini. Zgrada je u izgeradnji vrlo dobro povezana sa Knjaževačkom ulicom kao i Matejevačkim putem.
Garsonjera je 36,72 m2 , dostupna na više spratova i u toku je akcija prodaje iste na 1900 eu po m2 sa PDV- om. Za keš kupce postoji blagi popust oko cene i dogovor.
Zgrada je sa liftom, svaki stan poseduje podrumske prostorije a takođe imamo :
- smart zgrada
- interfon
- video nadzor
- pvc stolarija elektro roletne
- parket tarket u podu
- španska keramika prve klase
- lift besumni
- struja modularni sistem
- multimedija u svakom stanu
- svaki stan ima inverter klimu
- moguće je dodatno uvesti podno grejanje uz doplatu
- mogućnost kupovine parking mesta po ceni od 3500 eu
U zgradi je dostupan i dvosoban stan od 50 m2 .
Za razgledanje i više informacija pozovite na telefon iz oglasa ili ostavite poriku ( sms ili viber ) i kontaktiraćemo Vas u najkraćem roku.
*Sačuvaj oglas uz belešku i primaj obaveštenja o njihovom pojeftinjenju ili pojavljivanju sličnih
Prikaz stana na mapi
Kontakt oglašivača

Krediti OTP banke
Saznaj više
Prikazana rata odnosi se na maksimalni period otplate. Kalkulator je informativnog karaktera.
* Nakon isteka 5 godina, prelazi se na varijabilnu kamatnu stopu

