Trosoban stan na prodaju, Dedinje, 318.600€, 77m²


















318.600 €
4.138 € / m2
- Stan u zgradi
- Centralno grejanje
- Novo
- Prostorije: terasa
- Opremljenost: Prazno - internet, interfon, klima, kanalizacija
- Uknjiženo
- Oglas oglašava agencija pod reg. brojem 1152
- 1 garažno mesto
- 1 parking mesto
- 1 lift
- Kanalizacija
- Godina izgradnje: 2025.
- Zgrada poseduje: video nadzor
- Kablovska
- 1 telefonska linija
Opis oglasa
U prilici smo da Vam ponudimo veoma kvalitetan objekat u modernom arhitektonskom stilu koji se nalazi na ekskluzivnoj lokaciji na Dedinju. Realizovan je u urbanom skladu forme i gradskog života, sagrađen od najkvalitetnijih materijala koje market može da ponudi. Smešten je u mirnom kraju i prostire se na 3.000m2.
U sklopu kompleksa je i dvorište od preko 300m2 koje članovima porodice donosi sjajno iskustvo. U dvorištu su predviđeni sadržaji za decu, zelena površina, kao i teretana koja se prostire na više od 100m2.
Ceo kompleks se nalazi na nagnutom terenu, čiji je pad omogućio bolje vizure i pogled u pravcu zgrade Belog Dvora.
Ovi luksuzni i glamurozni stanovi poseduju centralno grejanje (kalorimetri), aluminijumsku stolariju, staklene ograde na terasama, parket, keramiku i sanitarije prve klase i toplu vodu u kuhinji. Prostor je maksimalno iskorišćen, bez gubitaka u hodnicima.
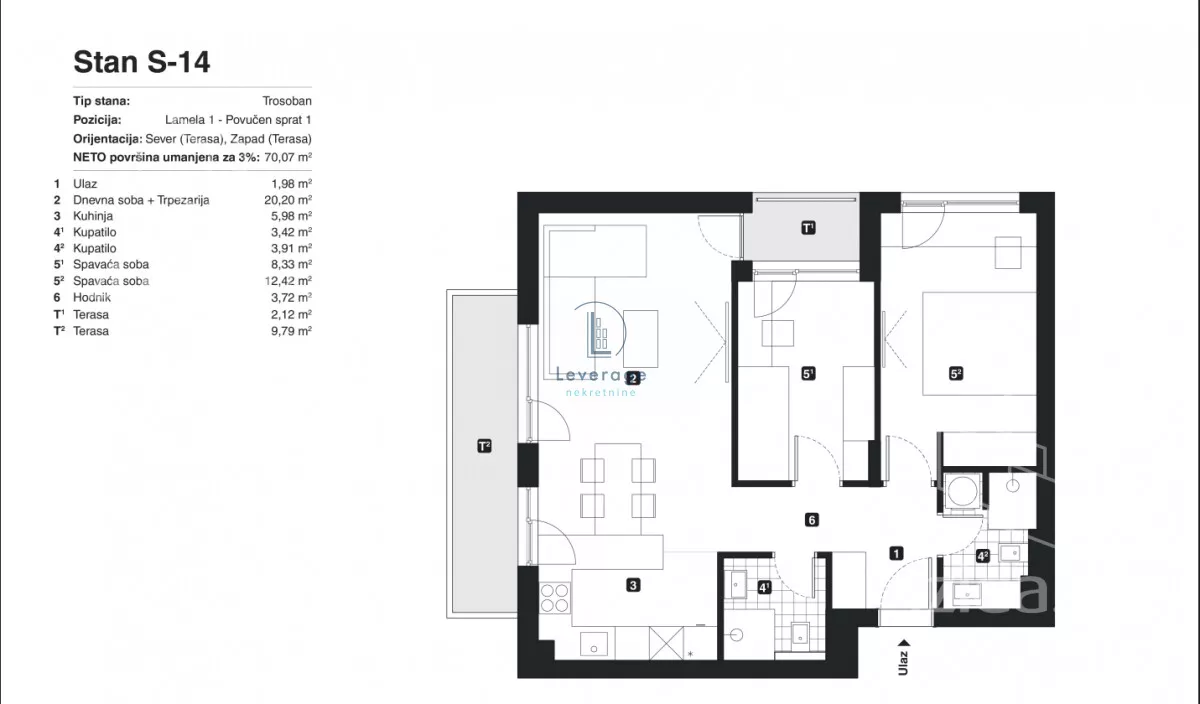
Ovaj stan se sastoji od dnevnog boravka (open space), kuhinje sa trpezarijom, dve spavaće sobe, kupatila, toaleta, ulaznog hodnika i terase.
Lepota ovog stana je u tome što odaje ambijent porodične idile i svojim konceptom omogućava ugodan život u njemu.
Postoji mogućnost kupovine garažnog mesta u objektu u iznosu od 30.000 eur+pdv.
Kraj izgradnje je krajem 2025. godine.
U cenu nije uračunat PDV koji iznosi 10%.
Agencijska provizija iznosi 2% od kupoprodajne cene.
Kontaktirajte nas za više informaciju.
*Sačuvaj oglas uz belešku i primaj obaveštenja o njihovom pojeftinjenju ili pojavljivanju sličnih
Prikaz stana na mapi
Parkovi u blizini
- Park Rozali Morton11 min
- Topčiderski park23 min
- Bajronov park27 min

Obeležja kulture u blizini
- Spomenik heroju Milanu Tepiću5 min
- Dvorska crkva Svetog Apostola Andreja Prvozvanog7 min
- Beli dvor8 min

Škole/Fakulteti/Vrtići u blizini
- Osnovna škola (Osnovna škola Kreativno pero)7 min
- Srednja škola (Škola za dizajn)6 min
- Vrtić (Dečiji vrtić Meda)5 min
- Fakultet (Univerzitet u Beogradu Učiteljski fakultet)7 min

- Bolnica (Bolnica za ginekologiju i akušerstvo - KBC Dr Dragiša Mišović)4 min
- Klinika (Poliklinika Protekal)7 min
- Teretana (Fitness klub Sinergija Fitness)6 min
- Prodavnica (Maxi Supermarket)8 min
- Restoran (Restoran Špageterija)8 min
- Kafana (Pivnica Contra Pub)27 min
- Taksi stajalište (Taxi stanica)10 min
- Autobuska stanica (IV Beogradska Gimnazija)8 min
- Tramvajska stanica (Trg Oslobođenja)28 min
- Trolejbuska stanica (Bolnica Dragiša Mišović)8 min
- Banka (OTP banka)5 min
- Pošta (Pošta Beograd 33)4 min
Kontakt oglašivača
Stambeni krediti

- Period otplate od
96 -360 meseca
- NKS 4.75%
EKS 5.74%
Fiksna kamatna stopa
- Bez troškova obrade kredita
stranici kreditnih kalkulatora
Keš krediti
Period otplate
13 meseci
