Dvosoban stan na prodaju, Bulevar Peka Dapčevića, 204.050€, 82m²






204.050 €
2.488 € / m2
- Stan u zgradi
- Centralno grejanje
- U izgradnji
- Prostorije: kupatila (2), terasa
- Nije uknjiženo
- Oglas oglašava agencija pod reg. brojem 52
- Garaža u sklopu zgrade
- 5 parking mesta
- Godina izgradnje: 2027.
Opis oglasa
U prilici smo da vam ponudimo 3 stambene jedinice i 5 garažnih mesta u stambeno-poslovnom objektu na sjajnoj lokaciji u ulici Bulevara Peke Dapčevića
** **
Stambene jedinice su sledećih struktura:
- površine 68,66 m2, trosoban, na 2. spratu
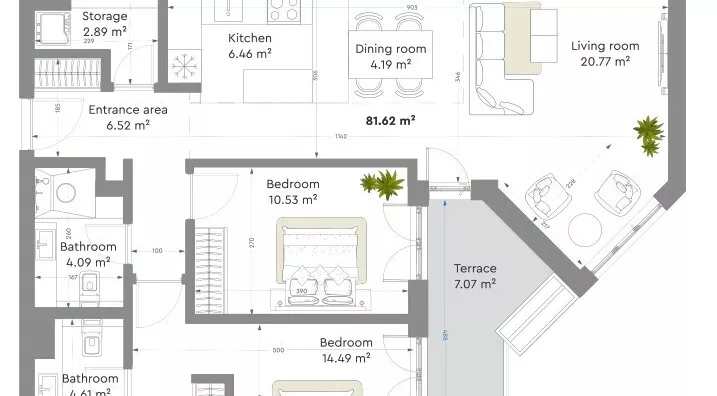
- površine 81,62 m2, trosoban, na 4. spratu
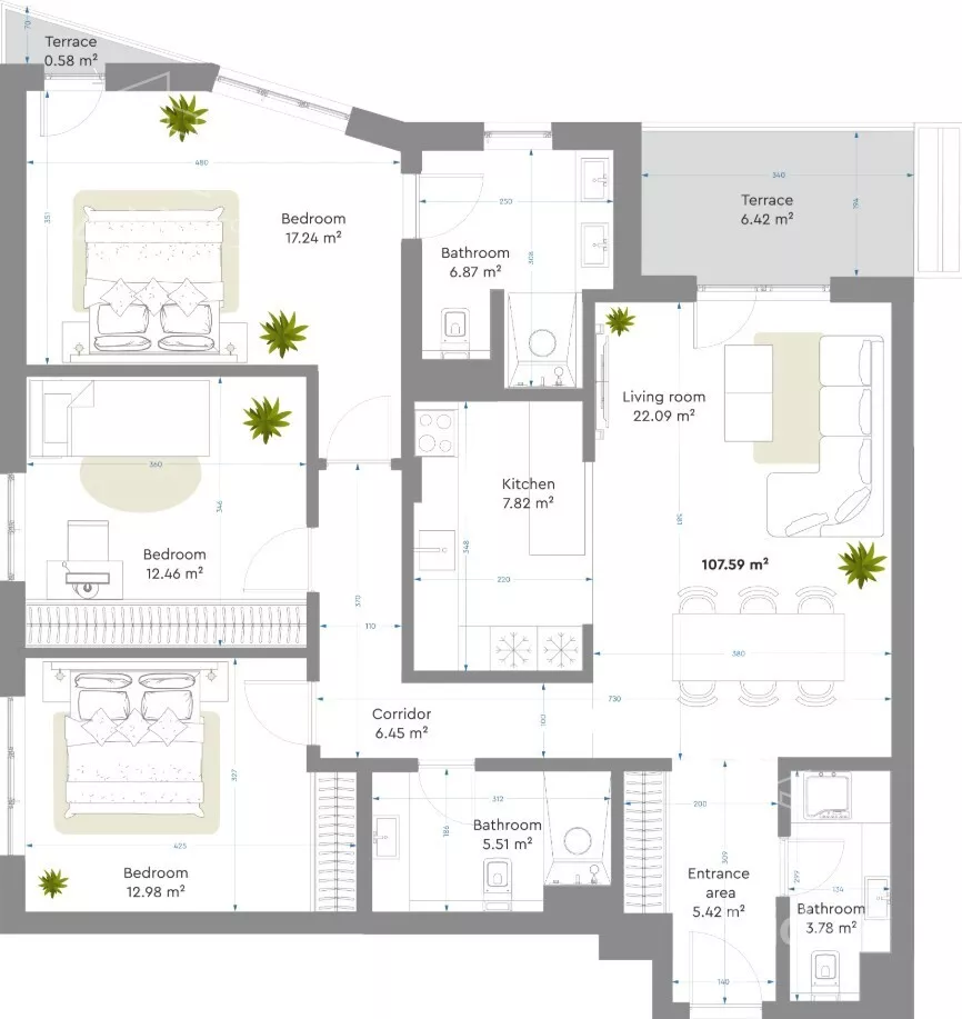
- površine 107,59 m2, četvorosoban, na 3. spratu
- GM površine 14,88 m2 na nivou -2
Uz stan je obavezna kupovina garažnog mesta od 17.916 eur + pdv
Lokacija poseduje mnoge prednosti zato što je mirno okruženje i odlična infrastruktura.
Objekat poseduje 2 lifta.
Centralno grejanje sa ugrađenim kalorimetrima.
Aluminijumska stolarija prve klase u antracit boji sa aluminijumskim roletnama na električni pogon.
Ulazna blindirana vrata, dvobojni dizajn, bela boja iznutra a antracit boja spolja
Unutrašnja vrata su od medijapana u beloj boji visine 230 cm
Visokokvalitetna italijanska keramika.
Višeslojni hrastov parket.
Video nadzor 24h
**Rok završetka izgradnje prvi kvartal 2027. **
Povrat PDV-a za kupce prvog stana.
Dobra saobraćajna povezanost sa svim delovima grada.
U blizini sva potrebna infrastruktura neophodna za udoban život.
Iskazana cena je bez PDV-a
** **
**Agencijska provizija je 2 % **
*Sačuvaj oglas uz belešku i primaj obaveštenja o njihovom pojeftinjenju ili pojavljivanju sličnih
Prikaz stana na mapi
Parkovi u blizini
- Park Jove Ilića15 min
- Banjička šuma17 min
- Bajronov park26 min

Obeležja kulture u blizini
- Spomenik Franše Depereu12 min
- Kuća Flašar13 min
- Spomenik oslobodilaca Beograda 1806. godine14 min

Škole/Fakulteti/Vrtići u blizini
- Osnovna škola (Osnovna škola Đura Daničić)5 min
- Srednja škola (Srednja škola Vasa Stajić)8 min
- Vrtić (Vrtić mojih snova)2 min
- Fakultet (Univerzitet u Beogradu Saobraćajni fakultet)12 min

- Bolnica (Opšta bolnica St Medica)5 min
- Klinika (Poliklinika Voždmedik)5 min
- Teretana (Maximum Effect Fitness & Gym)5 min
- Prodavnica (Shop&Go)6 min
- Restoran (Restoran Intermeco)3 min
- Kafana (Pinta Pub)9 min
- Taksi stajalište (Taxi stanica)7 min
- Autobuska stanica (Bulevar Peka Dapčevića)1 min
- Tramvajska stanica (Visoka Škola elektrotehnike)11 min
- Trolejbuska stanica (Paunova)22 min
- Banka (Poštanska štedionica)3 min
- Pošta (Pošta Beograd 48)6 min
Kontakt oglašivača
Krediti OTP banke
Saznaj više
Prikazana rata odnosi se na maksimalni period otplate. Kalkulator je informativnog karaktera.
* Nakon isteka 5 godina, prelazi se na varijabilnu kamatnu stopu


