Jednoiposoban stan na prodaju, Ruzveltova, 150.000€, 33m²
























150.000 €
4.545 € / m2
- Stan u zgradi
- Renovirano
- Opremljenost: Namešteno - interfon, TV, klima
- U procesu uknjižavanja
- Oglas oglašava agencija pod reg. brojem 937
- 1 lift
- Zgrada poseduje: video nadzor
- Kablovska
Opis oglasa
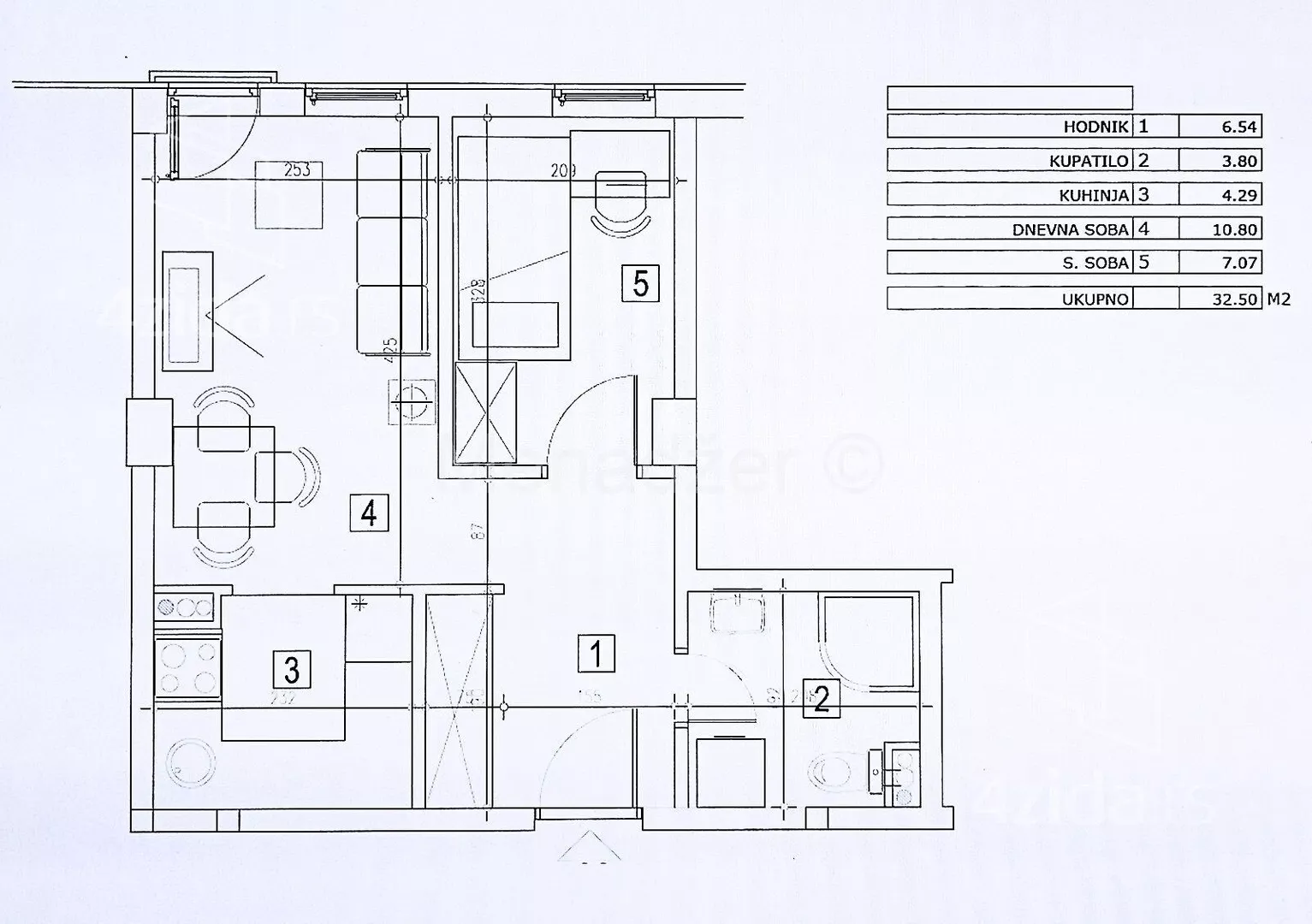
Na prodaju je stan u zgradi novije gradnje na uglu Dalmatinske i Ruzveltove u Beogradu. Zgrada je kvalitetno građena, održavana, poseduje video-nadzor i lift. Stan je dvorišno orijentisan, što omogućava mir i tišinu, bez gradske buke, iako se nalazi na odličnoj lokaciji sa svim sadržajima u neposrednoj blizini.
Stan se sastoji od hodnika, dnevnog boravka, kuhinje, kupatila i spavaće sobe. Kompletno je namešten novim i modernim nameštajem koji je uključen u cenu stana, tako da je odmah spreman za useljenje.
Vlasnik poseduje rešenje o ozakonjenju, a nekretnina je pogodna za kupce koji plaćaju gotovinom.
Agencijska provizija za kupca iznosi 2% od ugovorene kupoprodajne cene.
Kontakt telefon:
064... (prikaži broj telefona)
*Sačuvaj oglas uz belešku i primaj obaveštenja o njihovom pojeftinjenju ili pojavljivanju sličnih
Prikaz stana na mapi
Parkovi u blizini
- Park Ćirila i Metodija6 min
- Park Starine Novaka7 min
- Park Mike Oklopa8 min

Obeležja kulture u blizini
- Spomenik Puškinu6 min
- Spomenik Nikoli Tesli6 min
- Spomenik Svetozaru Markoviću8 min

Škole/Fakulteti/Vrtići u blizini
- Osnovna škola (Osnovna škola Starina Novak)4 min
- Srednja škola (Četrnaesta beogradska gimnazija)5 min
- Vrtić (Dečiji vrtić Sunčica)5 min
- Fakultet (Univerzitet u Beogradu Građevinski fakultet)7 min

- Bolnica (Oftalmološka bolnica Revida)4 min
- Klinika (Poliklinika Vuk Prima)4 min
- Teretana (Gym and fitness Viktorija)3 min
- Prodavnica (Shop&Go)2 min
- Restoran (Restoran bar Uprava 1927)2 min
- Kafana (Pab Tramvaj)3 min
- Taksi stajalište (Taxi stanica)4 min
- Autobuska stanica (Vukov spomenik)5 min
- Tramvajska stanica (Dalmatinska)2 min
- Trolejbuska stanica (Podvožnjak)5 min
- Banka (Raiffeisen Bank)3 min
- Pošta (Pošta Beograd 35)8 min
Kontakt oglašivača
Stambeni krediti

- Period otplate od
96 -360 meseca
- NKS 4.75%
EKS 5.74%
Fiksna kamatna stopa
- Bez troškova obrade kredita
stranici kreditnih kalkulatora
Keš krediti
Period otplate
13 meseci
