Dvosoban stan na prodaju, Obalskih radnika, 183.000€, 61m²
















183.000 €
3.000 € / m2
- Stan u zgradi
- Centralno grejanje
- Prostorije: ostava, terasa
- Opremljenost: Prazno - interfon, kanalizacija
- Uknjiženo
- Oglas oglašava agencija pod reg. brojem 167
- 1 lift
- Kanalizacija
- Godina izgradnje: 1989.
- 1 telefonska linija
Opis oglasa
Čukarica, Čukarička padina - Obalskih radnika
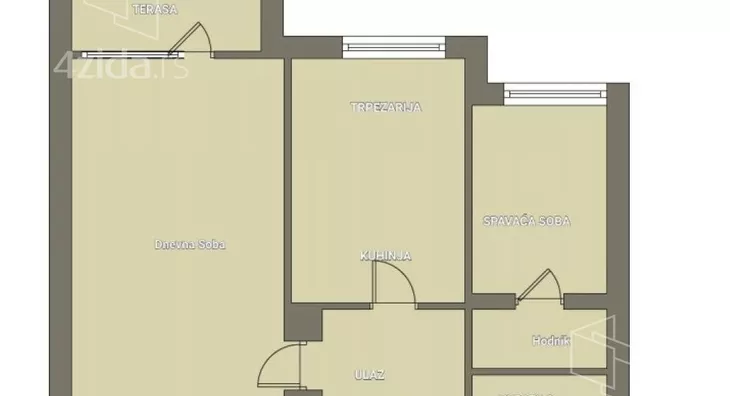
2.0, 61m2 (terasa 3m2), 2/7, CG, lift, telefon, interfon
Na prodaju sređen dvosoban stan u mirnom kraju na Čukaričkoj padini, u blizini Radničke ulice, na 10 minuta od Ade Ciganlije. Izvorno je dvosoban, lako adaptibilan u dvoiposoban.
Prostorije: ulazni hodnik, velika dnevna soba sa izlazom na terasu koja je orijentisana ka parku, kuhinja sa trpezarijom, prostrana spavaća soba, hodnik sa garderoberom, kupatilo.
Pripadajuća ostava u podrumu.
Uknjižen na 58m2.
Agencijska provizija 2%
Agent Đorđe Ćirković: 063... (prikaži broj telefona) (licenca br. 4819)
*Sačuvaj oglas uz belešku i primaj obaveštenja o njihovom pojeftinjenju ili pojavljivanju sličnih
Prikaz stana na mapi
Parkovi u blizini
- Dečje igralište1 min
- Park Banovo Brdo19 min
- Dečje igralište27 min

Obeležja kulture u blizini
- Česma izvor Zmajevac8 min
- Česma izvor Bele vode9 min
- Spomenik partizanskim borcima Žarkova12 min

Škole/Fakulteti/Vrtići u blizini
- Osnovna škola (Osnovna škola Josif Pančić)9 min
- Srednja škola (Trinaesta beogradska gimnazija)7 min
- Vrtić (Dečiji vrtić Duga)3 min
- Fakultet (Visoka sportska i zdravstvena škola)8 min

- Bolnica (Bolnica za plastičnu i rekonstruktivnu hirurgiju Mens Sana)12 min
- Klinika (Bel Medic Poliklinika)10 min
- Teretana (Fitness klub Dream Gym)2 min
- Prodavnica (Aman market)3 min
- Restoran (Kafana Bez imena)3 min
- Kafana (Ladovina Pub)4 min
- Taksi stajalište (Taxi stanica)5 min
- Autobuska stanica (Čukarička Padina)manje od 1 min
- Tramvajska stanica (Dom Zdravlja)14 min
- Banka (Eurobank Direktna)9 min
- Pošta (Pošta Beograd 111)6 min
Kontakt oglašivača
Krediti OTP banke
Saznaj više
Prikazana rata odnosi se na maksimalni period otplate. Kalkulator je informativnog karaktera.
* Nakon isteka 5 godina, prelazi se na varijabilnu kamatnu stopu






















