Dvoiposoban stan na prodaju, Strugarska, 190.000€, 74m²






















190.000 €
2.568 € / m2
- Stan u zgradi
- Centralno grejanje
- Opremljenost: Prazno - interfon, klima, kanalizacija
- Uknjiženo
- Oglas oglašava agencija pod reg. brojem 167
- 1 lift
- Kanalizacija
- Godina izgradnje: 1980.
- Zgrada poseduje: podrum, lođa
Opis oglasa
Čukarica, Čukarička padina - Strugarska
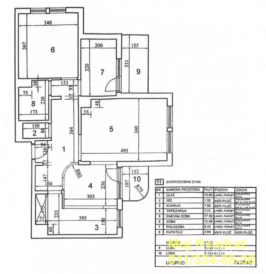
2.5, 74m2 (dve lođe 7m2), 3/7, CG, inverter klime, lift, interfon, podrum
U ponudi izvorno dvoiposoban stan na trećem spratu od ukupno sedam na odličnoj lokaciji u zgradi iz 1980-ih godina sa liftom, centralnim grejanjem i urednim ulazom. Stan je izuzetno svetao, dvostrano orijentisan i sa odličnim rasporedom prostorija.
Stan je korišćen kao kancelarijski prostor i adaptiran je tako da ima četiri odvojene kancelarije (prostorije), predsoblje, kuhinju, dve lođe, kupatilo i toalet.
Zamenjena je stolarija sa kvalitetnim PVC profilima (sa roletnama), kao i sigurnosna vrata. Lamelni parket je prekriven laminatom zbog lakšeg održavanja, ali može da se vrati u pređašnje stanje. Kupatilo i toalet su za sređivanje. Centralno grejanje je odjavljeno , s tim da su vertikale i dalje tople i stan se greje sa inverter klimama. Postoji mogućnost ponovnog priključenja na centralno grejanje.
Odličan za kancelarijski prostor ali i za stambeni (uz minimalne adaptacije).
Uknjižen na 74m2 građevinske i 67m2 korisne površine.
Agencijska provizija 2%
Agent: Jasmina Veljić 063... (prikaži broj telefona) (licenca br.959)
*Sačuvaj oglas uz belešku i primaj obaveštenja o njihovom pojeftinjenju ili pojavljivanju sličnih
Prikaz stana na mapi
Parkovi u blizini
- Dečje igralište4 min
- Park Banovo Brdo19 min
- Dečje igralište28 min

Obeležja kulture u blizini
- Česma izvor Zmajevac6 min
- Česma izvor Bele vode8 min
- Spomenik partizanskim borcima Žarkova11 min

Škole/Fakulteti/Vrtići u blizini
- Osnovna škola (Osnovna škola Josif Pančić)9 min
- Srednja škola (Muzička škola Amadeus)7 min
- Vrtić (Dečiji vrtić Duga)2 min
- Fakultet (Visoka sportska i zdravstvena škola)7 min

- Bolnica (Bolnica za plastičnu i rekonstruktivnu hirurgiju Mens Sana)12 min
- Klinika (Bel Medic Poliklinika)9 min
- Teretana (Fitness klub Dream Gym)2 min
- Prodavnica (Aman market)manje od 1 min
- Restoran (Status Caffe E Pizza)1 min
- Kafana (Ladovina Pub)2 min
- Taksi stajalište (Taxi stanica)3 min
- Autobuska stanica (Strugarska)2 min
- Tramvajska stanica (Kijevska)11 min
- Banka (Eurobank Direktna)9 min
- Pošta (Pošta Beograd 111)4 min
Kontakt oglašivača
Krediti OTP banke
Saznaj više
Prikazana rata odnosi se na maksimalni period otplate. Kalkulator je informativnog karaktera.
* Nakon isteka 5 godina, prelazi se na varijabilnu kamatnu stopu






















