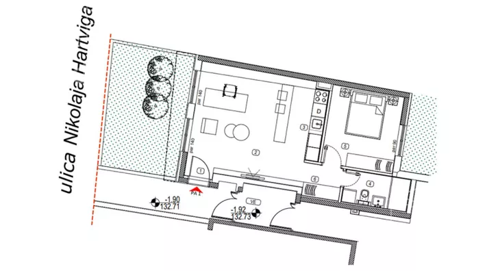
Jednoiposoban stan na prodaju, Nikolaja Hartviga, 141.980€, 46m²






141.980 €
3.087 € / m2
- Stan u zgradi
- Centralno grejanje
- U izgradnji
- Prostorije: kupatilo
- Opremljenost: Prazno - klima
- Uknjiženo
- Oglas oglašava agencija pod reg. brojem 1299
- 1 garažno mesto, garaža u sklopu zgrade
- 1 lift
- Godina izgradnje: 2023.
Opis oglasa
Predstavljamo vam modernu i luksuznu zgradu u ulici Nikolaja Hartviga, smeštenu u jednom od najboljih rezidencijalnih delova Beograda na Vračaru. Zgrada je savršena kombinacija moderne arhitekture, udobnosti i prestižne lokacije i pružiće vam sve što je potrebno za kvalitetan i udoban život. Nalazi se u mirnom kraju Beograda, na samo 200 m od Čuburskog parka i 600 m od Hrama Svetog Save. Udaljena je 1 km od autoputa, što omogućava odličnu povezanost sa Novim Beogradom. Uživajte u modernom životu sa pametnim kućnim sistemom koji vam omogućava kontrolu rasvete, klima uređaja i spoljašnjih roletni putem mobilne aplikacije. Pored mogućnosti kupovine garažnog prostora, zgrada nudi i dodatne ostavinske prostore, pružajući vam više mesta za skladištenje i odlaganje. Stan je registrovan kao poslovni apartman, ali je u potpunosti pogodan i za stanovanje.Za dodatne informacije slobodno nam se obratite. Završetak radova predvidjen je za kraj 2026. godine.
We present to you a modern and luxurious building located on Nikolaja Hartviga Street, situated in one of the most prestigious residential areas of Belgrade – Vračar. This building is a perfect blend of contemporary architecture, comfort, and an exclusive location, offering everything you need for a high-quality and comfortable life. It is set in a quiet neighborhood of Belgrade, just 200 meters from Čuburski Park and 600 meters from the Temple of Saint Sava. Only 1 km from the highway, it provides excellent connectivity to New Belgrade.
Enjoy modern living with a smart home system that allows you to control lighting, air conditioning, and external blinds via a mobile app. In addition to the option of purchasing a garage space, the building also offers additional storage units, giving you more room for storage and organization.
The apartment is officially registered as a business unit but is fully suitable for residential living.
For more information, feel free to contact us.
Project completion is scheduled for the end of 2026.
*Sačuvaj oglas uz belešku i primaj obaveštenja o njihovom pojeftinjenju ili pojavljivanju sličnih
Prikaz stana na mapi
Parkovi u blizini
- Čuburski park4 min
- Park mira Jelena Šantić8 min
- Park vojvode Petra Bojovića10 min

Obeležja kulture u blizini
- Spomenik Petru Kočiću5 min
- Osnovna škola Kralj Petar II Karađorđević5 min
- Čuburska avlija iznad potoka 1928.4 min

Škole/Fakulteti/Vrtići u blizini
- Osnovna škola (Privatna osnovna škola Vladislav Petković Dis)7 min
- Srednja škola (Gimnazija Vladislav Petković Dis)7 min
- Vrtić (Dečiji vrtić Naš vrtić)5 min
- Fakultet (Univerzitet u Beogradu Stomatološki fakultet)6 min

- Bolnica (Specijalna bolnica za dermatovenerologiju Ioanna)10 min
- Klinika (Poliklinika Labodijagnostika)5 min
- Teretana (Fitnes lanac samo za žene: 30)7 min
- Prodavnica (Soulfood market)1 min
- Restoran (Restoran Stara Srbija)2 min
- Kafana (Kafana Gradimir)9 min
- Taksi stajalište (Taxi stanica)5 min
- Autobuska stanica (Pijaca „Kalenić“)5 min
- Tramvajska stanica (Karađorđev Park)16 min
- Trolejbuska stanica (Vojvode Dragomira)6 min
- Banka (OTP banka)6 min
- Pošta (Pošta Beograd 32)5 min
Kontakt oglašivača
Krediti OTP banke
Saznaj više
Prikazana rata odnosi se na maksimalni period otplate. Kalkulator je informativnog karaktera.
* Nakon isteka 5 godina, prelazi se na varijabilnu kamatnu stopu


