Garsonjera na prodaju, Centar, 93.000€, 26m²










93.000 €
3.577 € / m2
- Centralno grejanje
- Uobičajeno stanje
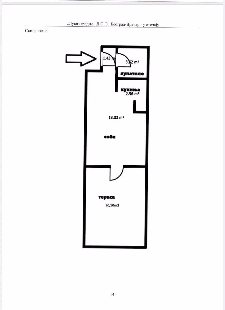
- Prostorije: kupatilo, terasa
- Opremljenost: interfon
- Uknjiženo
- Oglas oglašava agencija pod reg. brojem 2027
Opis oglasa
U mirnoj i urbanoj Mariborskoj ulici, na odlično povezanoj lokaciji, nalazi se ovaj funkcionalan studio apartman površine oko 26 m², sa čak 20.50 m² prostrane terase koja predstavlja pravi mali gradski kutak za uživanje.
Stan se nalazi u prizemlju uredne stambene zgrade i odlikuje se praktičnim rasporedom koji omogućava maksimalno iskorišćenje prostora. Velika terasa daje dodatnu vrednost nekretnini i pruža mogućnost da se napravi prijatan prostor za odmor, rad na otvorenom ili druženje.
Lokacija je izuzetno praktična za svakodnevni život – u neposrednoj blizini nalaze se prodavnice, kafići, restorani, kao i stanice gradskog prevoza, što omogućava brzu povezanost sa centrom grada i ostalim delovima Beograda.
Ova nekretnina predstavlja odličan izbor kako za lični život, tako i za investiciju i izdavanje, zbog velike potražnje za manjim stanovima na dobro povezanim lokacijama.
Osnovne karakteristike:
- Lokacija: Mariborska ulica
- Tip nekretnine: Studio stan
- Površina stana: oko 26 m²
- Terasa: oko 20.50 m²
- Sprat: prizemlje
- Funkcionalan raspored
- Velika terasa sa potencijalom za uređenje
- Odlična povezanost sa gradom
Ovaj stan je idealna prilika za kupce koji traže manju, funkcionalnu nekretninu sa dodatnim spoljnim prostorom, ali i za investitore koji žele sigurnu nekretninu za izdavanje.
Prednost imaju kupci sa gotovinskim načinom plaćanja.
Za više informacija i zakazivanje gledanja stana:
Danijela Perić
Domea 88 Real Estate
Telefon:
+38... (prikaži broj telefona)
Email: [email protected]
Web: http://www.domea88.com
*Sačuvaj oglas uz belešku i primaj obaveštenja o njihovom pojeftinjenju ili pojavljivanju sličnih
Prikaz stana na mapi
Parkovi u blizini
- Park Slavujev potok49 min

Obeležja kulture u blizini
- Pašina česma8 min
- Rodna kuća vojvode Stepe Stepanovića13 min
- Stara mehana u Kumodražu13 min

Škole/Fakulteti/Vrtići u blizini
- Osnovna škola (Osnovna škola Dragojlo Dudić)3 min
- Srednja škola (Građevinska tehnička škola Branko Žeželj)11 min
- Vrtić (Dečiji vrtić Bambi)18 min
- Fakultet (Visoka građevinsko-geodetska škola Beograd)11 min

- Bolnica (Specijalna bolnica za cerebralnu paralizu i razvojnu neurologiju)13 min
- Klinika (Poliklinika i laboratorija LaboMedica)14 min
- Teretana (Trening centar Kubo)17 min
- Prodavnica (Aman SOS market)3 min
- Restoran (Restoran Soko)9 min
- Kafana (Pub Republika)23 min
- Taksi stajalište (Taxi stanica)21 min
- Autobuska stanica (OŠ Dragojlo Dudić)3 min
- Tramvajska stanica (Ustanička)20 min
- Trolejbuska stanica (Marčanska)33 min
- Banka (Eurobank Direktna)5 min
- Pošta (Pošta Kaluđerica)5 min
Kontakt oglašivača
Krediti OTP banke
Saznaj više
Prikazana rata odnosi se na maksimalni period otplate. Kalkulator je informativnog karaktera.
* Nakon isteka 5 godina, prelazi se na varijabilnu kamatnu stopu


