Trosoban stan na prodaju, Centar, 278.000€, 72m²


278.000 €
3.861 € / m2
- Stan u zgradi
- Centralno grejanje
- U izgradnji
- Opremljenost: Prazno - klima
- Oglas oglašava agencija pod reg. brojem 1564
- 1 garažno mesto
- 1 lift
Opis oglasa
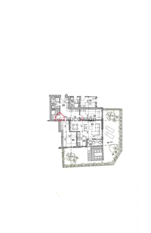
U ponudi je moderan i funkcionalan stan smešten u novogradnji u Bilećkoj ulici, na jednoj od traženijih lokacija na Voždovcu. Nekretnina se nalazi u mirnom i uređenom okruženju, idealnom za porodični život, ali i za one koji žele komfor urbanog stanovanja.
Posebnu prednost ovog stana predstavlja pripadajuće dvorište površine 70 m², koje obezbeđuje dodatni komfor i visok nivo privatnosti. Direktan izlaz u dvorište čini ovaj prostor idealnim za boravak na otvorenom, odmor, igru dece ili boravak kućnih ljubimaca.
Novogradnja podrazumeva savremene materijale, kvalitetnu izradu i moderan koncept stanovanja. Raspored prostorija je pažljivo osmišljen i omogućava funkcionalan i udoban svakodnevni život.
Uz stan se prodaje i garažno mesto po ceni od 30.000 evra, pri čemu je u pitanju klasično garažno mesto, nije u sistemu kaskade (klackalice).
Lokacija je odlično povezana sa ostatkom grada i nudi blizinu svih neophodnih sadržaja — prodavnica, škola, vrtića i javnog prevoza.
Useljenje je planirano za septembar, što ovu nekretninu čini odličnim izborom kako za buduće stanovanje, tako i za investiciju.
Agencija: Kuća i stan DOO,
Hadži Prodanova 14/1,
Beograd/Vračar,
Reg. br. agencije: 1564
*Sačuvaj oglas uz belešku i primaj obaveštenja o njihovom pojeftinjenju ili pojavljivanju sličnih
Prikaz stana na mapi
Parkovi u blizini
- Park Šumice9 min
- Bajronov park21 min
- Park Urbani džep21 min

Obeležja kulture u blizini
- Osnovna škola Kralj Petar II Karađorđević4 min
- Spomenik Internacionalnim brigadama5 min
- Spomenik žrtvama bombardovanja Beograda5 min

Škole/Fakulteti/Vrtići u blizini
- Osnovna škola (Osnovna škola Miodrag Matić)10 min
- Srednja škola (Škola za negu lepote)4 min
- Vrtić (Dečiji vrtić Biseri)9 min
- Fakultet (Univerzitet Singidunum)10 min

- Bolnica (Bolnica za bolesti zavisnosti Lorijen)11 min
- Klinika (Poliklinika Antamedica)22 min
- Teretana (Teretana Vožd Tim)3 min
- Prodavnica (Naš market)5 min
- Restoran (Restoran Stari bunar)3 min
- Kafana (Stara kafana Dušanovac)6 min
- Taksi stajalište (Taxi stanica)6 min
- Autobuska stanica (Dušanovac /Pošta)4 min
- Tramvajska stanica (Bože Jankovića)17 min
- Trolejbuska stanica (Kruševačka)12 min
- Banka (Raiffeisen Bank)5 min
- Pošta (Pošta Beograd 11)5 min
Kontakt oglašivača
Krediti OTP banke
Saznaj više
Prikazana rata odnosi se na maksimalni period otplate. Kalkulator je informativnog karaktera.
* Nakon isteka 5 godina, prelazi se na varijabilnu kamatnu stopu


