Jednoiposoban stan na prodaju, Centar, 111.500€, 45m²






111.500 €
2.478 € / m2
- Etažno grejanje
- Novo
- Prostorije: kupatilo, terasa
- Oglas oglašava agencija pod reg. brojem 940
- 1 lift
- 1 telefonska linija
Opis oglasa
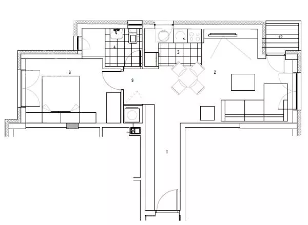
U ponudi je jednoiposoban stan koji se nalazi u novom stambenom objektu spratnosti Po1+Po2+P+5 na lepoj lokaciji u blizini keja. Površine je 45,5m2, nalazi se na V spratu stambene zgrade sa liftom. Sastoji se iz ulaznog hodnika, dnevnog boravka, spavaće sobe, kupatila i terase. Stanovi su projektovani tako da kupcima pružaju ugodnost i udobnost stanovanja. Poseban akcenat je na poštovanju najnovijih zahteva energetske efikasnosti što će Vam pružiti mogućnost luksuznog stanovanja uz minimalne troškove. U gradnji se koriste najkvalitetniji materijali: fasadni zidovi višeslojni od giter blokova debljine 20cm, na podovima će biti postavljen parket I klase, dok će u kuhinji i kupatilu biti postavljena granitna keramika, unutrašnja vrata biće od furniranog medijapaana, stolarija će biti PVC profila, grejanje će biti etažno. Krov će biti ravni sa zelenom površinom. Uz stan se dobija ostava a postoji mogućnost kupovine i parking mesta. Sama lokacija objekta će Vam pružiti sve što Vam je potrebno za miran, kvalitetan i komforan porodičan život. U cenu je uključen PDV i kupci prvog stana imaju pravo na povraćaj PDV-a u iznosu od 10%. Za više informacija o ovoj ili drugim nekretninama i zakazivanje razgledanja kontaktirajte agenta na broj telefona iz oglasa (poziv, sms, viber) ili putem e-maila. Kompletnu ponudu dostupnih nekretnina možete pronaći na našem sajtu. Agencija Proagent nekretnine je upisana u Registru posrednika pod brojem: 940.
*Sačuvaj oglas uz belešku i primaj obaveštenja o njihovom pojeftinjenju ili pojavljivanju sličnih
Prikaz stana na mapi
Parkovi u blizini
- Park heroja NOB-a15 min
- Park Čair17 min
- Park složnih komšija27 min

Obeležja kulture u blizini
- Kuća Stambolijskih5 min
- Spomenik Stevanu Sremcu i Kalči8 min
- Vladičanski dvor7 min

Škole/Fakulteti/Vrtići u blizini
- Osnovna škola (Osnovna škola Dositej Obradović)5 min
- Srednja škola (Prehrambeno-hemijska škola)4 min
- Vrtić (Dečiji vrtić Vera)2 min
- Fakultet (Univerzitet u Nišu Ekonomski fakultet)3 min

- Bolnica (Urgentni centar Niš)9 min
- Klinika (Poliklinika Longa Vita)6 min
- Teretana (Gym Town 1)6 min
- Prodavnica (Gomex market)2 min
- Restoran (Fast food Familys food)1 min
- Kafana (Pivnica Konstantin)8 min
- Taksi stajalište (Bros Taxi Niš)1 min
- Autobuska stanica (Obilićev Venac (šojka))1 min
- Banka (Erste Bank Ekspres ekspozitura)manje od 1 min
- Pošta (Pošta Niš 5)6 min
Kontakt oglašivača
Krediti OTP banke
Saznaj više
Prikazana rata odnosi se na maksimalni period otplate. Kalkulator je informativnog karaktera.
* Nakon isteka 5 godina, prelazi se na varijabilnu kamatnu stopu


