Trosoban stan na prodaju, Ljube Nešića, 111.000€, 74m²
Zaječar, Gradske lokacije, Centar
Prikaži mapuOglas ažuriran: pre 2 dana








111.000 €
1.500 € / m2
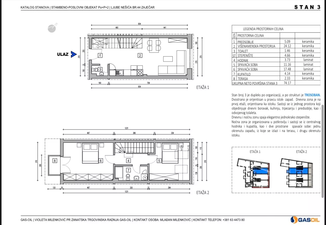
74 m²
3 sobe
1/2 sprata
- Stan u zgradi
- Centralno grejanje
- U izgradnji
- Prostorije: kupatila (2), toaleti (2), terasa
- Uknjiženo
- Kupovina direktno od investitora
- 1 parking mesto, parking u dvorištu zgrade
- Godina izgradnje: 2025.
- Zgrada poseduje: dvorište, podrum, video nadzor
Opis oglasa
STANOVI NA PRODAJU- STROGI CENTAR, Zajecar
Prodaja novih, luksuznih duplex stanova u samom centru grada!
U ponudi si trosobni duplex stanovi povrsine 74 m2, 81m2, 99m2
✅ Novogradnja- savremeni materijal i moderan dizajn. ✅Odlicna lokacija- strogi centar grada. ✅Rezervacije u toku ✅Cena- od 1400€ + PDV po m2
*Sačuvaj oglas uz belešku i primaj obaveštenja o njihovom pojeftinjenju ili pojavljivanju sličnih
Prikaz stana na mapi
Parkovi u blizini
- Park šuma Kraljevica31 min

Obeležja kulture u blizini
- Spomenik Zoranu Radmiloviću4 min
- Spomenik Nikoli Pašiću5 min
- Spomenik Vešala7 min

Škole/Fakulteti/Vrtići u blizini
- Osnovna škola (Osnovna škola Ljubica Radosavljević Nada)18 min
- Srednja škola (Ekonomsko-trgovinska škola Zaječar)5 min
- Vrtić (Dečiji vrtić Zdravac)19 min
- Fakultet (Megatrend Univerzitet Fakultet za menadžment)5 min

Zdravlje
- Bolnica (Opšta bolnica Zaječar)8 min
- Klinika (Poliklinika Đoković)12 min
- Teretana (Teretana Gym Xtreme)12 min
Hrana i piće
- Prodavnica (Tis market 3)16 min
- Restoran (Restoran Varoš)14 min
- Kafana (Pab Kuća piva Z)21 min
Prevoz
- Taksi stajalište (Taxi stanica)8 min
- Autobuska stanica6 min
Ostale ustanove
- Banka (OTP banka)21 min
- Pošta (Pošta Zaječar 4)16 min
Kontakt oglašivača
Neda Milenkovic
▾Reklama▾
Stambeni krediti

- Period otplate od
96 -360 meseca
- NKS 4.75%
EKS 5.74%
Fiksna kamatna stopa
- Bez troškova obrade kredita
438 € / mesečno
Saznaj višePogledaj detaljnije i menjaj uslove kreditiranja na
stranici kreditnih kalkulatora
stranici kreditnih kalkulatora
Keš krediti
RSDIznos kredita
Period otplate
13 meseciOsiguranje domaćinstva online
Osiguraj svoje domaćinstvo u slučaju požara...
