Garsonjera na prodaju, Knez Ive, 53.000€, 29m²


53.000 €
1.828 € / m2
- Stan u zgradi
- Centralno grejanje
- Uobičajeno stanje
- Prostorije: kupatilo, terasa
- Opremljenost: Namešteno - TV, veš mašina, kuhinjski elementi, sudo mašina, frižider, šporet, ležaj, plakar, ugradni plakar
- Orijentacija ka: jugozapad
- Pogled na: dvorište
- Delimično uknjiženo
- Kupovina direktno od vlasnika
- Parking u dvorištu zgrade
- Zgrada poseduje: podrum
Opis oglasa
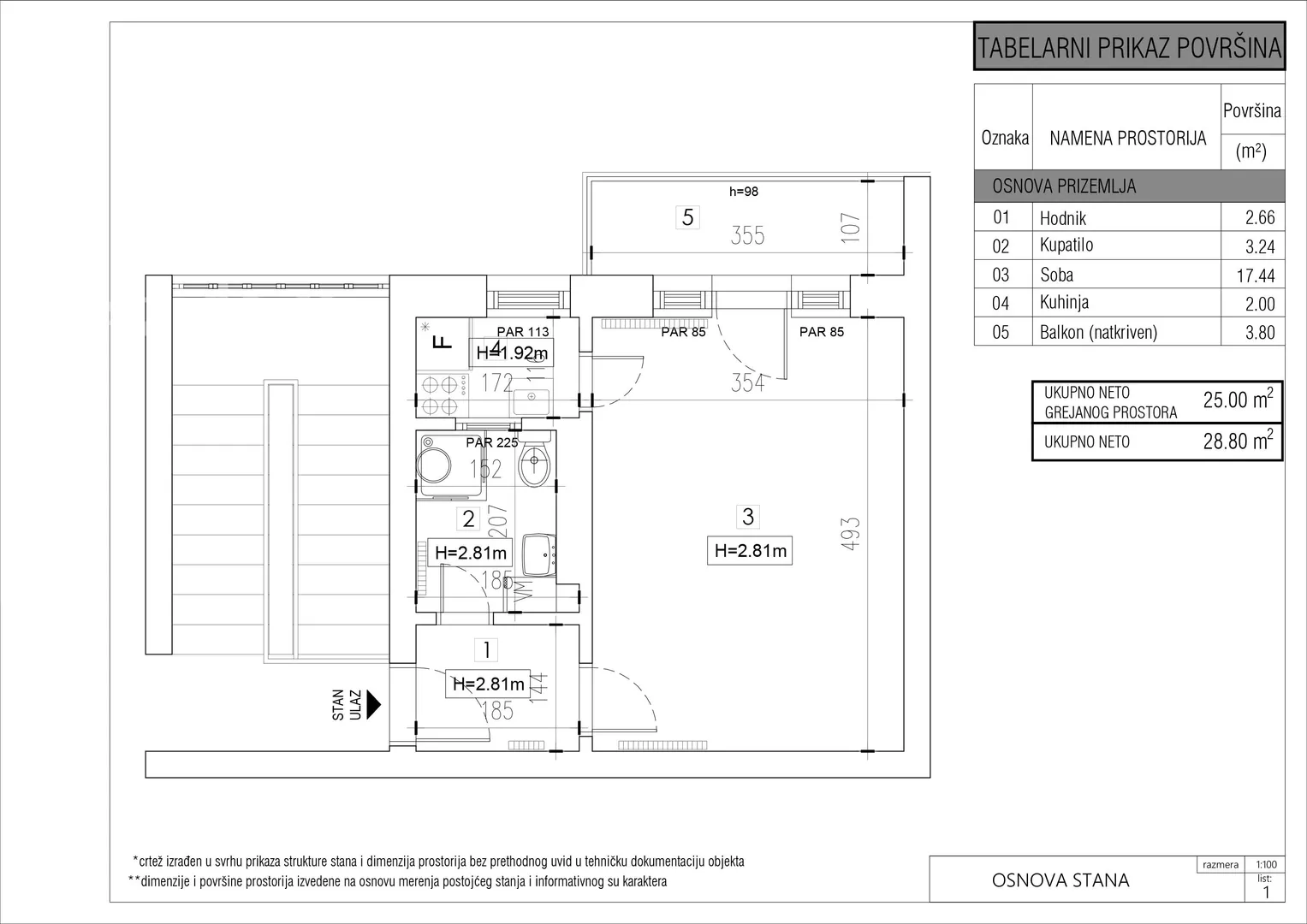
Prodaje se stan-garsonjera (jednosoban stan) ukupne površine 28.80m2 u zgradi u centru Šapca u ulici Knez Ive od Semberije, neposredno uz Gradski park. Stan se nalazi na četvrtom spratu stambene zgrade stare gradnje. Zgrada ne poseduje lift. Stepenište je projektovano za lako savladavanje (dimenzija stepenika ~15cm/34cm). Stan je po strukturi jednosoban stan sa ulaznim hodnikom, kupatilom, sobom i odvojenom kuhinjom i natkrivenim balkonom. Stan je uknjižen na 25m2 (u vreme izgradnje u knjižnu površinu nije računat balkon). Balkon je površine 3.8m2. Provetravanje kupatila je prirodno putem prozora, postignuto posredno ventilacionim kanalom koji se pruža iznad kuhinje do fasadnog otvora. Sistem grejanja je daljinsko grejanje na toplanu. Stan poseduje pripadajuću podrumsku ostavu. Na zgradi je kompletno rekonstruisan krov sa novim krovnim pokrivačem, kao i termoizolacijom tavanske ploče (iznad stana). Stan je useljiv sa mogućnošću renoviranja.
*Sačuvaj oglas uz belešku i primaj obaveštenja o njihovom pojeftinjenju ili pojavljivanju sličnih
Prikaz stana na mapi
Parkovi u blizini
- Veliki park2 min
- Gradski park Šabac8 min
- Šuma Letnjikovac43 min

Obeležja kulture u blizini
- Spomenik Janku Veselinoviću2 min
- Spomenik Ivanu Kneževiću3 min
- Spomenik žrtvama Balkanskih i Prvog svetskog rata9 min

Škole/Fakulteti/Vrtići u blizini
- Osnovna škola (Osnovna škola Sveti Sava za decu sa smetnjama u razvoju i invaliditetom)8 min
- Srednja škola (Srednja poljoprivredna škola Šabac)20 min
- Vrtić (Dečiji vrtić Bubamara)9 min
- Fakultet (Pravni fakultet za privredu i pravosuđe Univerzitet Privredna akademija)3 min

- Bolnica (Opšta bolnica Dr Laza K. Lazarević Šabac)7 min
- Klinika (Poliklinika MC Park)7 min
- Teretana (Falcons Gym & Crossfit)4 min
- Prodavnica (Promex - rinfuzna roba)4 min
- Restoran (Ekspres restoran Balkan ekspres)5 min
- Kafana (Irish Pub)10 min
- Taksi stajalište (Taxi stanica)23 min
- Autobuska stanica (Православна црква)9 min
- Banka (Banca Intesa)3 min
- Pošta (Pošta Šabac 1)5 min
Kontakt oglašivača
Krediti OTP banke
Saznaj više
Prikazana rata odnosi se na maksimalni period otplate. Kalkulator je informativnog karaktera.
* Nakon isteka 5 godina, prelazi se na varijabilnu kamatnu stopu

