Trosoban stan na prodaju, Maksima Gorkog 56, 108.000€, 60m²














108.000 €
1.800 € / m2
- Stan u zgradi
- Grejanje na gas
- U izgradnji
- Prostorije: kupatilo, toalet, terasa
- Opremljenost: Prazno - internet, ventilacija
- Orijentacija ka: istok
- Pogled na: ulicu, dvorište
- Uknjiženo
- Kupovina direktno od investitora
- 8 parking mesta, parking u dvorištu zgrade, javni parking u zoni
- 1 lift
- Godina izgradnje: 2025.
- Zgrada poseduje: alarm, lođa, ventilacija, video nadzor
- Tip interneta: optički
- Kablovska
- 1 telefonska linija
Opis oglasa
MZN Housing
Rok useljenja - MART 2026.
Novi Stanovi na Prodaju u Pančevu
Lokacija: Maksima Gorkog 56, Pančevo (odmah preko puta Brankove škole)
Cena: 1.800 EUR plus PDV
Mogu naravno i kreditni kupci, zgrada je u fazi završetka, očekuje se da radovi budu gotovi do kraja februara sa useljenjem u martu mesecu.
Preostali dostupni stanovi:
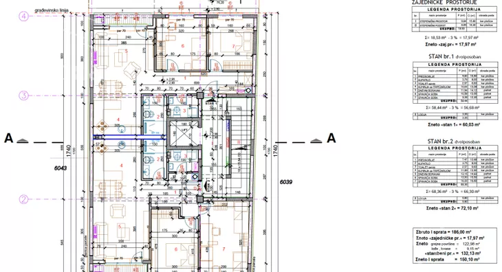
Stan 1 - 60 m2 - trosoban
Stan 2 - 72,1 m2 - trosoban
Stan 5 - 65,3 m2 - trosoban
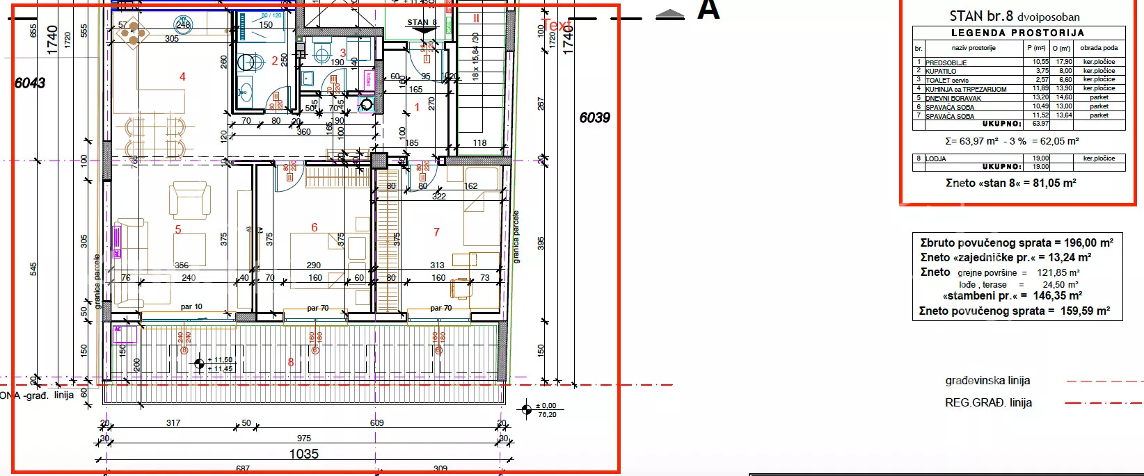
Stan 8 - 81 m2 - trosoban sa lodjom (najlepsi pogled na ceo grad)
MZN Housing nudi na prodaju savremene stanove u novoizgrađenoj stambenoj zgradi na odličnoj lokaciji u Pančevu - odmah preko puta osnovne škole. Udaljenost od glavne ulice u Pančevu - Vojvodine Radomira Putnika, 700 metara.
Stanovi su idealni za sve koji žele modernu i funkcionalnu nekretninu sa visokim standardima gradnje i kvalitetnom opremom. Svaki kvadrat je iskorišćen zarad funkcionalnosti življenja budućih kupaca. Svi stanovi imaju dva mokra čvora. Stolarija visokokvalitetna sedmokomorna REHAU, sa trostrukim termoizolacionim staklom, hrastov parket, Kleeman lift... Zgrada je izgrađena uz maksimalnu pažnju prema energetskoj efikasnosti i kvalitetu građevinskih materijala. Grejanje je na gas.
Zgrada pruža intimnost jer ima samo 8 stanova (dva po spratu) i svaki stan ima pripadajuće parking mesto napolju ili unutar zgrade.
Za sve detalje i pokazivanje stanova nas pozovite - 065... (prikaži broj telefona)
ili pišite na email: [email protected]
*Sačuvaj oglas uz belešku i primaj obaveštenja o njihovom pojeftinjenju ili pojavljivanju sličnih
Prikaz stana na mapi
Parkovi u blizini
- Narodna bašta Pančevo12 min
- Park na Trgu kralja Petra14 min
- Park Barutana16 min

Obeležja kulture u blizini
- Spomenik vojvodi Stevanu Šupljikcu5 min
- Zgrada Stare bolnice6 min
- Kompleks Svilara8 min

Škole/Fakulteti/Vrtići u blizini
- Osnovna škola (Osnovna škola Branko Radičević)3 min
- Srednja škola (Privatna ekonomsko menadžerska škola Pančevo)5 min
- Vrtić (Dečiji vrtić Lane)6 min
- Fakultet (Stomatološki fakultet Pančevo)7 min

- Bolnica (Hirurška ordinacija Arsov Marčetić)4 min
- Klinika (Poliklinika Dr Putnik)9 min
- Teretana (Fitnes klub Forma)4 min
- Prodavnica (Maxi Supermarket)7 min
- Restoran (Konoba Akustik 32)10 min
- Kafana (Publika pub)13 min
- Taksi stajalište (Taxi stanica)9 min
- Autobuska stanica (Donji mlin)5 min
- Banka (Eurobank Direktna)5 min
- Pošta (Pošta Pančevo 13)6 min
Kontakt oglašivača

Stambeni krediti

- Period otplate od
96 -360 meseca
- NKS 4.75%
EKS 5.74%
Fiksna kamatna stopa
- Bez troškova obrade kredita
stranici kreditnih kalkulatora
Keš krediti
Period otplate
13 meseci