Troiposoban stan na prodaju, Cara Dušana, 149.831€, 81m²








149.831 €
1.850 € / m2
- Stan u zgradi
- Etažno grejanje
- Novo
- Prostorije: ostava
- Oglas oglašava agencija pod reg. brojem 1984
- 1 garažno mesto
- 1 lift
- Godina izgradnje: 2025.
- Zgrada poseduje: lođa
Opis oglasa
Na izuzetnoj lokaciji, u blizini Narodne bašte ,škole, obdaništa,..U prilici smo da Vam predstavimo izuzetnu novogradnju investitora koji se već dokazao na tržištu Pančeva svojim kvalitetom gradnje.
Prilikom projektovanja posebno je vođeno računa o termo i zvucnoj izolaciji objekta.
Gradi se termo blokom koji ima posebna termoizolaciona svojstva , fasada se radi stiroporom 10 cm debljine, stolarija je PVC sedmokomorna sa aluminijumskom oblogom spolja i troslojnim staklom Nemacke firme Rehau i aluminijumskim roletnama ,sto dodatno daje bolju termo i zvučnu izolaciju. Zidovi između stanova se zidaju Xella-Silka silikatnim blokom koji je vrhunski zvucni izolator do 56 decibela.
U zgradi je ugradjem lift Nemacke firme KLEEMANN.
Grejanje je etažno radijatorsko , sa kotlovima na struju a za hladjenje svaki stan ima klima uređaj.
Od ostale opreme: keramika Italijanska i Spanska, staklene tuš kabine, parket prve klase , blindirana ulazna vrata furnirana , vrhunskog kvaliteta , sobna vrata farbani medijapan i dr.
Planirani rok završetka je kraj 2025 godine.
Mogućnost kupovine garažnom mesta po ceni od 10.000 eura sa uračunatim PDVom ili parking mesta po ceni od 5.000 eura sa uračunatim PDVom
Cena stana je izražena sa uračunatim PDVom . Mogućnost povrata PDVa za kupce prve nepokretnosti.
Za svaku preporuku.
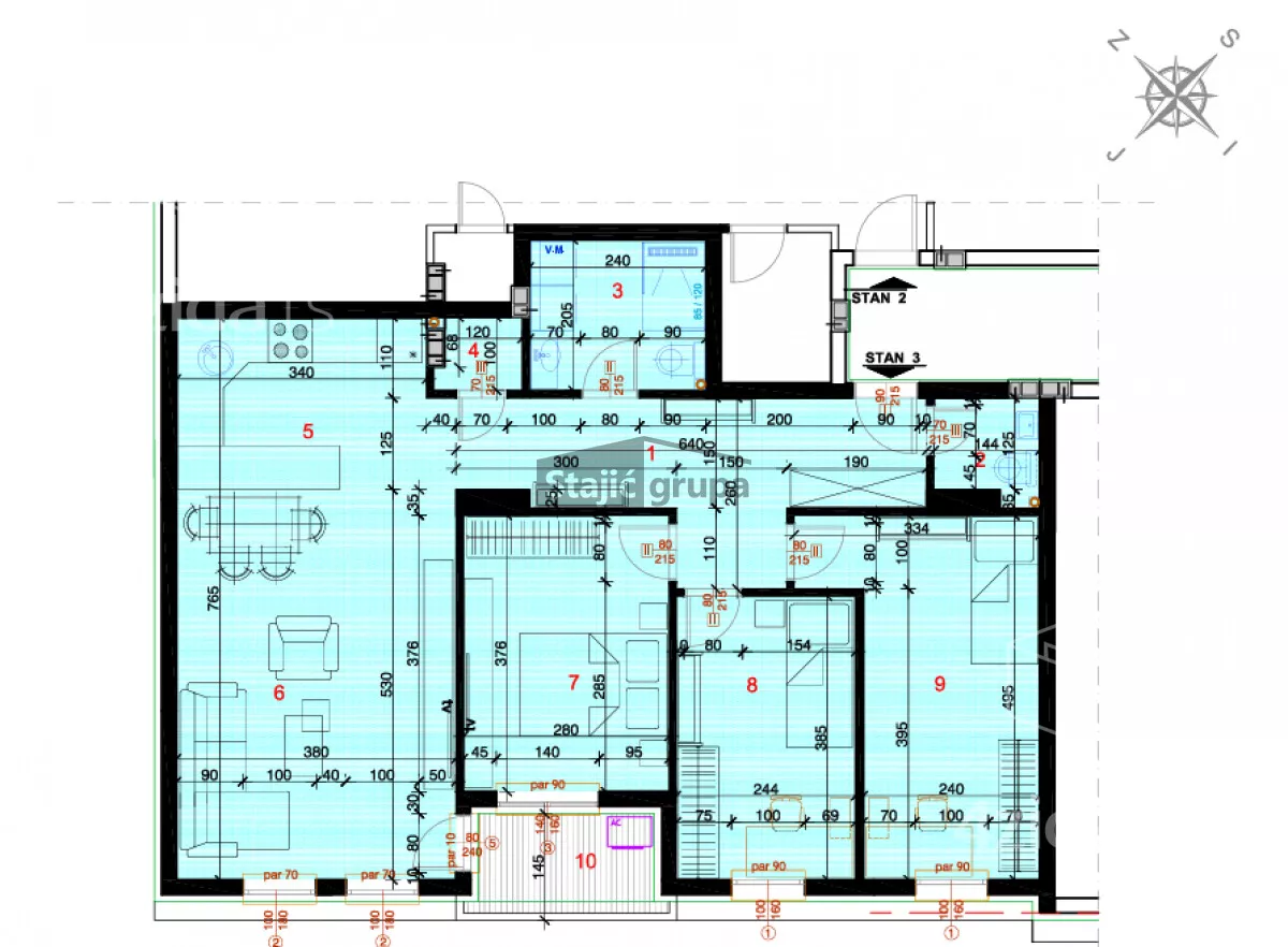
Prostorije: predsoblje, dnevni boravak sa trpezarijom, kuhinja, tri spavaće sobe, kupatilo, toalet, lođa, ostava.
Agencijska provizija 3%
*Sačuvaj oglas uz belešku i primaj obaveštenja o njihovom pojeftinjenju ili pojavljivanju sličnih
Prikaz stana na mapi
Parkovi u blizini
- Narodna bašta Pančevo4 min
- Park Barutana9 min
- Park na Trgu kralja Petra20 min

Obeležja kulture u blizini
- Kompleks Svilara8 min
- Zgrada Stare bolnice10 min
- Spomenik vojvodi Stevanu Šupljikcu8 min

Škole/Fakulteti/Vrtići u blizini
- Osnovna škola (Specijalna osnovna škola Mara Mandić)6 min
- Srednja škola (Privatna ekonomsko menadžerska škola Pančevo)12 min
- Vrtić (Dečiji vrtić Ljiljan)11 min
- Fakultet (Stomatološki fakultet Pančevo)5 min

- Bolnica (Opšta bolnica Pančevo)9 min
- Klinika (Poliklinika Dr Putnik)7 min
- Teretana (Fitnes klub Forma)4 min
- Prodavnica (IDEA Super)11 min
- Restoran (Restoran Zen)11 min
- Kafana (Publika pub)18 min
- Taksi stajalište (Taxi stanica)7 min
- Autobuska stanica (Donji mlin)7 min
- Banka (UniCredit Bank)12 min
- Pošta (Pošta Pančevo 3)5 min
Kontakt oglašivača
Stambeni krediti

- Period otplate od
96 -360 meseca
- NKS 4.75%
EKS 5.74%
Fiksna kamatna stopa
- Bez troškova obrade kredita
stranici kreditnih kalkulatora
Keš krediti
Period otplate
13 meseci