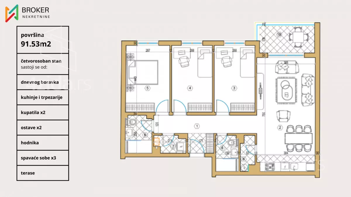
Četvorosoban stan na prodaju, Centar, 164.754€, 91m²




164.754 €
1.810 € / m2
- Stan u zgradi
- Grejanje na gas
- Novo
- Prostorije: terasa
- Opremljenost: Prazno - klima
- Oglas oglašava agencija pod reg. brojem 1436
- 1 lift
- Godina izgradnje: 2027.
Opis oglasa
Modena novogradnja u centru grada. Objekat sa malim brojem stanova, što obezbeđuje mir i garantuje privatnost.
Stan se sastoji od:
- Dnevnog boravka sa kuhinjom i trpezarijom
- 3 spavaće sobe
- 2 kupatila
- Terase
- Ostave
- Vešeraja
- Hodnika
Takođe poseduje:
- Grejanje: gas (radijatori + podno gde je keramika)
- PVC stolariju, sedmokomorna stakla
- Klima uređaj
- Tarketov parket
- Geberit ugradni vodokotlić
- Elektro podizače roletni
Zgrada poseduje LIFT: DA
Nalazi se na spratu: 2 (nije poslednji)
Stan iste kvadrature i strukture nalazi se na spratovima: od 1. do 4.
Rok za završetak radova je 1.4.2027. godine
Na cenu stana kupac ne plaća PDV, već samo porez na prenos apsolutnih prava u iznosu od 2,5%
Postoji mogućnost kupovine parking mesta po ceni od 8.000€
Postoji mogućnost kupovine garažnog mesta po ceni od 14.000€
Moguća kupovina putem kredita: DA
Moguća kupovina putem kredita za mlade: NE
Agencijska provizija za posredovanje: 0 % od cene nepokretnosti.
Broker Nekretnine
Broker Nevena
Kancelarija: Karađorđeva 2a
*Sačuvaj oglas uz belešku i primaj obaveštenja o njihovom pojeftinjenju ili pojavljivanju sličnih
Prikaz stana na mapi
Parkovi u blizini
- Park na Trgu kralja Petramanje od 1 min
- Narodna bašta Pančevo22 min
- Park Barutana26 min

Obeležja kulture u blizini
- Spomenik vojvodi Stevanu Šupljikcu7 min
- Zgrada Stare bolnice8 min
- Kompleks Svilara9 min

Škole/Fakulteti/Vrtići u blizini
- Osnovna škola (Osnovna škola Jovan Jovanović Zmaj)6 min
- Srednja škola (Privatna srednja stručna škola Vizija)5 min
- Vrtić (Predškolska ustanova Dečja radost Pančevo)9 min
- Fakultet (Stomatološki fakultet Pančevo)12 min

- Bolnica (Bolnica za očne bolesti Pančevo)6 min
- Klinika (Poliklinika MD)7 min
- Teretana (Fitnes klub Forma)4 min
- Prodavnica (Maxi Supermarket)2 min
- Restoran (Bistro Kokoschka)2 min
- Kafana (Stara Vajfertova pivara)6 min
- Taksi stajalište (Taxi stanica)5 min
- Autobuska stanica (Gradska uprava)2 min
- Banka (Eurobank Direktna)3 min
- Pošta (Pošta Pančevo 6)3 min
Kontakt oglašivača
Krediti OTP banke
Saznaj više
Prikazana rata odnosi se na maksimalni period otplate. Kalkulator je informativnog karaktera.
* Nakon isteka 5 godina, prelazi se na varijabilnu kamatnu stopu


