Dvoiposoban stan na prodaju, Sterijina 33, 79.800€, 57m²






























79.800 €
1.400 € / m2
- Stan u zgradi
- Grejanje na gas
- U izgradnji
- Prostorije: kupatilo, terasa
- Opremljenost: Prazno - klima
- U procesu uknjižavanja
- Oglas oglašava agencija pod reg. brojem 2054
- 1 parking mesto
- Godina izgradnje: 2026.
Opis oglasa
Kupovinom preko IGNIS Nekretnine dobijate 0% posredničke provizije – plaćate samo cenu stana!
Sigurna kupovina, provereni investitor i vrhunski kvalitet gradnje.
Planiran zavrsetak izgradnje jul 2026.
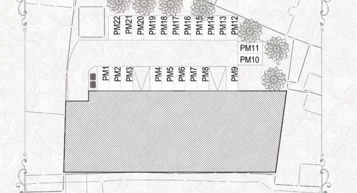
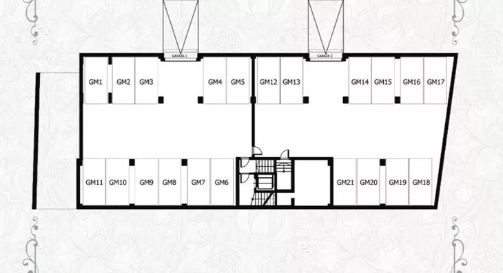
U ovom albumu se nalaze trenutno dostupni stanovi.
📍 Sterijina 33, Subotica
📐 45,15–57,36 m² | 1–2,5 sobe
💶 €1400–€1450/m² + PDV(cena zavisi od modela plaćanja)
🏗️ Investitor: MD Inženjering Doo
Moguća kupovina garažnih i parking mesta
Rezervacije su u toku — obezbedite svoj novi dom bez dodatnih troškova!
Video nadzor, centralno gasno grejanje sa kalorimetrima, klima, tarket podovi, italijanska keramika i sanitarije, geberit ugradni vodokotlici, prozori pvc šestokomorni sa troslojnim staklima, spolja antracit, električne roletne.
📞 065... (prikaži broj telefona)
*Sačuvaj oglas uz belešku i primaj obaveštenja o njihovom pojeftinjenju ili pojavljivanju sličnih
Prikaz stana na mapi
Parkovi u blizini
- Park Dudova šuma12 min
- Park Rajhl Ferenca19 min
- Park Prozivka40 min

Obeležja kulture u blizini
- Palata Rajhl4 min
- Spomenik Dežeu Kostolanjiju5 min
- Leović palata6 min

Škole/Fakulteti/Vrtići u blizini
- Osnovna škola (Školski centar Dositej Obradović)11 min
- Srednja škola (Ekonomska škola Bosa Milićević)14 min
- Vrtić (Dečiji vrtić Mandarina)5 min
- Fakultet (Otvoreni univerzitet Subotica)15 min

- Bolnica (Neuropsihijatrska ambulanta Subotica)15 min
- Klinika (Poliklinika Dr Evetović)9 min
- Teretana (EMS Studio Maxifit)10 min
- Prodavnica (Supermarket Univerexport)5 min
- Restoran (Prenoćište Guest House)13 min
- Kafana (Pub & bar Samo pivo)13 min
- Autobuska stanica (Dudova Šuma-Groblje)6 min
- Banka (NLB Komercijalna banka)4 min
- Pošta (Pošta Subotica 12)13 min
Kontakt oglašivača
Stambeni krediti
- Period otplate od
96 -360 meseca
- NKS 4.34%
Kombinovana kamatna stopa
- Bez troškova obrade kredita
- Odobrenje kredita do 48h
- Period otplate od
96 -360 meseca
- NKS 4.50%
EKS 5.74%
Fiksna kamatna stopa
- Bez troškova obrade kredita
stranici kreditnih kalkulatora
Keš krediti
Period otplate
13 meseci
