Dvosoban stan na prodaju, Cetinjska, 106.085€, 43m²






106.085 €
2.467 € / m2
- Etažno grejanje
- U izgradnji
- Prostorije: kupatilo, terasa
- Opremljenost: interfon
- Uknjiženo
- Oglas oglašava agencija pod reg. brojem 1158
- 1 garažno mesto
- 1 lift
- Zgrada poseduje: prilaz za invalide
Opis oglasa
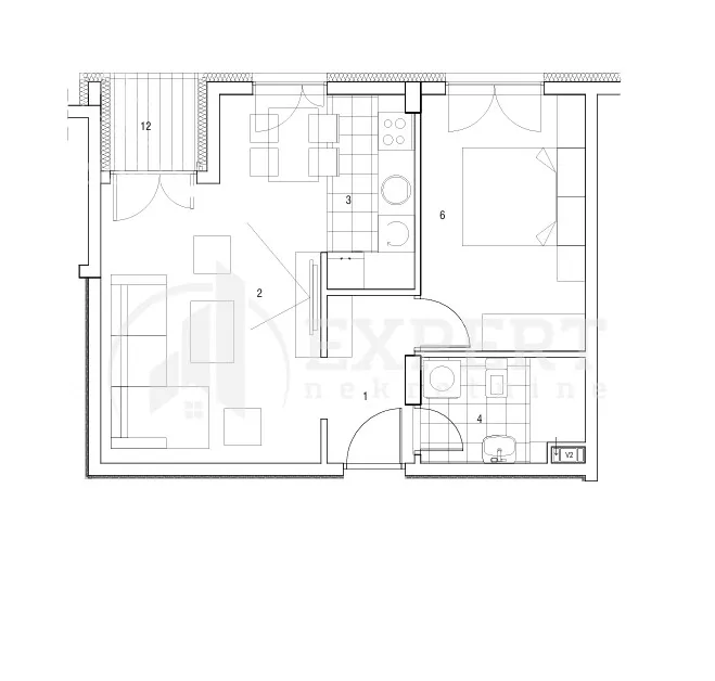
U neposrednoj blizini fakulteta, u mirnom i centralnom delu grada, nalazi se stambeni objekat projektovan da obezbedi maksimalnu udobnost i kvalitet stanovanja. Stan se nalazi na petom spratu modernog stambenog objekta sa liftom. Orijentacija stana je severna. Sturuktura je dvosobna. Stan se sastoji od ulaznog hodnika, kupatila, spavaće sobe, i prostranog višenameskog prostora gde je dnevna soba, kuhinja, trepezarija i izlaz na terasu. Stolarija je sa sedmokomornim PVC profilima i troslojnim staklom, roletne sa električnim podizačima, etažno grejanje i inverter klima uređaji, na podu je parket prve klase, granitne tuš kade, svaki stan ima sopstveni vodomer. Rok završetka je oktobar 2026g. Za kupce prve nekretnine moguć je povrat PDV-a. Moguća kupovina putem stambenog kredita.
*Sačuvaj oglas uz belešku i primaj obaveštenja o njihovom pojeftinjenju ili pojavljivanju sličnih
Prikaz stana na mapi
Parkovi u blizini
- Park heroja NOB-a10 min
- Park Čair25 min
- Park složnih komšija30 min

Obeležja kulture u blizini
- Zgrada starog načelstva10 min
- Spomenik Stefanu Nemanji6 min
- Spomenik žrtvama NATO bombardovanja6 min

Škole/Fakulteti/Vrtići u blizini
- Osnovna škola (Osnovna škola Vuk Karadžić)7 min
- Srednja škola (Prehrambeno-hemijska škola)8 min
- Vrtić (Predškolska ustanova Dečiji kutak)9 min
- Fakultet (Pravni fakultet za privredu i pravosuđe Univerzitet Privredna akademija)7 min

- Bolnica (Urgentni centar Niš)9 min
- Klinika (Poliklinika Life Impuls)7 min
- Teretana (Fittess & Wellness Top Form)6 min
- Prodavnica (Maxi Supermarket)5 min
- Restoran (Restoran Naiades)5 min
- Kafana (Kafana Tri fenjera)4 min
- Taksi stajalište (Bros Taxi Niš)13 min
- Autobuska stanica4 min
- Banka (Poštanska štedionica)9 min
- Pošta (Pošta Niš 4)3 min
Kontakt oglašivača
Stambeni krediti

- Period otplate od
96 -360 meseca
- NKS 4.75%
EKS 5.74%
Fiksna kamatna stopa
- Bez troškova obrade kredita
stranici kreditnih kalkulatora
Keš krediti
Period otplate
13 meseci