Jednoiposoban stan na prodaju, Matejevački Put, 88.000€, 44m²






































88.000 €
2.000 € / m2
Za ovaj oglas se neko interesovao. Pozovi ranije kako ne bi propustio priliku.
- Stan u zgradi
- Grejanje na toplotnu pumpu
- Luksuzno
- Prostorije: kupatilo, terasa
- Opremljenost: Prazno - internet, centralna klima, ventilacija
- Pogled na: ulicu, dvorište
- Uknjiženo
- Oglas oglašava agencija pod reg. brojem 691
- 1 garažno mesto, garaža u sklopu zgrade
- Javni parking van zone
- 1 lift
- Godina izgradnje: 2026.
- Zgrada poseduje: prilaz za invalide, dvorište, alarm, podrum, ventilacija, video nadzor
- Tip interneta: optički
- Kablovska
- 1 telefonska linija
- Autobuske linije: 2
Opis oglasa
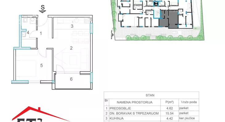
EKSKLUZIVNA PONUDA – Luksuzan jednoiposoban stan 44 m² | Pantelej – ulaz u Čalije
Na prodaju ekskluzivan jednoiposoban stan površine 44 m², u luksuznoj poslovno-stambenoj zgradi vrhunskog kvaliteta, jedinstvenoj u ovom delu grada. Lokacija predstavlja idealan spoj mirnog porodičnog okruženja i odlične povezanosti sa ostatkom grada.
Zgrada je arhitektonski savremena i građena bez kompromisa:
- reprezentativna fasada od dekorativne cigle i alu-bonda
- zajedničko dvorište na krovu zgrade, namenjeno isključivo stanarima
- visok nivo privatnosti i komfora
Stan je projektovan sa maksimalnom iskorišćenošću prostora i opremljen najkvalitetnijim materijalima:
- etažno grejanje i hladjenje, putem toplotnih pumpi i fenkojlera – visoka energetska efikasnost i niski troškovi
- stolarija sa troslojnim staklom i roletnama
- parket i keramika premium klase
- moderno dizajnirano kupatilo sa savremenim sanitarijama
- Lift, podrumska prostorija uz svaki stan, mogućnost kupovine podzemne garaže
Nekretnina idealna kako za kvalitetno stanovanje, tako i kao sigurna investicija (visok potencijal izdavanja i dugoročne vrednosti).
Cena stana 88.000 € sa PDV-om, za sve koji imaju pravo na povracaj PDV-a, isti se vraca 10 % od cene stana.
Zgrada sa urednom dokumentacijom, tako da je moguca kupovina kako za kes, tako i za kredit, useljenje marta 2026 godine.
Za sve informacije stojimo vam na raspolaganju. tel: +38... (prikaži broj telefona) ; 060... (prikaži broj telefona)
Agencija DTS nekretnine je upisana u registru posrednika pod brojem 691
*Sačuvaj oglas uz belešku i primaj obaveštenja o njihovom pojeftinjenju ili pojavljivanju sličnih
Prikaz stana na mapi
Parkovi u blizini
- Park Svetog Save34 min
- Park složnih komšija40 min
- Park heroja NOB-a49 min

Obeležja kulture u blizini
- Ranohrišćanska grobnica10 min
- Ranohrišćanska bazilika12 min
- Ćele kula12 min

Škole/Fakulteti/Vrtići u blizini
- Osnovna škola (Osnovna škola Čegar)11 min
- Srednja škola (Trgovinska škola Niš)9 min
- Vrtić (Dečiji vrtić Mazza)11 min
- Fakultet (Univerzitet u Nišu Medicinski fakultet)13 min

- Bolnica (Bolnica Đorić)5 min
- Klinika (Poliklinika Bocokić)5 min
- Teretana (Fitness centar TNT Gym)7 min
- Prodavnica (Dragstor Mala oaza)manje od 1 min
- Restoran (Restoran Lion)2 min
- Kafana (Kafana Stari ambar)22 min
- Taksi stajalište (Duga taksi)36 min
- Autobuska stanica (Matejevački put - kružna raskrsnica)2 min
- Banka (Poštanska štedionica)4 min
- Pošta (Pošta Niš 3)6 min
Kontakt oglašivača

Za ovaj oglas se neko interesovao. Pozovi ranije kako ne bi propustio priliku.
Krediti OTP banke
Saznaj više
Prikazana rata odnosi se na maksimalni period otplate. Kalkulator je informativnog karaktera.
* Nakon isteka 5 godina, prelazi se na varijabilnu kamatnu stopu

