Jednoiposoban stan na prodaju, Čalije, 99.320€, 51m²








99.320 €
1.947 € / m2
- Etažno grejanje
- Novo
- Prostorije: kupatilo, terasa
- Oglas oglašava agencija pod reg. brojem 940
- 1 lift
- 1 telefonska linija
Opis oglasa
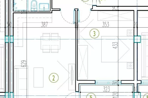
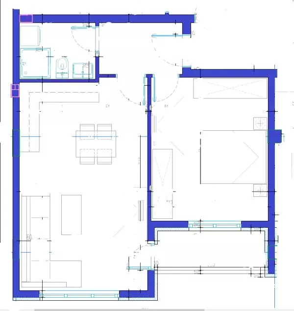
U ponudi je odličan stambeni objekat koji se nalazi na dobroj lokaciji u Čalijama. Objekat je spratnosti Po+P+5, gradi se od visokokvalitetnih materijala, po svim evropskim standardima i u skladu sa savremenim načinom života. Dostupan je jednoiposoban stan površine 50,93m2, na III spratu, zgrada poseduje lift. Komfornost, udobnost i funkcionalnost su glavne odlike stana koji se sastoji od ulaznog hodnika, dnevnog boravka sa trpezarijom, kuhinje, spavaće sobe, kupatila i terase. Orijentisan je ka jugu. U stanu će biti postavljen parket I klase, kvalitetna PVC stolarija, keramika i sanitarija renomiranih proizvođača, grejanje će biti preko konvertora i inverter klime. Objekat je smešten na lepoj lokaciji, u blizini su dve osnovne škole, vrtić, ambulanta Doma zdravlja Niš, nekoliko banaka, marketi, pa je ovo odlična investicija kako za Vaš kvalitetan porodičan život, tako i za kasnije rentiranje. U U cenu je uključen PDV i kupci prvog stana imaju pravo na povraćaj PDV-a u iznosu od 10%.Hvala Vam što ste pogledali oglas. Za više informacija o ovoj ili drugim nekretninama i zakazivanje razgledanja kontaktirajte agenta na broj telefona iz oglasa (poziv, sms, viber) ili putem e-maila. Kompletnu ponudu dostupnih nekretnina možete pronaći na našem sajtu. Agencija Proagent nekretnine je upisana u Registru posrednika pod brojem: 940.
*Sačuvaj oglas uz belešku i primaj obaveštenja o njihovom pojeftinjenju ili pojavljivanju sličnih
Prikaz stana na mapi
Parkovi u blizini
- Park Svetog Save40 min
- Park složnih komšija46 min

Obeležja kulture u blizini
- Spomenik borcima na Čegru9 min
- Ranohrišćanska grobnica10 min
- Ranohrišćanska bazilika11 min

Škole/Fakulteti/Vrtići u blizini
- Osnovna škola (Osnovna škola Miroslav Antić)7 min
- Srednja škola (Trgovinska škola Niš)10 min
- Vrtić (Dečiji vrtić Mazza)5 min
- Fakultet (Fakultet za pravne i poslovne studije Dr Lazar Vrkatić)13 min

- Bolnica (Bolnica Đorić)4 min
- Klinika (Poliklinika Bocokić)5 min
- Teretana (Fitness centar TNT Gym)6 min
- Prodavnica (Market Stošić)2 min
- Restoran (Restoran Todor)3 min
- Kafana (Kafana Stari ambar)30 min
- Taksi stajalište (Duga taksi)43 min
- Autobuska stanica (Čalije)4 min
- Banka (Poštanska štedionica)7 min
- Pošta (Pošta Niš 3)9 min
Kontakt oglašivača
Krediti OTP banke
Saznaj više
Prikazana rata odnosi se na maksimalni period otplate. Kalkulator je informativnog karaktera.
* Nakon isteka 5 godina, prelazi se na varijabilnu kamatnu stopu


