Trosoban stan na prodaju, Bulevar Oslobođenja, 174.500€, 64m²
Bulevar Oslobođenja, Gradske lokacije, Novi Sad
Prikaži mapuŠifra oglasa: 4zida-1017Oglas ažuriran: 07.04.2026.


































174.500 €
2.727 € / m2
64 m²
3 sobe
12/14 spratova
- Stan u zgradi
- Oglas oglašava agencija pod reg. brojem 1594
Opis oglasa
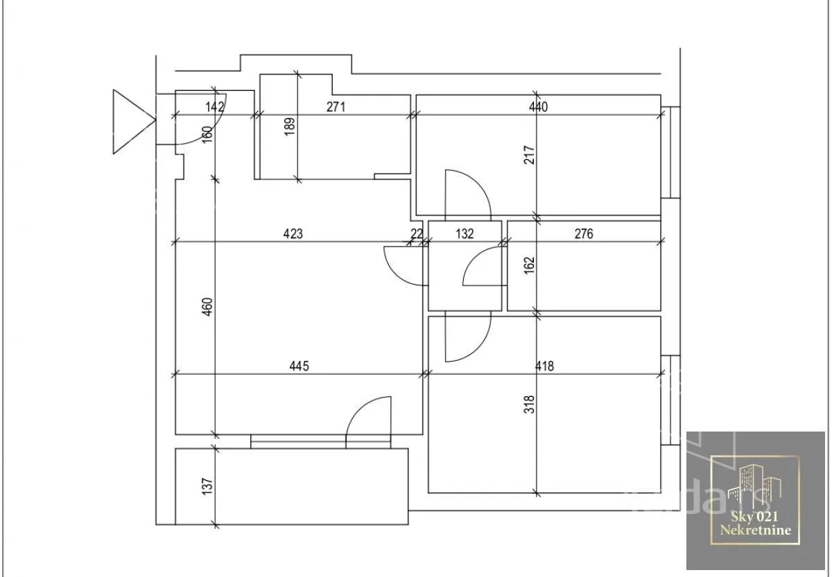
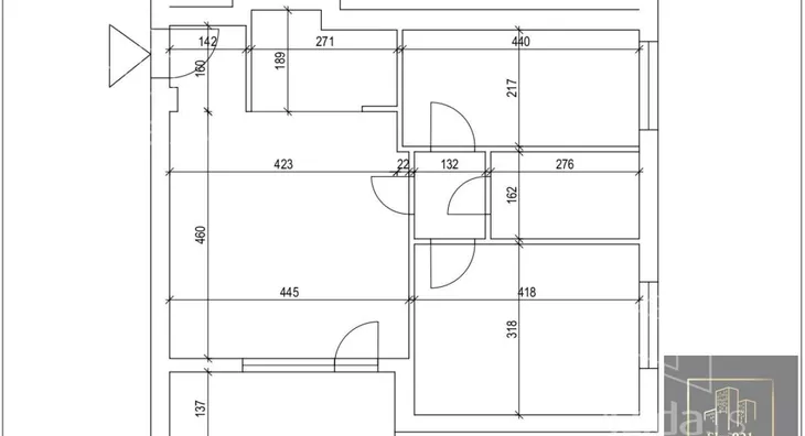
Na prodaju prostran i svetao trosoban stan na Bulevaru Oslobođenja, kompletno renoviran i spreman za useljenje, smešten na 12. spratu zgrade od 14 spratova koja poseduje dva lifta.
Kompletno renoviran:
- Hrastov parket prve klase, hoblovan i lakiran polumat sjajem
- Nova granitna keramika u kuhinji, kupatilu i na terasi
- PVC stolarija i nova sigurnosna ulazna vrata
- Zamenjene sve instalacije (vodovodne, kanalizacione i električne)
- Novo kupatilo sa modernim sanitarijama i keramikom
Raspored prostorija:
Iz ulaznog hodnika se ulazi u prostran dnevni boravak sa kuhinjom i trpezarijom koji ima izlaz na terasu sa spektakularnim pogledom na ceo grad. Iz dnevnog dela vodi mali hodnik koji povezuje dve komforne spavaće sobe i kupatilo.
Zgrada ima dva ulaza – jedan sa ulice i jedan sa strane dvorišta gde se nalazi prostran parking prostor za stanare.
Lokacija je odlična – u neposrednoj blizini su Promenada, škole, vrtići, prodavnice i gradski prevoz...
U cenu je uračunata agencijska provizija.
Za više informacija, pozovite!
REG. BR. Posrednika : 1594
Sky 021 Nekretnine
060... (prikaži broj telefona)
061... (prikaži broj telefona) ID:1017
*Sačuvaj oglas uz belešku i primaj obaveštenja o njihovom pojeftinjenju ili pojavljivanju sličnih
Prikaz stana na mapi
Parkovi u blizini
- Futoški park11 min
- Dunavski park22 min
- Železnički park23 min

Obeležja kulture u blizini
- Jodna Banja4 min
- Dvorac Eđšeg8 min
- Matičarsko zdanje9 min

Škole/Fakulteti/Vrtići u blizini
- Osnovna škola (Osnovna škola Petefi Šandor)9 min
- Srednja škola (Škola za osnovno i srednje obrazovanje Milan Petrović)8 min
- Vrtić (Dečiji vrtić Happy Place)10 min
- Fakultet (Fakultet za pravne i poslovne studije Dr Lazar Vrkatić)6 min

Zdravlje
- Bolnica (Ginekološka bolnica Genesis)8 min
- Klinika (Poliklinika GOG)5 min
- Teretana (Fitness studio Power Fit)5 min
Hrana i piće
- Prodavnica (Voće i povrće Pinćir BIO)3 min
- Restoran (Kafe & restoran Grič)4 min
- Kafana (Pab Pow Wow)10 min
Prevoz
- Taksi stajalište (Zeleni Eko Taxi)8 min
- Autobuska stanica (Novosadskog sajma - Bulevar oslobođenja)6 min
Ostale ustanove
- Banka (AIK Banka)4 min
- Pošta (Pošta Novi Sad 21117)7 min
Kontakt oglašivača
Svi oglasi - Sky 021 nekretnineSky 021 Nekretnine

▾Reklama▾
Krediti OTP banke
Bez troškova obrade kredita
NKS 4.50% - EKS 5.74%
Period otplate 96 -360 meseca
Saznaj više
Prikazana rata odnosi se na maksimalni period otplate. Kalkulator je informativnog karaktera.
* Nakon isteka 5 godina, prelazi se na varijabilnu kamatnu stopu
Osiguranje domaćinstva online
Osiguraj svoje domaćinstvo u slučaju požara...

