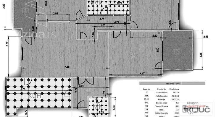
Četvorosoban stan na prodaju, Bulevar Oslobođenja, 295.600€, 125m²


















295.600 €
2.365 € / m2
- Stan u zgradi
- Centralno grejanje
- Prostorije: terasa
- Opremljenost: Prazno - internet, interfon, klima
- Uknjiženo
- Oglas oglašava agencija pod reg. brojem 360
- 1 lift
- Godina izgradnje: 2000.
- Kablovska
- 1 telefonska linija
Opis oglasa
Prodaje se 4 soban stan u NOVOM SADU, BULEVAR površine 125m2. Retko u ponudi. Prilika. Izuzetno fukcionalan i iskorišten. Stan se nalazi na jednoj od najatraktivnij lokacija u gradu nadomak svih sadržaja potrebnih za život. Škola, vrtić, pijaca, marketi samo su neki od potrebnih. Svi ostali sadržaji dustupni. MIrna ulica u blizini Futoške pijace. Stan je odlično povezan glavnim saobraćajnicama kao i sa ostalim delovima grada. Mogučnost kupovine putem stambenof kredita. Zavređuje pažnju. ne propustite ovu jedinstvenu priliku. Pozovite da pogledate.
*Sačuvaj oglas uz belešku i primaj obaveštenja o njihovom pojeftinjenju ili pojavljivanju sličnih
Prikaz stana na mapi
Parkovi u blizini
- Futoški park11 min
- Železnički park24 min
- Dunavski park25 min

Obeležja kulture u blizini
- Jodna Banja4 min
- Dvorac Eđšeg8 min
- Matičarsko zdanje8 min

Škole/Fakulteti/Vrtići u blizini
- Osnovna škola (Osnovna škola Petefi Šandor)9 min
- Srednja škola (Škola za osnovno i srednje obrazovanje Milan Petrović)7 min
- Vrtić (Dečiji vrtić Happy Place)10 min
- Fakultet (Fakultet za pravne i poslovne studije Dr Lazar Vrkatić)5 min

- Bolnica (Ginekološka bolnica Genesis)8 min
- Klinika (Poliklinika GOG)5 min
- Teretana (X Sport Gym)4 min
- Prodavnica (Voće i povrće Pinćir BIO)3 min
- Restoran (Restoran SDK)4 min
- Kafana (Pab Pow Wow)11 min
- Taksi stajalište (Zeleni Eko Taxi)9 min
- Autobuska stanica (Novosadskog sajma - Bulevar oslobođenja)7 min
- Banka (AIK Banka)4 min
- Pošta (Pošta Novi Sad 21117)8 min
Kontakt oglašivača
Krediti OTP banke
Saznaj više
Prikazana rata odnosi se na maksimalni period otplate. Kalkulator je informativnog karaktera.
* Nakon isteka 5 godina, prelazi se na varijabilnu kamatnu stopu


