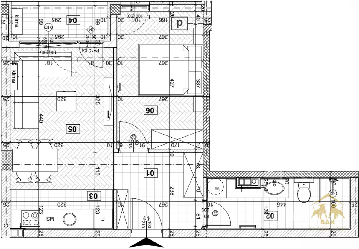
Dvosoban stan na prodaju, Bulevar Evrope, 129.850€, 44m²








129.850 €
2.951 € / m2
- Stan u zgradi
- Grejanje na gas
- Novo
- Prostorije: terasa
- Oglas oglašava agencija pod reg. brojem 1808
- 1 lift
Opis oglasa
Na Bulevaru Evrope, u atraktivnom i traženom delu grada, nalazi se odmah useljiv dvosoban stan površine 44 m², pri čemu je cena stana sa uključenim PDV-om. Stan je smešten u tihoj i uređenoj ulici koja pruža savršen balans mira i odlične povezanosti sa ostatkom grada. Lokacija nudi izuzetnu praktičnost za svakodnevni život. U neposrednoj blizini nalaze se prodavnice, škole, vrtići, gradski prevoz i glavne saobraćajnice, što ovu nekretninu čini idealnom kako za stanovanje, tako i za ulaganje. Stan se nalazi u savremenoj stambenoj zgradi sa liftom i ne zahteva dodatna ulaganja. Raspored je maksimalno iskorišćen i funkcionalan, a sastoji se od dnevnog boravka sa kuhinjom, odvojene spavaće sobe, kupatila, hodnika i terase. Prostor odiše svetlošću i prijatnom atmosferom, uz moderan enterijer i kvalitetne završne materijale. Grejanje je centralno na gas sa ugrađenim kalorimetrima, što omogućava preciznu kontrolu potrošnje i niže mesečne troškove. Stan je u potpunosti završen i spreman za trenutno useljenje. Uz doplatu postoji mogućnost kupovine parking ili garažnog mesta, što predstavlja značajnu pogodnost na ovoj lokaciji. Ova nekretnina je idealna kako za samce ili parove, tako i kao sigurna i dugoročno isplativa investicija za izdavanje.
Za više informacija kao i za razgledanje stana slobodno nas kontaktirajte.
Kontakt telefoni:
065... (prikaži broj telefona)
,
060... (prikaži broj telefona)
,
065... (prikaži broj telefona)
BAK Nekretnine
*Sačuvaj oglas uz belešku i primaj obaveštenja o njihovom pojeftinjenju ili pojavljivanju sličnih
Prikaz stana na mapi
Parkovi u blizini
- Park Bistrica28 min
- Futoški park33 min
- Limanski park36 min

Obeležja kulture u blizini
- Jodna Banja12 min
- Dvorac Eđšeg13 min
- Kuća iz 1797. godine18 min

Škole/Fakulteti/Vrtići u blizini
- Osnovna škola (Osnovna škola Jožef Atila)11 min
- Srednja škola (Gimnazija Laza Kostić)5 min
- Vrtić (Dečiji vrtić Zemlja čuda)6 min
- Fakultet (Protestantski teološki fakultet)7 min

- Bolnica (Ginekološka bolnica Ferona)2 min
- Klinika (Poliklinika Consilium)12 min
- Teretana (EMS Studio Maxifit)5 min
- Prodavnica (Supermarket Univerexport)6 min
- Restoran (Caffe restoran Rosetto)7 min
- Kafana (Atos pub)5 min
- Taksi stajalište (Taxi prevoz Novi Sad)20 min
- Autobuska stanica (Feješ Klare - Pravoslavna crkva)3 min
- Banka (Erste Bank Ekspres ekspozitura)6 min
- Pošta (Pošta Novi Sad 21124)7 min
Kontakt oglašivača
Krediti OTP banke
Saznaj više
Prikazana rata odnosi se na maksimalni period otplate. Kalkulator je informativnog karaktera.
* Nakon isteka 5 godina, prelazi se na varijabilnu kamatnu stopu






















