Jednosoban stan na prodaju, Zaplanjska, 123.990€, 37m²






































123.990 €
3.351 € / m2
- Stan u zgradi
- Grejanje na TA peć
- Renovirano
- Uknjiženo
- Oglas oglašava agencija pod reg. brojem 1984
- Zgrada poseduje: podrum
Opis oglasa
U ponudi imamo kompletno namešten, renoviran (zamenjene elektro i vodovodne instalacije, nova pvc stolarija, hrastov parket i kupatilo) stan na odličnoj lokaciji u blizini TC Stadion, marketa, pijace, Osnovne škole, Autoputa i ostalih komercijalnih sadržaja.
Stan poseduje ugrađenu kaljevu peć sa ugrađenim električnim grejačem, tajmerom i mogućnost upravljanja putem mob. telefona.
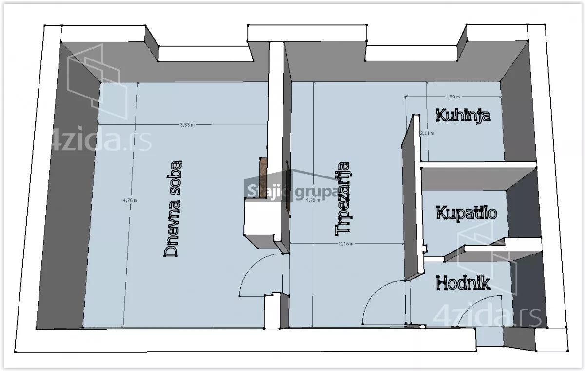
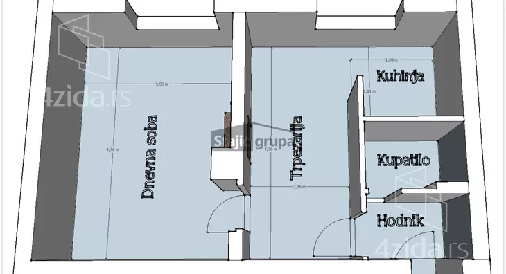
Prostorije: hodnik, dnevni boravak, kuhinja, trpezarija, kupatilo i podrum.
Agencijska provizija 2%
*Sačuvaj oglas uz belešku i primaj obaveštenja o njihovom pojeftinjenju ili pojavljivanju sličnih
Prikaz stana na mapi
Parkovi u blizini
- Park Jove Ilića16 min
- Banjička šuma19 min
- Bajronov park27 min

Obeležja kulture u blizini
- Spomenik Franše Depereu12 min
- Kuća Flašar14 min
- Spomenik heroju Milanu Tepiću15 min

Škole/Fakulteti/Vrtići u blizini
- Osnovna škola (Osnovna škola Đura Daničić)9 min
- Srednja škola (Srednja škola Vasa Stajić)9 min
- Vrtić (Dečiji vrtić Zvončica)8 min
- Fakultet (Univerzitet u Beogradu Saobraćajni fakultet)7 min

- Bolnica (Opšta bolnica St Medica)5 min
- Klinika (Poliklinika Voždmedik)6 min
- Teretana (Maximum Effect Fitness & Gym)7 min
- Prodavnica (Maxi Supermarket)6 min
- Restoran (Restoran Intermeco)5 min
- Kafana (Pinta Pub)7 min
- Taksi stajalište (Taxi stanica)3 min
- Autobuska stanica (Meštrovićeva)3 min
- Tramvajska stanica (Nikšićka)14 min
- Trolejbuska stanica (Svetozara Radojčića)21 min
- Banka (Banca Intesa)4 min
- Pošta (Pošta Beograd 48)8 min
Kontakt oglašivača
Krediti OTP banke
Saznaj više
Prikazana rata odnosi se na maksimalni period otplate. Kalkulator je informativnog karaktera.
* Nakon isteka 5 godina, prelazi se na varijabilnu kamatnu stopu


