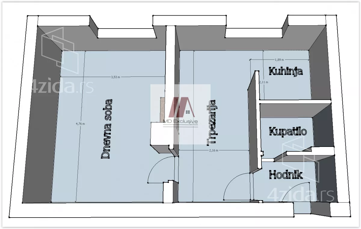
Jednoiposoban stan na prodaju, Zaplanjska, 125.000€, 37m²






















125.000 €
3.378 € / m2
- Stan u zgradi
- Prostorije: kuhinja
- Opremljenost: Namešteno - internet, interfon, TV, klima, veš mašina, sudo mašina, frižider, rerna, ležaj, plakar
- Uknjiženo
- Oglas oglašava agencija
- Zgrada poseduje: podrum
- Kablovska
- 1 telefonska linija
Opis oglasa
U ponudi je funkcionalan i odlično organizovan jednosoban stan površine 37 m². Nekretnina je renovirana pre 4 godine, pri čemu su zamenjene sve instalacije (struja i voda), ugrađena nova PVC stolarija, dok podove krasi kvalitetan hrastov parket. Kupatilo je uredno i u veoma dobrom stanju.
Stan se prodaje potpuno namešten, sa kuhinjom i nameštajem rađenim po meri, kao i kompletnom belom tehnikom: klima uređaj, frižider, ugradna rerna, veš mašina, ugradna sudomašina, aspirator i mikrotalasna. Nekretnina je spremna za useljenje bez dodatnih ulaganja.
Posebnu vrednost daje autentična kaljeva peć sa ugrađenim električnim grejačima, pozicionirana tako da efikasno zagreva ceo stan. Sistem je unapređen tajmerom i mogućnošću upravljanja putem mobilnog telefona, što omogućava optimalnu potrošnju energije i visok nivo komfora.
Agencijska prozivija 2%.
A well-organized and functional 1-bedroom apartment of 37 m² is available for sale. The property was fully renovated 4 years ago, including complete replacement of electrical and plumbing installations, new PVC windows, and high-quality oak parquet flooring. The bathroom is well-maintained and in very good condition.
The apartment is sold fully furnished, featuring a custom-made kitchen and built-in furniture, along with all appliances included: air conditioning unit, refrigerator, built-in oven, washing machine, built-in dishwasher, extractor hood, and microwave. It is ready for immediate occupancy with no additional investment required.
A special feature of the apartment is an authentic ceramic tile stove with integrated electric heaters, positioned to efficiently heat the entire space. The system is further enhanced with a timer and mobile control option, ensuring optimal energy consumption and a high level of comfort.
Additionally, the apartment comes with a basement storage unit.
For more information call.
Agency commission 2%.
*Sačuvaj oglas uz belešku i primaj obaveštenja o njihovom pojeftinjenju ili pojavljivanju sličnih
Prikaz stana na mapi
Parkovi u blizini
- Park Jove Ilića16 min
- Banjička šuma19 min
- Bajronov park27 min

Obeležja kulture u blizini
- Spomenik Franše Depereu12 min
- Kuća Flašar14 min
- Spomenik heroju Milanu Tepiću15 min

Škole/Fakulteti/Vrtići u blizini
- Osnovna škola (Osnovna škola Đura Daničić)9 min
- Srednja škola (Srednja škola Vasa Stajić)9 min
- Vrtić (Dečiji vrtić Zvončica)8 min
- Fakultet (Univerzitet u Beogradu Saobraćajni fakultet)7 min

- Bolnica (Opšta bolnica St Medica)5 min
- Klinika (Poliklinika Voždmedik)6 min
- Teretana (Maximum Effect Fitness & Gym)7 min
- Prodavnica (Maxi Supermarket)6 min
- Restoran (Restoran Intermeco)5 min
- Kafana (Pinta Pub)7 min
- Taksi stajalište (Taxi stanica)3 min
- Autobuska stanica (Meštrovićeva)3 min
- Tramvajska stanica (Nikšićka)14 min
- Trolejbuska stanica (Svetozara Radojčića)21 min
- Banka (Banca Intesa)4 min
- Pošta (Pošta Beograd 48)8 min
Kontakt oglašivača
Krediti OTP banke
Saznaj više
Prikazana rata odnosi se na maksimalni period otplate. Kalkulator je informativnog karaktera.
* Nakon isteka 5 godina, prelazi se na varijabilnu kamatnu stopu


