Šestosoban stan na prodaju, Draže Pavlovića, 560.000€, 249m²




560.000 €
2.249 € / m2
- Uobičajeno stanje
- Prostorije: kupatila (2), toalet, terasa
- Opremljenost: interfon, klima
- Uknjiženo
- Oglas oglašava agencija pod reg. brojem 591
- Zgrada poseduje: lođa
Opis oglasa
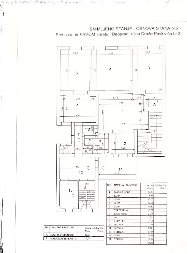
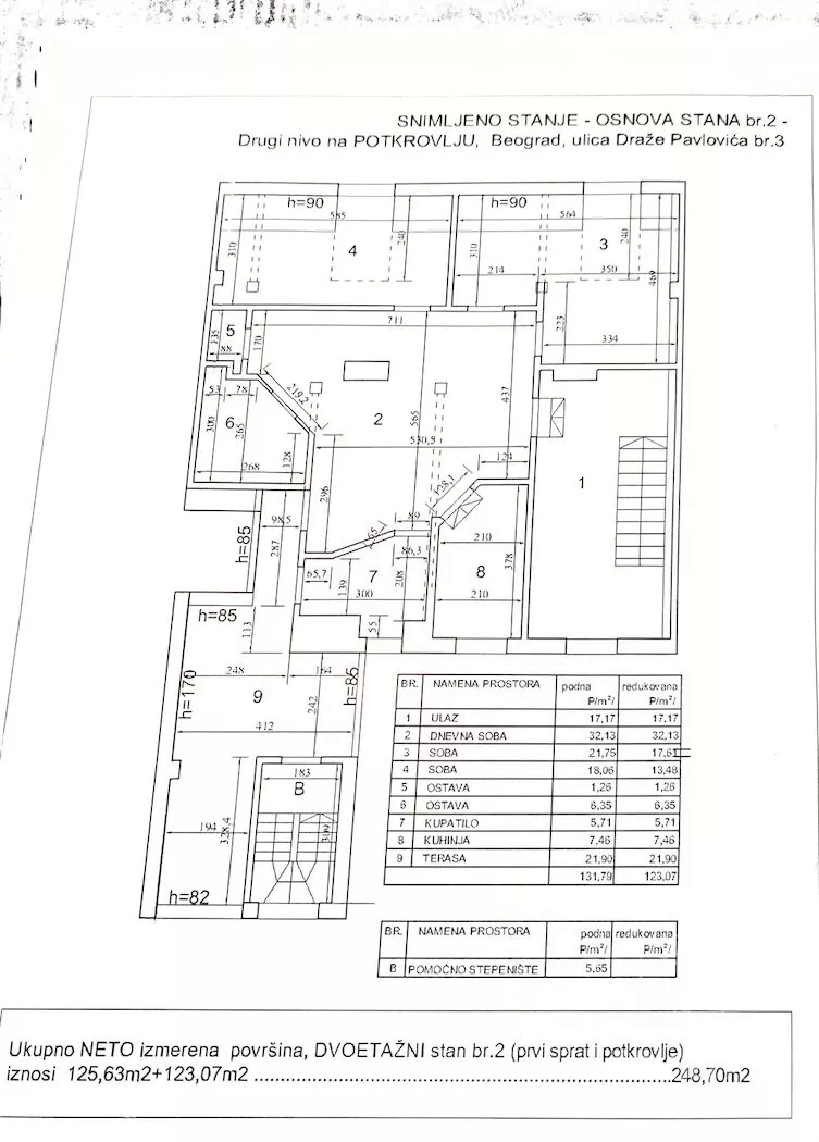
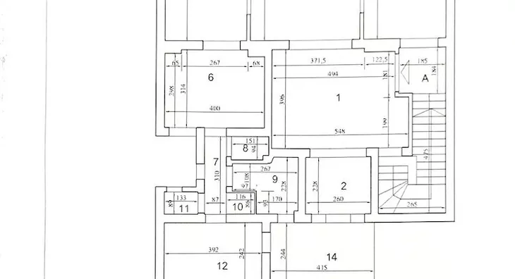
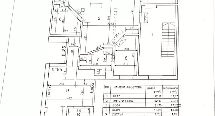
Izuzetna lokacija za poslovno - stambeni prostor, preko puta Botaničke bašte. Uknjižen, dvoetažni salonac, sa dva ulaza, raskošne arhitekture sa dve terase u predratnoj zgradi sa ukupno dva stana.
Stan se nalazi u izvornom stanju i zahteva kompletno renoviranje.
Površina stana donjeg nivoa (prvi sprat) je 126 m2, dok je površina gornjeg nivoa (potkrovlje) 123 m2.
Upisana kvadratura je 177 m2 (po ranije važećim standarima za kvadraturu potkrovlja).
Zgrada ima svoje dvorište, tako da stan omogućava nivo kvaliteta života u kući. Idealan za veliku porodicu, kao i za komercijalne namene: poslovni prostor, hostel, advokatsku kancelariju, zubarsku ordinaciju.
Agencijska provizija je 2%
Šta podrazumeva agencijska provizija od 2%:
Agencija, zajedno sa agentom, je tu za Vas vezano za:
- razgledanje nepokretnosti na terenu,
- vođenje celokupnog kupoprodajnog procesa,
- prikupljanje i proveru dokumentacije,
- izradu Predugovora ili Ugovora o kupoprodaji,
- pružanje pomoći u pregovorima,
- zakazivanje overe ugovora i odlazak u pratnji agenta kod notara,
- asistiranje za porez na apsolutna prava i eventualno oslobađanje od istog,
- organizovanje primopredaje i svega ostalog što podrazumeva Zakon o posredovanju u prometu i zakupu nepokretnosti.
Agencija i agent koji Vam je dodeljen su od prvog dana saradnje, do konačno završenog posla, Vaša pomoć i podrška.
*Sačuvaj oglas uz belešku i primaj obaveštenja o njihovom pojeftinjenju ili pojavljivanju sličnih
Prikaz stana na mapi
Parkovi u blizini
- Park Hadžipopovac5 min
- Park Starine Novaka5 min
- Park Mali Tašmajdan12 min

Obeležja kulture u blizini
- Kuća Nevene Zaborski4 min
- Kuća Milutina Milankovića5 min
- Spomenik Raši Popovu6 min

Škole/Fakulteti/Vrtići u blizini
- Osnovna škola (Osnovna škola Vuk Karadžić)6 min
- Srednja škola (Elektrotehnička škola Rade Končar)4 min
- Vrtić (Dečiji vrtić Pionir)3 min
- Fakultet (Univerzitet u Beogradu Rudarsko-geološki fakultet)5 min

- Bolnica (Oftalmološka bolnica Revida)9 min
- Klinika (Poliklinika Argirović)4 min
- Teretana (Fitness studio Just Fit)6 min
- Prodavnica (City market)2 min
- Restoran (Restoran Diktator)3 min
- Kafana (Pivnica Realist)4 min
- Taksi stajalište (Taxi stanica)5 min
- Autobuska stanica (Cvijićeva)5 min
- Tramvajska stanica (Palilulska Pijaca)6 min
- Trolejbuska stanica (Jaše Prodanovića)3 min
- Banka (Adriatic bank)3 min
- Pošta (Pošta Beograd 28)10 min
Kontakt oglašivača
Stambeni krediti

- Period otplate od
96 -360 meseca
- NKS 4.75%
EKS 5.74%
Fiksna kamatna stopa
- Bez troškova obrade kredita
stranici kreditnih kalkulatora
Keš krediti
Period otplate
13 meseci