Jednoiposoban stan na prodaju, Kikindska, 118.800€, 45m²
OBIĐI 3D TURU

























118.800 €
2.640 € / m2
- Etažno grejanje
- Novo
- Prostorije: kupatilo, terasa
- Opremljenost: Prazno - internet, interfon, klima
- Uknjiženo
- Oglas oglašava agencija pod reg. brojem 339
- 1 parking mesto
- 1 telefonska linija
Opis oglasa
Prodaje se stan u novogradnji površine 45m2 na drugom spratu zgrade u naselju Borča u Kikindskoj ulici na nekoliko stotina metara od autobuskih stajališta za sve delove grada, šoping centra, nekoliko trgovinskih lanaca, a u blizini se nalaze i vrtić i osnovna škola.
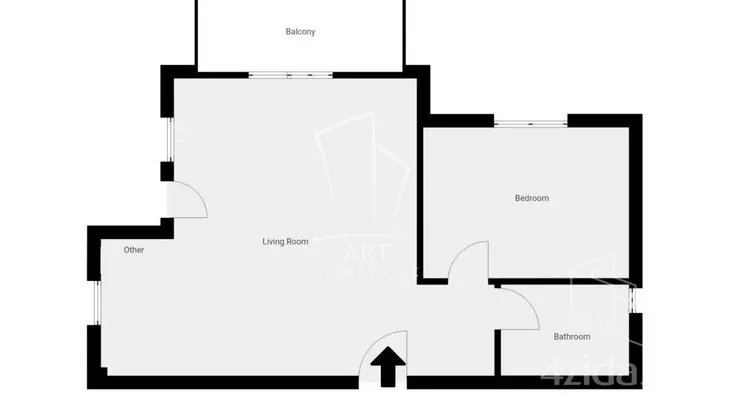
Stan se sastoji od ulazne zone, dnevnog boravka, kuhinje sa trpezarijom, spavaće sobe, kupatila i terase.
Zgrada je odlično izolovana klima blok "Zorka" + stiropor "Austroterm" 15 -20 cm, dodatna izolacija od knauf eko-vune debljine od 5-10 cm i to na zidovima unutar hodnika objekta, kao i na na plafonima u stanovima.
Objekat sa sertifikatom energetske efikasnosti, energetski pasoš "C" razred.
Hrastov parket od punog drveta velikih dimenzija.
Ulazna vrata visokog kvaliteta, visine 220 cm, masivna blindirana sa oblogama od medijapana sa 12 tačaka zaključavanja.
Unutrasnja vrata su izradjena od medijapana, visine 220 cm
Vrlo kvalitetna 7-to komorna SCHUCO PVC stolarija sa aluminiskim termoizolovanim roletnama, staklo je troslojnog tipa, niskoemisiono i punjeno argonom.
Kvalitetna španska i italijanska keramika, kupatila opremljena sa najkvalitetnijim sanitarijama.
Na objektu je postavljen video nadzor koji je moguće pratiti putem mobilnog telefona.
Grejanje je etažnog tipa, postoji mogucnost daljinske kontrole grejanja.
Na ovu cenu nije uračunat PDV koji se plaća, kupcima kojima je to prva nekretnina imaju pravo na povraćaj PDV (10%).
Postoje svi uslovi za udoban i miran život.
Povraćaj pdv-a za kupce prve nekretnine.
Agencijska provizija 2%.
Agent: Lazar Vlahović br. licence: 2772
"Art nekretnine" d.o.o. Beograd.
Reg. br. 339
011... (prikaži broj telefona)
LV
.
*Sačuvaj oglas uz belešku i primaj obaveštenja o njihovom pojeftinjenju ili pojavljivanju sličnih
Prikaz stana na mapi
Obeležja kulture u blizini
- Livnica Pantelić29 min
- Kuća porodice Karamata29 min
- Kula Sibinjanin Janka Gardoš29 min

Škole/Fakulteti/Vrtići u blizini
- Osnovna škola (Osnovna škola Rade Drainac)7 min
- Srednja škola (Poljoprivredna škola PK Beograd)20 min
- Vrtić (Dečiji vrtić Pliša)6 min
- Fakultet (Kriminalističko policijski univerzitet)20 min

- Bolnica (Klinika za neuropsihijatrijske bolesti Dr Laza Lazarević)15 min
- Klinika (Poliklinika O2)26 min
- Teretana (Teretana Ole)7 min
- Prodavnica (Soulfood market)3 min
- Restoran (Restoran Mlado jagnje)11 min
- Kafana (Pab Beernica)25 min
- Taksi stajalište (Taxi stanica)28 min
- Autobuska stanica (Bratstva i jedinstva)11 min
- Banka (OTP banka)5 min
- Pošta (Pošta 11216 Borča 3)5 min
Kontakt oglašivača
Krediti OTP banke
Saznaj više
Prikazana rata odnosi se na maksimalni period otplate. Kalkulator je informativnog karaktera.
* Nakon isteka 5 godina, prelazi se na varijabilnu kamatnu stopu





















