Dvoiposoban stan na prodaju, Blok 9a, 650€, 58m²






























- Stan u zgradi
- Centralno grejanje
- Renovirano
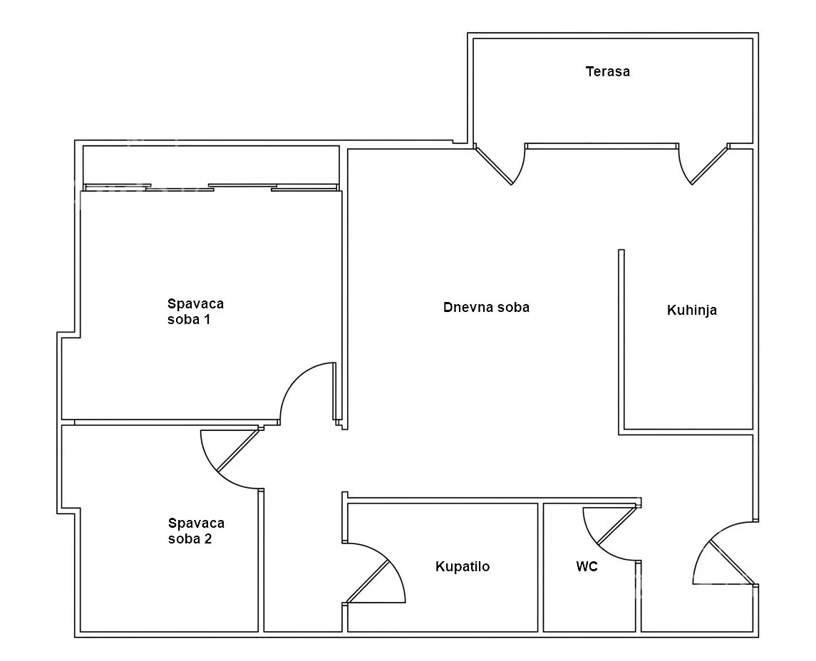
- Prostorije: kupatilo, toalet, terasa
- Opremljenost: Namešteno - internet, TV, klima, veš mašina, kuhinjski elementi, sudo mašina, frižider, šporet, rerna, ležaj, plakar, ugradni plakar
- Orijentacija ka: istok, sever
- Pogled na: dvorište
- Uknjiženo
- Kupovina direktno od vlasnika
- Javni parking van zone
- Godina izgradnje: 2000.
- Zgrada poseduje: video nadzor
- Tip interneta: optički
- Autobuske linije: 83, 17, 45, 73, 81, 82, 85, 88, 610, 611, 15, 84, 706
Opis oglasa
Izdaje se prostran i funkcionalan stan u ulici Palmira Toljatija na Novom Beogradu (blok 9a) direktno od vlasnika (bez agencijske provizije), namešten i odmah useljiv, na duži vremenski period i sa depozitom u visini jedne mesečne zakupnine (650 eura).
Dozvoljeni kućni ljubimci.
Stan je površine 58 m2, održavan, dvostrano orijentisan (sever-istok) i nalazi se na 5 spratu od ukupno 6 spratova (nije na poslednjem spratu i nema lift) u urednoj i vojnoj zgradi kvalitetne gradnje sa video nadzorom.
Raspored: ulazni hodnik, dnevni boravak, kuhinja sa trpezarijom, toalet, i potpuno odvojen spavaći blok (hodnik, velika spavaća soba, manja spavaća soba i kupatilo sa kadom). Iz dnevne sobe i kuhinje se izlazi na terasu koja je istočno orijentisana. Spavaće sobe su orijentisane severno. Grejanje je centralno, stolarija je pvc, na podu je hrastov parket i ima: sigurnosna ulazna vrata, interfon i klima uređaj.
Izdaje se kompletno namešten (kuhinja sa ugradnom tehnikom, veš mašina, ugradni plakari, ugaona garnitura, krevet, police, klub sto, televizor).
Stan je poslednji put renoviran 2015 godine.
Parking oko zgrade je javan (plava zona) i uvek dostupan.
Mesečni troškovi Infostana su oko 7200 dinara (martovski racun).
Za internet/kablovsku su u zgradi dostupni svi operateri.
Stan se nalazi na odličnoj i mirnoj lokaciji koja nudi savršenu povezanost sa svim delovima grada i neophodnom infrastrukturom za porodičan život sa puno zelenila i puno dečijih igrališta. U neposrednoj blizini nalaze se vrtići, škole, Dom zdravlja, pijaca, Stari Merkator, banke, marketi (Maxi, Idea), pošta i td. Odlična veza sa svim delovima grada (autobuska stajališta na par minuta), a Dunavski kej je na svega 600m udaljenosti.
Razgledanje stana je moguće svakog dana uz prethodni dogovor i najavu.
*Sačuvaj oglas uz belešku i primaj obaveštenja o njihovom pojeftinjenju ili pojavljivanju sličnih
Prikaz stana na mapi
Parkovi u blizini
- Gradski park12 min
- Park Kalvarija20 min
- Park Jelovac25 min

Obeležja kulture u blizini
- Spomenik palim u narodnoj revoluciji 1941/454 min
- Kuća Dimitrija Davidovića13 min
- Kuća sa sunčanim satom16 min

Škole/Fakulteti/Vrtići u blizini
- Osnovna škola (Osnovna škola Marko Orešković)10 min
- Srednja škola (Ekonomska škola Nada Dimić)9 min
- Vrtić (Dečiji vrtić Mega kids)3 min
- Fakultet (Megatrend Univerzitet Pravni fakultet)7 min

- Bolnica (Bolnica za plastičnu i rekonstruktivnu hirurgiju DE)13 min
- Klinika (Poliklinika Beograd)2 min
- Teretana (Fitness klub Life)2 min
- Prodavnica (Zlatiborsko carstvo - zlatiborski proizvodi)2 min
- Restoran (Restoran Stara srpska kuća)1 min
- Kafana (Maders bistro)6 min
- Taksi stajalište (Taxi stanica)6 min
- Autobuska stanica (Džona Kenedija)4 min
- Tramvajska stanica (Blok 21)39 min
- Banka (Adriatic bank)4 min
- Pošta (Pošta Beograd 126)4 min
Kontakt oglašivača

Krediti OTP banke
Saznaj više
Prikazana rata odnosi se na maksimalni period otplate. Kalkulator je informativnog karaktera.
* Nakon isteka 5 godina, prelazi se na varijabilnu kamatnu stopu

