Četvorosoban stan na prodaju, Jurija Gagarina, 195.000€, 110m²




































195.000 €
1.773 € / m2
- Stan u zgradi
- Centralno grejanje
- Potrebno renoviranje
- Prostorije: kupatilo, kuhinja, terasa
- Uknjiženo
- Oglas oglašava agencija pod reg. brojem 741
- 2 lifta
- Zgrada poseduje: lođa
Opis oglasa
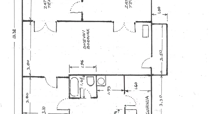
U odlično održavanoj zgradi sa dva lifta (od kojih je jedan teretni), sa videonadzorom i centralnim grejanjem, na 18. spratu (od 20) prodajemo četvorosoban stan ukupne površine 110 m2 (uknjižen na 83m2, površinu bez velike terase). Sastoji se od dnevnog boravka, 3 spavaće sobe, kupatila, kuhinje, trpezarije, manje lođe od oko 3m2 i velike zastakljene terase od oko 30m2. Dnevni boravak je povezan sa tom velikom lođom, ali i sa kuhinjom, trpezarijom i manjom lođom. Kupatilo i dve spavaće sobe su na drugoj strani stana. Izuzetno funkcionalan stan dobrog rasporeda, a budući da je za kompletno renoviranje, ostavlja budućem vlasniku mogućnosti da ga opremi prema sopstvenim afinitetima i mogućnostima.
U neposrednoj blizini zgrade su hipermarketi, škola, obdanište, autobuski prevoz.
Stan je uknjižen bez tereta i zabeležbi, na površinu stana koja se zagreva, na 83m3. Cena nekretnine je €195000. Telefon: 063... (prikaži broj telefona)
Registarski broj 741, provizija 2% u dinarskoj protivvrednosti, jednokratno.
(https://www.oznekretnine.com/index.php/property/novi-beograd-jurija-gagarina-blok-62-4.0-110m2.html)
*Sačuvaj oglas uz belešku i primaj obaveštenja o njihovom pojeftinjenju ili pojavljivanju sličnih
Prikaz stana na mapi
Parkovi u blizini
- Park Blok 709 min
- Dečje igralište12 min
- Park Republike Argentine25 min

Obeležja kulture u blizini
- Hangar Starog aerodroma na Novom Beogradu8 min
- Stara osnovna škola9 min
- Česma9 min

Škole/Fakulteti/Vrtići u blizini
- Osnovna škola (Osnovna škola 20. oktobar)6 min
- Srednja škola (Tehnička škola Zmaj)12 min
- Vrtić (Predškolska ustanova Meda 2)9 min
- Fakultet (Visoka škola strukovnih studija za informacione tehnologije ITS)7 min

- Bolnica (Puls kardiološki centar)4 min
- Klinika (Poliklinika Solar Medical Center)7 min
- Teretana (Fitness studio Elit)9 min
- Prodavnica (Market Alfa Star)3 min
- Restoran (Kafana Kafanica 1)4 min
- Kafana (Helga's Pub)9 min
- Taksi stajalište (Taxi stanica)3 min
- Autobuska stanica (Blok 70)2 min
- Tramvajska stanica (Blok 23)39 min
- Banka (Raiffeisen Bank)8 min
- Pošta (Pošta Beograd 53)4 min
Kontakt oglašivača
Stambeni krediti
- Period otplate od
96 -360 meseca
- NKS 4.50%
EKS 5.74%
Fiksna kamatna stopa
- Bez troškova obrade kredita
- Period otplate od
96 -360 meseca
- NKS 4.34%
Kombinovana kamatna stopa
- Bez troškova obrade kredita
- Odobrenje kredita do 48h
stranici kreditnih kalkulatora
Keš krediti
Period otplate
13 meseci
