Petosoban stan na prodaju, Bulevar Mihajla Pupina 10, 800.000€, 187m²


















800.000 €
4.278 € / m2
- Stan u zgradi
- Centralno grejanje
- Luksuzno
- Prostorije: kupatila (3+)
- Opremljenost: Polunamešteno - klima
- Pogled na: dvorište
- Uknjiženo
- Oglas oglašava agencija pod reg. brojem 539
- 2 lifta
- Zgrada poseduje: lođe (2), video nadzor
Opis oglasa
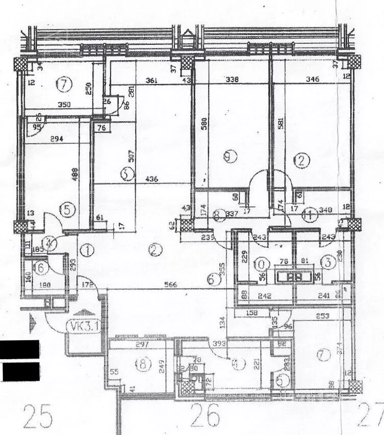
Za prodaju – četvoroiposoban stan 187m2 u jednom nivou, smešten u atraktivnom YU biznis centru (YUBC), a miran i tih, zaštićen od buke.
Prostorije: antre, veliki dnevni boravak na koji se nastavlja trpezarija, a koji izlazi na dve lođe od kojih je jedna zimska (zatvorena); odvojena kuhinja, dve spavaće sobe, radna soba, garderober soba, tri kupatila od kojih su dva sa tuš kabinama, a treće sa kadom.
Stan je kompletno i kvalitetno renoviran i reorganizovan u skladu sa odličnim arhitektonskim projektom, prostor je maksimalno iskorišćen i veoma funkcionalan.
Blizina Dunavskog keja sa jedne strane, centra grada sa duge strane, kao i okruženje sa raznim sadržajima neophodnim za život savremene porodice, čini YUBC jednom od najpoželjnijih lokacija u gradu.
Stan je uknjižen.
Kupac plaća agencijsku proviziju 2%.
*Sačuvaj oglas uz belešku i primaj obaveštenja o njihovom pojeftinjenju ili pojavljivanju sličnih
Prikaz stana na mapi
Parkovi u blizini
- Park nesvrstanih zemalja27 min
- Park Republike Srpske27 min
- Park Diane Budisavljević28 min

Obeležja kulture u blizini
- Spomenik Žambilu Zambajevu4 min
- Spomenik Konfuciju5 min
- Logor Gestapoa Staro Sajmište7 min

Škole/Fakulteti/Vrtići u blizini
- Osnovna škola (Muzička škola Amadeus)10 min
- Srednja škola (Deseta beogradska gimnazija Mihajlo Pupin)4 min
- Vrtić (Dečiji vrtić Čuperak)4 min
- Fakultet (Fakultet za ekonomiju, finansije i administraciju)5 min

- Bolnica (Bolnica za oftalmologiju Oculus)11 min
- Klinika (Poliklinika Medicor)5 min
- Teretana (Beat Fit fitness & dance studio)12 min
- Prodavnica (Soulfood market)7 min
- Restoran (Pizza Pomodoro)4 min
- Kafana (Srpska kuća piva)10 min
- Taksi stajalište (Taxi stanica)10 min
- Autobuska stanica (Palata „Srbija“)3 min
- Tramvajska stanica (Blok 21)10 min
- Trolejbuska stanica (Studentski trg)34 min
- Banka (UniCredit Bank)4 min
- Pošta (Pošta Beograd 93)11 min
Kontakt oglašivača

Krediti OTP banke
Saznaj više
Prikazana rata odnosi se na maksimalni period otplate. Kalkulator je informativnog karaktera.
* Nakon isteka 5 godina, prelazi se na varijabilnu kamatnu stopu

