Dvosoban stan na prodaju, Peđe Milosavljevića, 184.000€, 65m²














184.000 €
2.831 € / m2
- Centralno grejanje
- Uobičajeno stanje
- Oglas oglašava agencija pod reg. brojem 339
- 1 telefonska linija
Opis oglasa
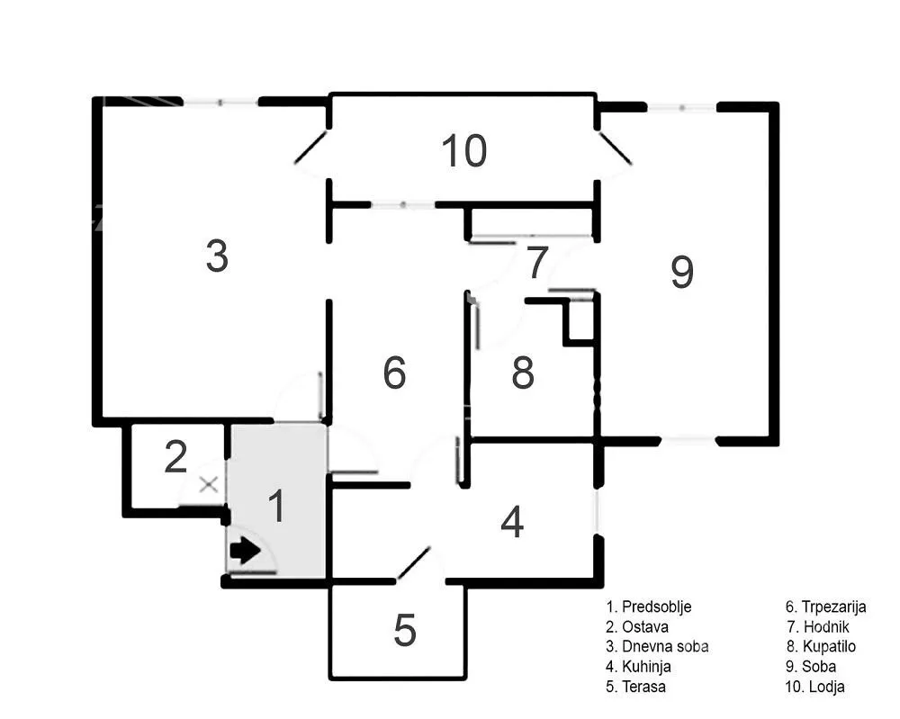
Prodaje se dobar stan na odličnoj lokaciji u Beogradu, mirna lokacija, okružena zelenilom u prelepom delu Beograda- Bežanijska kosa. U blizini stana se nalazi vrtić, škola, pijaca, sportski tereni, tržni centar… Površina stana je 65m2. Stan poseduje dnevnu sobu, spavacu sobu, kuhinju, trpezariju, dve terase…mogucnost pretvaranja u 2.5 stan…Lift, klima uređaj, podrum. Stan je uknjižen i pogodan i za kupovinu na kredit. Iznad stana se nalazi još jedan stan. Ispred zgrade postoji uvek dostupno mesto za parking. Odlično povezan sa svim delovima grada linijama gradskog prevoza, blizina auto puta. Agencijska provizija 2% Agent: Jasna Šnajder, br. licence:2844 "Art nekretnine" d.o.o. Beograd Reg. br.339 011... (prikaži broj telefona) DB02 .
*Sačuvaj oglas uz belešku i primaj obaveštenja o njihovom pojeftinjenju ili pojavljivanju sličnih
Prikaz stana na mapi
Parkovi u blizini
- Park Republike Argentine30 min
- Park Blok 7034 min
- Dečje igralište39 min

Obeležja kulture u blizini
- Stara osnovna škola7 min
- Hangar Starog aerodroma na Novom Beogradu10 min
- Česma14 min

Škole/Fakulteti/Vrtići u blizini
- Osnovna škola (Osnovna škola Borislav Pekić)4 min
- Srednja škola (Tehnička škola Novi Beograd)11 min
- Vrtić (Predškolska ustanova Kuća mašte 1 i 2)7 min
- Fakultet (Rome Business School)12 min

- Bolnica (Opšta bolnica Avala)9 min
- Klinika (Poliklinika As Medicus Biorezonanca)10 min
- Teretana (Fitness studio Kovačević)7 min
- Prodavnica (Market R&V komerc)2 min
- Restoran (Restoran Lucky Lee)5 min
- Kafana (Helga's Pub)27 min
- Taksi stajalište (Taxi stanica)9 min
- Autobuska stanica (Peđe Milosavljevića)5 min
- Banka (NLB Komercijalna banka)4 min
- Pošta (Pošta Beograd 99)4 min
Kontakt oglašivača
Stambeni krediti

- Period otplate od
96 -360 meseca
- NKS 4.75%
EKS 5.74%
Fiksna kamatna stopa
- Bez troškova obrade kredita
stranici kreditnih kalkulatora
Keš krediti
Period otplate
13 meseci




















