Trosoban stan na prodaju, Bulevar Vudroa Vilsona, 821.888€, 87m²






















821.888 €
9.447 € / m2
- Centralno grejanje
- Novo
- Prostorije: kupatila (3+)
- Opremljenost: Prazno - internet, interfon, klima
- Oglas oglašava agencija pod reg. brojem 793
- 1 garažno mesto
- 1 lift
- Zgrada poseduje: sauna
- Kablovska
- 1 telefonska linija
Opis oglasa
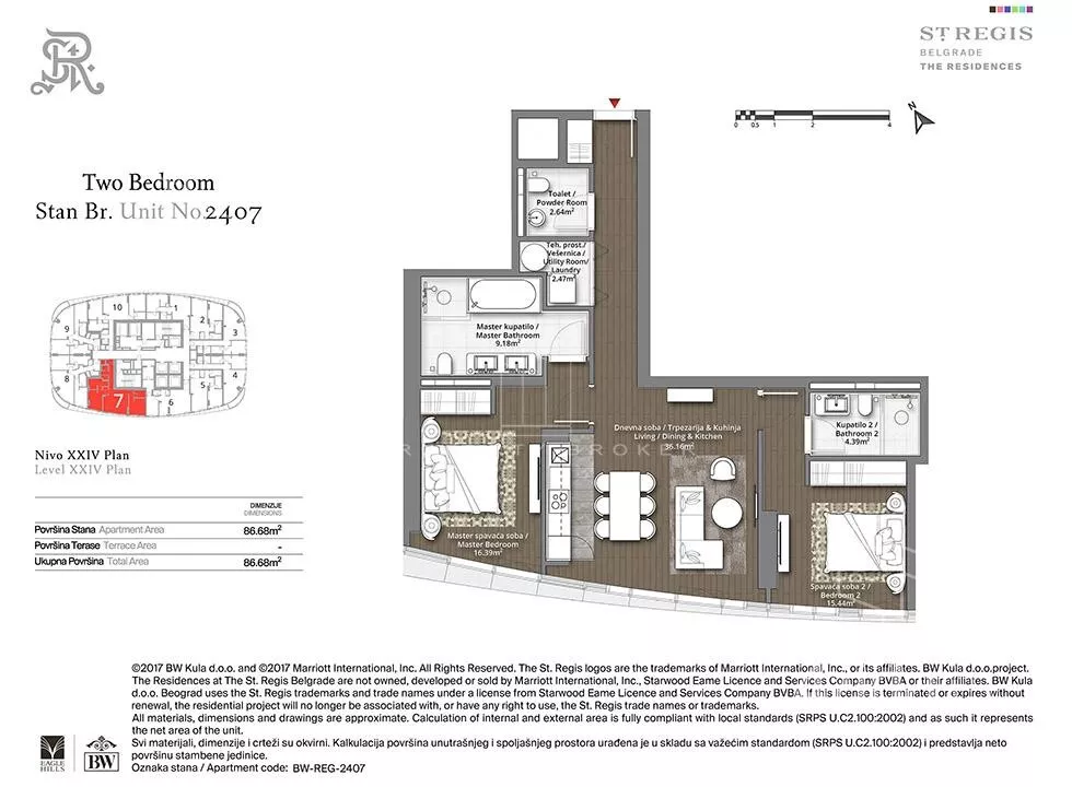
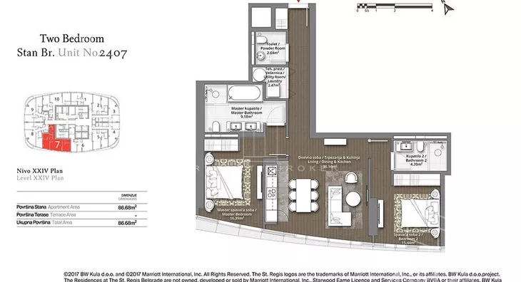
Prodajemo unikatan stan u Kuli St. Regis na prestižnoj lokaciji u kompleksu Beograd na vodi. Stan se nalazi na 24. spratu, sa kojeg se proteže pogled na most na Adi, Adu, Avalu, Košutnjak, Adu Međicu, Novi Beograd.Apartman se sastoji od ulaznog hodnika koji vodi u prostran dnevni boravak sa kuhinjom i trpezarijom, dve spavaće sobe, dva kupatila, toaleta i vešernice.
Nevidjen dizajn na ovim prostorima, vanvremenski lepa zgrada.
U ovoj skoro 170 metara visokoj zgradi nalazi se prvoklasni svetski hotel "The St. Regis" Belgrade i dizajnerske stambene jedinice koje nude zaista privilegovan nacin zivota. Zgrada svojim stanarima nudi neograniceni pristup prvoklasnim uslugama i prostorijama hotela, kao sto je soba sa mermernim bazenom, podzemna garaža, spa centar, vrhunski opremljena teretana i salon za odmor, galerija u lobiju, bar i restorani.
Bez posredničke nadoknade za kupce
*Sačuvaj oglas uz belešku i primaj obaveštenja o njihovom pojeftinjenju ili pojavljivanju sličnih
Prikaz stana na mapi
Parkovi u blizini
- Savski park3 min
- Park Lepi izgled9 min
- Park Hajduk Veljkov venac12 min

Obeležja kulture u blizini
- Spomenik caru Dušanu Silnom7 min
- Spomenik Stefanu Nemanji11 min
- Spomenik Vojvodi Radomiru Putniku16 min

Škole/Fakulteti/Vrtići u blizini
- Osnovna škola (Osnovna škola Radojka Lakić)10 min
- Srednja škola (Škola za brodarstvo, brodogradnju i hidrogradnju)7 min
- Vrtić (Dečiji vrtić Futurino)6 min
- Fakultet (Futura fakultet za primenjenu ekologiju)8 min

- Bolnica (Opšta bolnica Euromedik)7 min
- Klinika (Poliklinika Rea Medika)6 min
- Teretana (Ashtanga Yoga Beograd)4 min
- Prodavnica (Shop&Go)1 min
- Restoran (Kaldi Gastro Bar)2 min
- Kafana (Kafana Kod Glumca)8 min
- Taksi stajalište (Taxi stanica)5 min
- Autobuska stanica (Palata Pravde 1)1 min
- Tramvajska stanica (Savski Trg)11 min
- Trolejbuska stanica (Višegradska)8 min
- Banka (Erste Bank Ekspres ekspozitura)3 min
- Pošta (Pošta Beograd 115)8 min
Kontakt oglašivača

Krediti OTP banke
Saznaj više
Prikazana rata odnosi se na maksimalni period otplate. Kalkulator je informativnog karaktera.
* Nakon isteka 5 godina, prelazi se na varijabilnu kamatnu stopu

