Šestosoban stan na prodaju, Andrićev Venac, 613.000€, 146m²






























613.000 €
4.199 € / m2
- Centralno grejanje
- Renovirano
- Prostorije: toaleti (2)
- Uknjiženo
- Oglas oglašava agencija pod reg. brojem 1219
- 1 lift
Opis oglasa
Na jednoj od najprestižnijih beogradskih lokacija – na Andrićevom vencu, neposredno uz Stari dvor, Skupštinu grada i ulicu Kralja Milana, nalazi se ovaj jedinstveni stan u zgradi koja predstavlja pravi simbol starog Beograda.
U samom ste centru zbivanja, a ipak u mirnoj i reprezentativnoj ulici, sa manje od 10 minuta lagane šetnje do strogog centra grada.
Stan se nalazi na visokom prizemlju predratne, kvalitetno održavane zgrade, sa lepim ulazom i liftom, koja ima status spomenika kulture.
Osnovne karakteristike stana
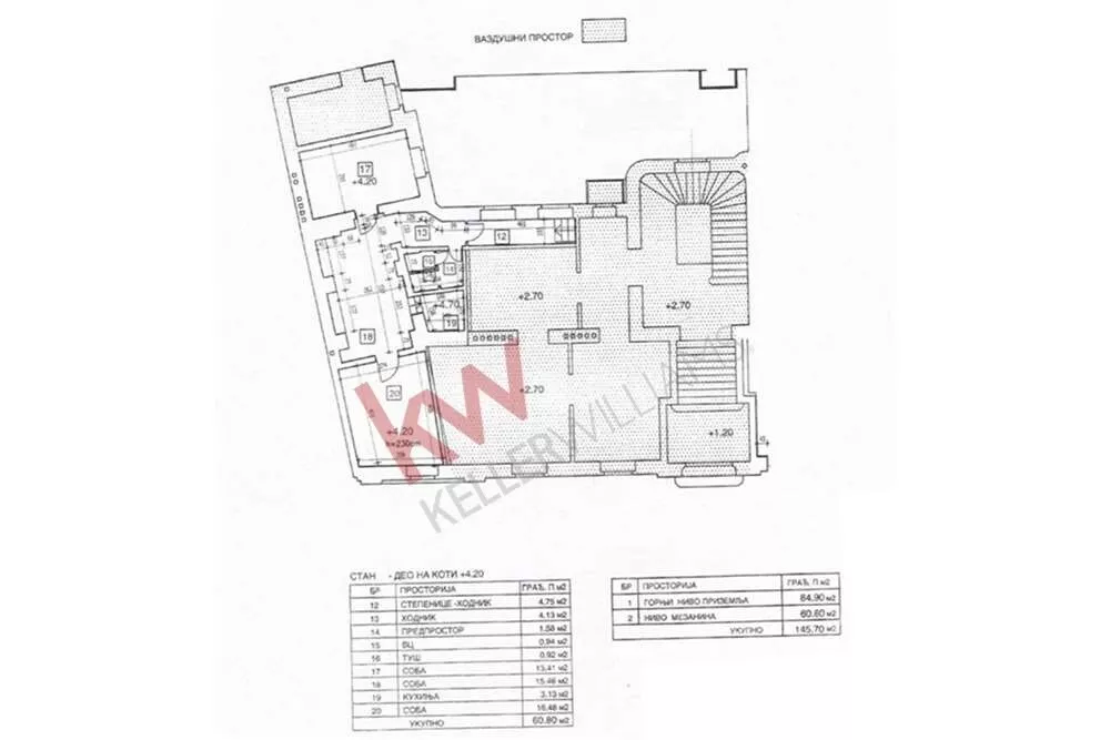
- Uknjižena površina**:** 146 m²
- Struktura**:** dupleks / galerijski stan
- Visina plafona donjeg nivoa**: 4,05–4,15 m**
- Grejanje**: centralno**
Raspored po nivoima:
- Donji nivo – 85 m²
Raspored: tri prostrane prostorije, predsoblje, toalet i kuhinjski deo. - Gornji nivo (galerija) – 61 m²
Raspored: tri prostorije, toalet i kuhinjski deo.
Galerija sa vidljivom gredom dodatno naglašava volumen prostora i njegov specifičan arhitektonski identitet, dajući stanu izuzetnu fleksibilnost u organizaciji.
Stanje i potencijal
Stan se nalazi u procesu rekonstrukcije i trenutno je u fazi grubih građevinskih radova, spreman za nastavak kompletne adaptacije (instalacije, završni radovi). Ovakvo stanje omogućava budućem vlasniku da prostor u potpunosti prilagodi sopstvenom stilu i nameni – bilo kao luksuzni rezidencijalni stan, reprezentativan poslovni prostor ili kombinaciju oba.
Model kupovine i cena
- Cena po oglasu (završen stan): 613.000 EUR
- Mogućnost kupovine u viđenom stanju – uz korekciju cene
Ovo je nekretnina koja se retko pojavljuje na tržištu – spoj vrhunske lokacije, arhitektonske vrednosti i izuzetnog potencijala.
Za više informacija, razgledanje i dogovor o modelu kupovine, pozovite nas i zakažite obilazak.
*Sačuvaj oglas uz belešku i primaj obaveštenja o njihovom pojeftinjenju ili pojavljivanju sličnih
Prikaz stana na mapi
Parkovi u blizini
- Pionirski park2 min
- Park Andrićev venac3 min
- Park Aleksandrov4 min

Obeležja kulture u blizini
- Spomenik Ivu Andriću1 min
- Spomenik Nadeždi Petrović2 min
- Stari dvor3 min

Škole/Fakulteti/Vrtići u blizini
- Osnovna škola (Osnovna škola Vladislav Ribnikar)9 min
- Srednja škola (Savremena gimnazija)6 min
- Vrtić (Dečiji vrtić Terazije)5 min
- Fakultet (Visoka škola socijalnog rada)6 min

- Bolnica (Oftalmologija Stankov)4 min
- Klinika (Specijalistička ordinacija Medical Time)4 min
- Teretana (Fitness centar FunFit)5 min
- Prodavnica (Shop&Go)1 min
- Restoran (Restoran Dva Štapića)1 min
- Kafana (Kafana Tarapana)1 min
- Taksi stajalište (Taxi stanica)6 min
- Autobuska stanica (Pionirski Park)4 min
- Tramvajska stanica (RK „Beograđanka”)6 min
- Trolejbuska stanica (London)4 min
- Banka (AIK Banka)4 min
- Pošta (Pošta Beograd 112)3 min
Kontakt oglašivača
Krediti OTP banke
Saznaj više
Prikazana rata odnosi se na maksimalni period otplate. Kalkulator je informativnog karaktera.
* Nakon isteka 5 godina, prelazi se na varijabilnu kamatnu stopu


