Jednoiposoban stan na prodaju, Beograd centar, 150.000€, 45m²












150.000 €
3.333 € / m2
- Grejanje na TA peć
- Prostorije: kupatilo
- Opremljenost: Prazno - internet, interfon, klima
- Uknjiženo
- Oglas oglašava agencija pod reg. brojem 178
- 1 parking mesto
- Kablovska
- 1 telefonska linija
Opis oglasa
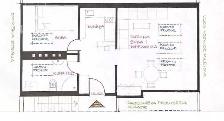
Prodaje se jednoiposoban stan u potkrovlju održavane zgrade. Stan je renoviran 2012 godine. Nov parket, novi prozori, promenjene elektro i vodovodne instalacije. Kompletan krov zamenjen 2022 godine. Grejanje je na TA peći koje su takodje nove i automatski se pale i gase u periodu jeftine struje. Spavaća soba i kupatilo okrenuti su ka dvorištu zgrade, a dnevna soba i trpezarija okrenute ka ulici. Dvostrano je orjentisan što mu omogućava odlično provetravanje i osvetljenje. Stan je izuzetno sunčan, ali je krovna izolacija odlična i prozori imaju posebnu spoljnu zaštitu od sunca tako da je uptreba klime u letnjim mesecima svedena na minimum. Stan je osiguran na sledećih godinu dana na najvišu premiju osiguranja kod Generali osiguranja. Po želji kupca moguć je dogovor i prodaje nameštaja i bele tehnike po niskoj ceni. U zgradi ima zajednicka prostorija stambene zajednice. Zgrada ima svoj parking za stanare zgrade. Na par minuta od stana nalaze se tržni centar Galerija, pošta, banke, tri parka, škola, vrtić, velika teretana, prodavnice svih potrebnih artikala za život kao i odlično organizovan gradski prevoz. Moguća kupovina na kredit kao i za kes kupce- Uknjižen na vlasnika 1/1. Infostan 2.500 din ! 18 Oznaka na mapi pokazuje deo grada, ne i tačan položaj zgrade.
*Sačuvaj oglas uz belešku i primaj obaveštenja o njihovom pojeftinjenju ili pojavljivanju sličnih
Prikaz stana na mapi
Parkovi u blizini
- Park Hajduk Veljkov venac5 min
- Park Gavrila Principa7 min
- Park Bristol11 min

Obeležja kulture u blizini
- Zgrada Železničke stanice5 min
- Kasarna VII puka5 min
- Spomenik Stefanu Nemanji4 min

Škole/Fakulteti/Vrtići u blizini
- Osnovna škola (Osnovna škola Radojka Lakić)3 min
- Srednja škola (Škola za brodarstvo, brodogradnju i hidrogradnju)5 min
- Vrtić (Dečiji vrtić Avantura)5 min
- Fakultet (Akademija umetnosti Beograd)5 min

- Bolnica (Specijalna bolnica Sveti Sava)4 min
- Klinika (Poliklinika Tesla Medical group)7 min
- Teretana (Sportski klub Athletic Body Response)5 min
- Prodavnica (Shop&Go)3 min
- Restoran (Restoran SavaQ)1 min
- Kafana (Corner Pub)8 min
- Taksi stajalište (Taxi stanica)2 min
- Autobuska stanica (Savski Trg (Savska))1 min
- Tramvajska stanica (Savski Trg)4 min
- Trolejbuska stanica (Birčaninova)6 min
- Banka (Banca Intesa)5 min
- Pošta (Pošta Beograd 6)5 min
Kontakt oglašivača
Stambeni krediti
- Period otplate od
96 -360 meseca
- NKS 4.50%
EKS 5.74%
Fiksna kamatna stopa
- Bez troškova obrade kredita
- Period otplate od
96 -360 meseca
- NKS 4.34%
Kombinovana kamatna stopa
- Bez troškova obrade kredita
- Odobrenje kredita do 48h
stranici kreditnih kalkulatora
Keš krediti
Period otplate
13 meseci
