Trosoban stan na prodaju, Banovo Brdo, 295.000€, 106m²














295.000 €
2.783 € / m2
- Grejanje na gas
- Prostorije: kupatilo
- Uknjiženo
- Oglas oglašava agencija pod reg. brojem 1288
- 1 parking mesto
- 1 telefonska linija
Opis oglasa
TROSOBAN STAN SA ZASEBNIM ULAZOM – KOMFORNA PORODIČNA OAZA NA BANOVOM BRDU!
- Na prodaju funkcionalan i svetao trosoban stan u prizemlju kuće, sa posebnim ulazom – idealan spoj porodičnog mira i odlične povezanosti. Nalazi se u blizini parka Nikolaja Gogolja - na samo minut od Požeške, u mirnom i uređenom komšiluku.
- Uknjižen 1/1, bez tereta
- Mogućnost adaptacije u četvorosoban stan
- Zaseban ulaz – potpuna privatnost
- Mogućnost parking mesta u dvorištu
- Nova fasada sa termoizolacijom
- PVC stolarija, odličan parket, ugrađen gas, klima uređaj
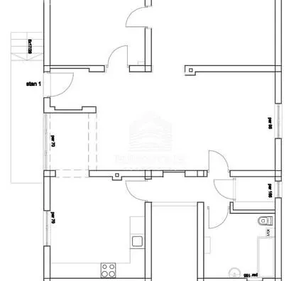
- Raspored prostorija: terasa, hodnik, dnevna soba, trpezarija, kuhinja, 2 spavaće sobe, kupatilo i ostava – savršeno organizovan prostor za porodičan život.
- Retka prilika na tržištu!
Kombinacija komfora, fleksibilnosti i lokacije – prava investicija za budućnost!
Agencijska nadoknada iznosi 2%
.
*Sačuvaj oglas uz belešku i primaj obaveštenja o njihovom pojeftinjenju ili pojavljivanju sličnih
Prikaz stana na mapi
Parkovi u blizini
- Park Banovo Brdo6 min
- Dečje igralište15 min
- Dečje igralište22 min

Obeležja kulture u blizini
- Spomenik srpskim ratnicima9 min
- Skulptura Žetelica10 min
- Česma izvor Zmajevac10 min

Škole/Fakulteti/Vrtići u blizini
- Osnovna škola (Osnovna škola Josif Pančić)4 min
- Srednja škola (Trinaesta beogradska gimnazija)2 min
- Vrtić (Dečiji vrtić Đurđevak)4 min
- Fakultet (Visoka sportska i zdravstvena škola)5 min

- Bolnica (Bolnica za plastičnu i rekonstruktivnu hirurgiju Mens Sana)9 min
- Klinika (Bel Medic Poliklinika)7 min
- Teretana (Hill Gym Studio)3 min
- Prodavnica (Shop&Go)2 min
- Restoran (Restoran D Mol)2 min
- Kafana (Rea's Pub)3 min
- Taksi stajalište (Taxi stanica)7 min
- Autobuska stanica (Obalskih Radnika)8 min
- Tramvajska stanica (Dom Zdravlja)3 min
- Banka (Raiffeisen Bank)2 min
- Pošta (Pošta Beograd 8)6 min
Kontakt oglašivača
Krediti OTP banke
Saznaj više
Prikazana rata odnosi se na maksimalni period otplate. Kalkulator je informativnog karaktera.
* Nakon isteka 5 godina, prelazi se na varijabilnu kamatnu stopu






















