Trosoban stan na prodaju, Banjica, 255.500€, 73m²


























255.500 €
3.500 € / m2
- Stan u zgradi
- Etažno grejanje
- Novo
- Prostorije: kupatilo, terasa
- Uknjiženo
- Oglas oglašava agencija pod reg. brojem 1574
- 1 lift
Opis oglasa
***** Na prodaju trosoban NOV stan Beograd, Voždovac *****
💰 Cena: 3500€ m2
📍 Lokacija: Voždovac, Beograd
Prodaje se funkcionalan i svetao stan površine 73m² u kvalitetnoj novogradnji na Voždovcu, u urbanom delu opštine, sa odličnom povezanošću sa ostatkom grada.
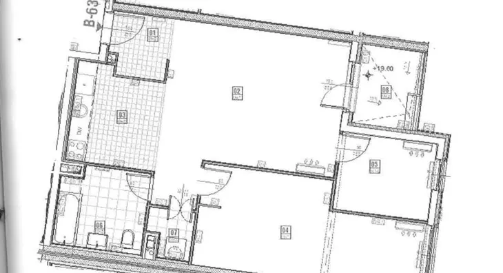
Struktura stana:
- predsoblje
- dnevna soba sa trpezarijom
- kuhinja
- dve spavaće sobe
- kupatilo
- ostava
- lođa
Stan je odličnog rasporeda, sa dobro iskorišćenim prostorom i dosta prirodnog svetla. Grejanje je etažno, što omogućava potpunu kontrolu troškova i temperature tokom grejne sezone.
Zgrada je nova, modernog dizajna, građena kvalitetnim materijalima. Lokacija pruža blizinu svih neophodnih sadržaja – prodavnica, škola, vrtića, javnog prevoza i zelenih površina – što stan čini idealnim za porodično stanovanje ili kao investiciju.
Uknjižen. Mogućnost kupovine putem stambenog kredita.
Mi smo tim Residence nekretnine, vaš partner u pronalaženju savršenog doma. Pružamo vam sveobuhvatnu podršku advokata i garantujemo prisustvo prilikom overe ugovora kod javnog beležnika. Pozovite nas već danas na navedene brojeve telefona kako biste saznali više o lokaciji ili samoj nekretnini. Spremni smo da se prilagodimo vašem rasporedu, bilo da želite obilazak tokom radnih dana ili vikendom.
Pored ovog stana u našoj ponudi imamo veliki broj stanova u novogradnji i starogradnji širom grada.
Za više informacija budite slobodni da nas nazovete na sledeće brojeve telefona, biće nam zadovoljstvo da učestvujemo u pronalaženju idealnog doma za Vas.
+38... (prikaži broj telefona)
+38... (prikaži broj telefona)
Broj u registru posrednika 1574
*Sačuvaj oglas uz belešku i primaj obaveštenja o njihovom pojeftinjenju ili pojavljivanju sličnih
Prikaz stana na mapi
Parkovi u blizini
- Banjička šuma11 min
- Park Jove Ilića15 min
- Bajronov park26 min

Obeležja kulture u blizini
- Stara mehana u Kumodražu12 min
- Dvorska crkva Svetog Apostola Andreja Prvozvanog13 min
- Kraljevski dvor14 min

Škole/Fakulteti/Vrtići u blizini
- Osnovna škola (Osnovna škola Filip Filipović)5 min
- Srednja škola (Srednja škola Vasa Stajić)7 min
- Vrtić (Dečiji vrtić Zvezdica)manje od 1 min
- Fakultet (Visoka škola strukovnih studija za ekonomiju i upravu R&B College)3 min

- Bolnica (Opšta bolnica Medicinski sistem Beograd MSB)4 min
- Klinika (Poliklinika Nera)4 min
- Teretana (District Cross Fit)3 min
- Prodavnica (Gomex market)2 min
- Restoran (Restoran Pastino)4 min
- Kafana (Pivnica Drvce Kiselo 2002)11 min
- Taksi stajalište (Taxi stanica)4 min
- Autobuska stanica (Crkva Sv. Vasilija Ostroškog)4 min
- Tramvajska stanica (Saobraćajni Fakultet)6 min
- Trolejbuska stanica (Paunova)8 min
- Banka (Erste Bank)5 min
- Pošta (Pošta Beograd 163)9 min
Kontakt oglašivača
Krediti OTP banke
Saznaj više
Prikazana rata odnosi se na maksimalni period otplate. Kalkulator je informativnog karaktera.
* Nakon isteka 5 godina, prelazi se na varijabilnu kamatnu stopu


