Četvorosoban stan na prodaju, Paunova, 203.000€, 84m²




























203.000 €
2.417 € / m2
- Stan u zgradi
- Centralno grejanje
- Prostorije: terasa
- Uknjiženo
- Oglas oglašava agencija pod reg. brojem 109
- 1 lift
- Godina izgradnje: 1983.
- Zgrada poseduje: podrum
- 1 telefonska linija
Opis oglasa
Prodaje se izuzetno lep komforan i funkcionalan cetvorosoban stan na idealnom 2. spratu (od ukupno 3), u zgradi vrhunske gradnje iz 1983. godine. Zgradu je finansirala JNA, gradilo preduzece Trudbenik, a projektovao renomirani prof. Aca Stjepanovic (dobitnik nagrade za zivotno delo).
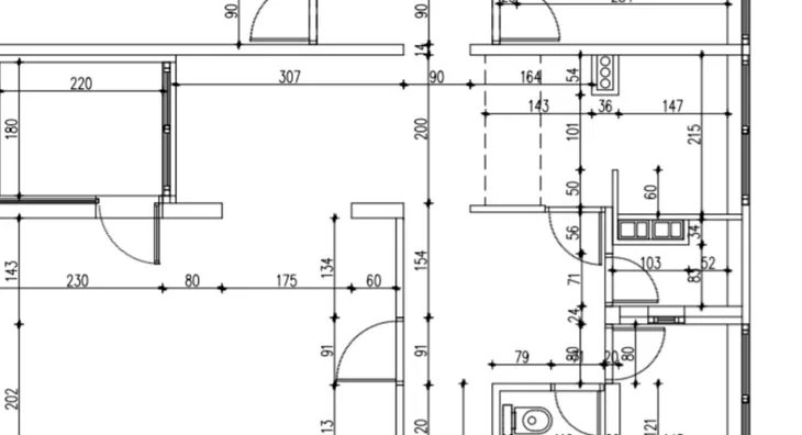
Stan je funkcionalan i svetao, ukupne povrsine 86,23 m3 (79 m2 grejne + dve lodje, severna i juzna), smesten u kvalitetno gradjenoj zgradi u mirnom i porodicnom kraju. Stan se nalazi na idealnoj poziciji u zgradi, dvostrano je orijentisan (sever-zapad), veoma prozracan, sa odlicnim rasporedom prostorija i puno prirodne svetlosti.
Stan poseduje cetiri sobe, kuhinju sa prirodnom ventilacijom, ostavu, kupatilo, gostinjski toalet, kao i prostran hodnik i foaje. Postoje idejna resenja za adaptaciju u dve potpuno odvojene stambene jedinice, sto ga cini odlicnim izborom kako za vecu porodicu, tako i za investiciju.
Grejanje je centralno, sa stalno dostupnom toplom vodom (stan je prikljucen na toplanu, bez bojlera). Zgrada ima video nadzor, dva ulaza sa interfonom (gornji i donji), a ispred je obezbeden parking. Stan ima pripadajuci podrum povrsine oko 6 m2 kao i zajednicku vesernicu koju deli sa jos tri stana.
Ono sto ovu nekretninu dodatno izdvaja su posebne prednosti: jedini ulaz u zgradi sa opremljenim atomskim sklonistem, objekat gradjen da izdrzi zemljotrese do 7 stepeni Rihtera, fasadna cigla koja obezbeduje odlicnu izolaciju. Zgrada ima reputaciju mirne i tihe zajednice sa izuzetnim komsijama. Rec je o retko vidjenoj arhitektonskoj strukturi i samo tri ovakva stana u celoj lameli.
Nalazi se u blizini okretnice trolejbusa, a u neposrednoj okolini su vrtic, osnovna skola Bora Stankovic, posta, Maxi, VMA, bazen Banjica, Bajfordova suma i Paunov breg - idealna lokacija za porodican zivot. Stan bez mnogo ulaganja, sa velikim potencijalom i retkom strukturom na trzistu.
Predsoblje, dnevni boravak, kuhinj, trpezarija, tri spavace sobe, dva kupatila, dve terase, pripadajuci podrum. Uknjizen 2/3 Paunova -imamo slicne NEKRETNINE BEOGRAD http://www.nekretnineobradovic.rs/stan-beograd-realestate/kartica.php?id=8528
*Sačuvaj oglas uz belešku i primaj obaveštenja o njihovom pojeftinjenju ili pojavljivanju sličnih
Prikaz stana na mapi
Parkovi u blizini
- Banjička šuma29 min
- Park Jove Ilića35 min
- Miljakovačka šuma42 min

Obeležja kulture u blizini
- Spomen park Jajinci10 min
- Stara mehana u Kumodražu12 min
- Rodna kuća vojvode Stepe Stepanovića15 min

Škole/Fakulteti/Vrtići u blizini
- Osnovna škola (Osnovna škola Bora Stanković)8 min
- Srednja škola (Srednja škola Vasa Stajić)11 min
- Vrtić (Dečiji vrtić Iskra)7 min
- Fakultet (Visoka škola strukovnih studija za ekonomiju i upravu R&B College)9 min

- Bolnica (Dnevna bolnica za bolesti zavisnosti Dr Branko Gačić)7 min
- Klinika (Poliklinika Nera)8 min
- Teretana (Fitness club M)4 min
- Prodavnica (Mini market Braško 1)2 min
- Restoran (Restoran Manos)12 min
- Kafana (Pivnica Paulaner Klub 4)14 min
- Taksi stajalište (Taxi stanica)11 min
- Autobuska stanica (Banjica 2)2 min
- Tramvajska stanica (Saobraćajni Fakultet)24 min
- Trolejbuska stanica (Banjica 2)2 min
- Banka (Eurobank Direktna)7 min
- Pošta (Pošta Beograd 152)3 min
Kontakt oglašivača
Stambeni krediti
- Period otplate od
96 -360 meseca
- NKS 4.75%
EKS 5.74%
Fiksna kamatna stopa
- Bez troškova obrade kredita
- Period otplate od
96 -360 meseca
- NKS 4.34%
Kombinovana kamatna stopa
- Bez troškova obrade kredita
- Odobrenje kredita do 48h
stranici kreditnih kalkulatora
Keš krediti
Period otplate
13 meseci
