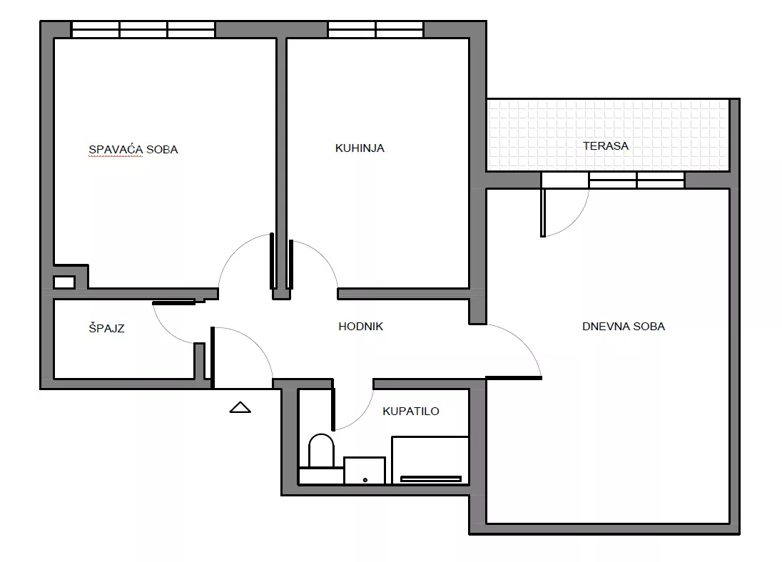
Dvosoban stan na prodaju, Banatić, 115.000€, 55m²
Novi Sad, Gradske lokacije, Banatić
Prikaži mapuOglas ažuriran: pre 9 sati
































115.000 €
2.091 € / m2
55 m²
2 sobe
1/5 spratova
- Stan u zgradi
- Centralno grejanje
- Uobičajeno stanje
- Prostorije: kupatilo, toalet, ostava, terasa
- Opremljenost: Polunamešteno - internet, kuhinjski elementi, sudo mašina, ležaj, plakar
- Orijentacija ka: zapad
- Pogled na: ulicu
- Uknjiženo
- Kupovina direktno od vlasnika
- Javni parking u zoni
- Godina izgradnje: 1960.
- Zgrada poseduje: podrum
- Tip interneta: optički
- Kablovska
- Autobuske linije: 3, 8, 11
*Sačuvaj oglas uz belešku i primaj obaveštenja o njihovom pojeftinjenju ili pojavljivanju sličnih
Prikaz stana na mapi
Kontakt oglašivača
Dusan Zivkovic

▾Reklama▾
Stambeni krediti

- Period otplate od
 96 -360 meseca
- NKS 4.75%
 EKS 5.74%
 Fiksna kamatna stopa
- Bez troškova obrade kredita
1.123 € / mesečno
Saznaj višePogledaj detaljnije i menjaj uslove kreditiranja na
stranici kreditnih kalkulatora
stranici kreditnih kalkulatora
Keš krediti
RSDIznos kredita
Period otplate
13 meseciOsiguranje domaćinstva online
Osiguraj svoje domaćinstvo u slučaju požara...


