Trosoban stan na prodaju, Bajnat, 106.550€, 68m²
Subotica, Gradske lokacije, Bajnat
Prikaži mapuŠifra oglasa: 4zida-25-N90Oglas ažuriran: pre 9 sati


106.550 €
1.567 € / m2
68 m²
3 sobe
- Prostorije: kupatila (2)
- Oglas oglašava agencija pod reg. brojem 1034
Opis oglasa
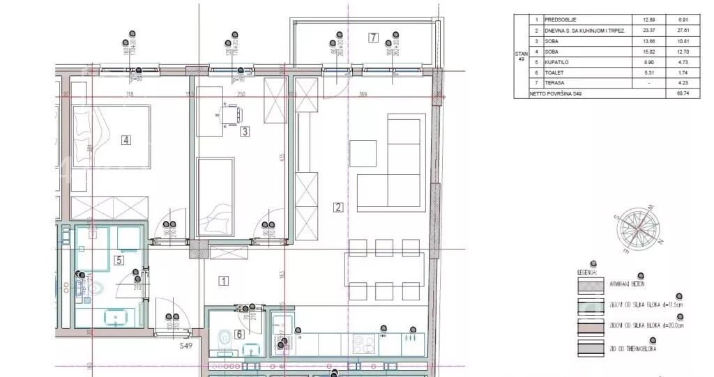
Subotica – Bajnat, prodaje se trosoban stan u izgradnji površine 68,74kvm koji se nalazi na četvrtom spratu u zgradi sa liftom. Stan u svom sastavu poseduje: dve spavaće sobe, dnevnu sobu sa trpezarijom i kuhinjom, predsoblje, kupatilo i terasu. Na podovima u hodniku, kuhinji i kupatilu je keramika dok je u sobama parket. Grejanje je na gas, pvc stolarija, tfs. Rok završetka radova je maj 2026. godine. Cena je 1550e/kvm sa PDV-om. Red. br. 25-N90
*Sačuvaj oglas uz belešku i primaj obaveštenja o njihovom pojeftinjenju ili pojavljivanju sličnih
Prikaz stana na mapi
Parkovi u blizini
- Park Prozivka8 min
- Park Rajhl Ferenca19 min
- Park Dudova šuma41 min

Obeležja kulture u blizini
- Spomenik Ivanu Sariću7 min
- Gradska kuća Subotica8 min
- Spomenik Prozivka6 min

Škole/Fakulteti/Vrtići u blizini
- Osnovna škola (Osnovna škola Sonja Marinković)5 min
- Srednja škola (Tehnička škola Ivan Sarić)5 min
- Vrtić (Dečiji vrtić Lastavica)7 min
- Fakultet (Pravni fakultet za privredu i pravosuđe Univerzitet Privredna akademija)5 min

Zdravlje
- Bolnica (Bolnica Sveti Stefan)7 min
- Klinika (Poliklinika Kuća zdravlja)5 min
- Teretana (EMS Studio Maxifit)6 min
Hrana i piće
- Prodavnica (Market Albert & Viktorija)3 min
- Restoran (Restoran All'oro)6 min
- Kafana (Pub Liverpool)22 min
Prevoz
- Autobuska stanica (Dinamotrans)5 min
Ostale ustanove
- Banka (OTP banka)6 min
- Pošta (Pošta Subotica 11)6 min
Kontakt oglašivača
▾Reklama▾
Stambeni krediti

- Period otplate od
96 -360 meseca
- NKS 4.75%
EKS 5.74%
Fiksna kamatna stopa
- Bez troškova obrade kredita
1.252 € / mesečno
Saznaj višePogledaj detaljnije i menjaj uslove kreditiranja na
stranici kreditnih kalkulatora
stranici kreditnih kalkulatora
Keš krediti
RSDIznos kredita
Period otplate
13 meseciOsiguranje domaćinstva online
Osiguraj svoje domaćinstvo u slučaju požara...