Trosoban stan na prodaju, Južni Bulevar, 280.000€, 82m²
OBIĐI 3D TURU










































280.000 €
3.415 € / m2
- Stan u zgradi
- Centralno grejanje
- Renovirano
- Prostorije: kupatilo, toalet
- Opremljenost: Prazno - internet
- Uknjiženo
- Oglas oglašava agencija
- Garaža u sklopu zgrade
- 1 parking mesto
- 2 lifta
- Godina izgradnje: 1968.
- Zgrada poseduje: podrum, lođa, video nadzor
- Kablovska
- 1 telefonska linija
Opis oglasa
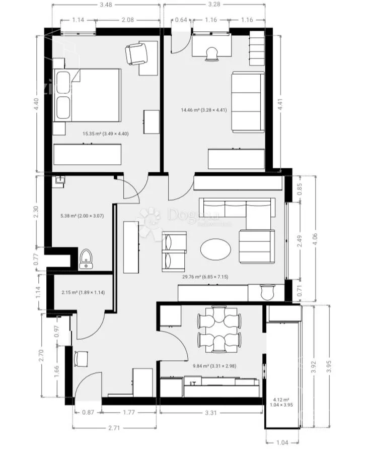
Autokomanda, Južni bulevar, 3.0, 82m2 sa lodjom, III od 11 spratova, CG, telefon, lift, interfon, video nadzor, ktv, internet, klima, odmah useljiv, LUX renoviran, uknjižen na 76m2, podrum, GARAŽA, starogradnja (1968).
Na Vračaru, u ulici Južni bulevar, u blizini Autokomande i Neimara, nalazi se jedna od najtraženijih mikrolokacija u Beogradu – sa odličnim saobraćajnim vezama ka svim delovima grada, brzim izlazom na autoput i bogatim sadržajima u okruženju. Parkovi i zelenilo, kojima je zgrada okružena, upotpunjuju kvalitet života u ovom delu grada.
U tom ambijentu podignuta je jedanaestospratna zgrada iz sedamdesetih godina, projektovana pod nadzorom arhitekte Stojana Maksimovića, autora Sava Centra. Kao primer pouzdane i trajne gradnje tog perioda, sa dva lifta, stabilnom konstrukcijom, prostranim podrumom i dobro očuvanom fasadom i danas predstavlja sinonim sigurnosti i kvaliteta.
Stan je uknjižen na 76 m2, mereno 82 m2, nalazi se na trećem spratu i dvostrano je orijentisan, sa pogledom na parkovsko zelenilo.
Funkcionalna organizacija prostora obuhvata ulazni hodnik, dnevni boravak, kuhinju sa trpezarijom i lođom, dve velike spavaće sobe i dva kupatila, od kojih je jedno adaptirano u ostavu. Ceo stan odiše svetlošću, toplinom i privatnošću.
Potpuno je renoviran i opremljen novim instalacijama, sa posebnom pažnjom na završnu obradu i izbor materijala. Moderan i sveden dizajn naglašen je pažljivo osmišljenom rasvetom i toplim nijansama, koje prostoru daju prozračnost i prijatan ambijent. Centralno grejanje sa kalorimetrima na nivou zgrade, obezbeđuje male režijske troškove i racionalnu potrošnju.
Ova nekretnina predstavlja retku kombinaciju vrhunske lokacije, kvalitetne zgrade i modernog enterijera.
Mogućnost kupovine garaže u neposrednoj blizini, sa kojom stan dobija dodatnu vrednost i sigurnost investicije.
CENA: 280000 EUR
Kontakt telefon agenta: 063... (prikaži broj telefona)
*Sačuvaj oglas uz belešku i primaj obaveštenja o njihovom pojeftinjenju ili pojavljivanju sličnih
Prikaz stana na mapi
Parkovi u blizini
- Park mira Jelena Šantić3 min
- Karađorđev park10 min
- Čuburski park13 min

Obeležja kulture u blizini
- Kuća Flašar3 min
- Spomenik oslobodilaca Beograda 1806. godine8 min
- Spomenik Franše Depereu10 min

Škole/Fakulteti/Vrtići u blizini
- Osnovna škola (Osnovna škola Svetozar Marković)4 min
- Srednja škola (Prva škola integrativne medicine Alvita Plus)5 min
- Vrtić (International Kindergarten Little Sparrows Vrapčići)3 min
- Fakultet (Univerzitet u Beogradu Stomatološki fakultet)9 min

- Bolnica (Oftalmologija Stankov)3 min
- Klinika (Poliklinika Medikom)6 min
- Teretana (Fitness centar F Gym)1 min
- Prodavnica (Shop&Go)2 min
- Restoran (Restoran Versus)1 min
- Kafana (Tatar Bar)5 min
- Taksi stajalište (Taxi stanica)4 min
- Autobuska stanica (Mihajla Gavrilovića)1 min
- Tramvajska stanica (Karađorđev Park)14 min
- Trolejbuska stanica (Mačvanska)12 min
- Banka (Raiffeisen Bank)6 min
- Pošta (Pošta Beograd 23)9 min
Kontakt oglašivača
Stambeni krediti

- Period otplate od
96 -360 meseca
- NKS 4.75%
EKS 5.74%
Fiksna kamatna stopa
- Bez troškova obrade kredita
Za iznos kredita preko 300000 € poseti sajt banke.
Saznaj višestranici kreditnih kalkulatora
Keš krediti
Period otplate
13 meseci