Jednoiposoban stan na prodaju, Hemingvejeva, 130.000€, 54m²


































130.000 €
2.407 € / m2
- Prostorije: kupatilo, terasa
- Opremljenost: Prazno - interfon
- Oglas oglašava agencija pod reg. brojem 1308
- 1 parking mesto
- Godina izgradnje: 2000.
- Zgrada poseduje: podrum
- 1 telefonska linija
Opis oglasa
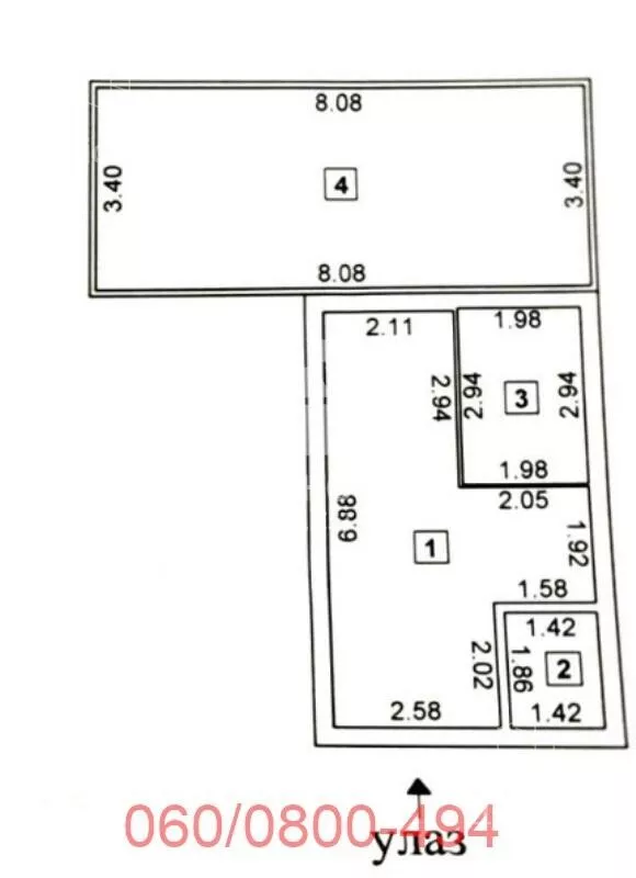
1.5, 54.60m2, terasa 27.5, TA, VPR/III, telefon, interfon, podrum, parking. U procesu legalizacije. Jednoiposoban stan sa pripadajućim dvorištem površine 4.30 ari. Dvorište poseduje zaseban ulaz, gde se može ući kolima. Stan se nalazi na nivou visokog prizemlja(2.5 m do donje ivice prozora). Sastoji se od kupatila, kuhinje, sobe, trpezarije i prostrane terese od 27,5 m2 koja je orijentisana ka dvorištu kome samo ovaj stan ima pristup. Ispod stana se nalazi podrumska prostorija površine 76 m2 koja pripada stanu. Mogućnost adaptacije u stambeni prostor. Nekretnina je zanimljiva i kao poslovni prostor jer se prostor može iskoristiti za više namena kao i zbog neposredne blizine autoputa. Zgrada je u procesu ozakonjenja , moguća overa kod notara. Kontakt 060... (prikaži broj telefona) Broj u registru posrednika 1308 Agencijska provizija 2%
*Sačuvaj oglas uz belešku i primaj obaveštenja o njihovom pojeftinjenju ili pojavljivanju sličnih
Prikaz stana na mapi
Parkovi u blizini
- Dečje igralište15 min
- Dečje igralište22 min
- Dečje igralište22 min

Obeležja kulture u blizini
- Ičkova kuća15 min
- Livnica Pantelić17 min
- Kuća porodice Karamata17 min

Škole/Fakulteti/Vrtići u blizini
- Osnovna škola (Osnovna škola Sava Šumanović)6 min
- Srednja škola (Srednja politehnička škola Politehnika)8 min
- Vrtić (Dečiji vrtić Detlić)7 min
- Fakultet (Visoka zdravstvena škola strukovnih studija u Beogradu)9 min

- Bolnica (Hirurška ordinacija Renova)7 min
- Klinika (Poliklinika O2)12 min
- Teretana (Fitness centar Vulkan Gym)5 min
- Prodavnica (Mini market Dragan)3 min
- Restoran (Restoran Mrvica u meraku)manje od 1 min
- Kafana (Kafana Biblioteka kod Majora)19 min
- Taksi stajalište (Taxi stanica)6 min
- Autobuska stanica (Ratarski put)3 min
- Banka (Alta Banka Altina)6 min
- Pošta (Pošta Beograd 146)6 min
Kontakt oglašivača
Stambeni krediti
- Period otplate od
96 -360 meseca
- NKS 4.75%
EKS 5.74%
Fiksna kamatna stopa
- Bez troškova obrade kredita
- Period otplate od
96 -360 meseca
- NKS 4.34%
Kombinovana kamatna stopa
- Bez troškova obrade kredita
- Odobrenje kredita do 48h
stranici kreditnih kalkulatora
Keš krediti
Period otplate
13 meseci
