Trosoban stan na prodaju, Adice, 99.081€, 53m²






99.081 €
1.869 € / m2
- Stan u zgradi
- Oglas oglašava agencija pod reg. brojem 1596
Opis oglasa
Prodaja stana 53m² – Adice, Novi Sad | Miran deo | Cena sa PDV-om – Agencija Kompas
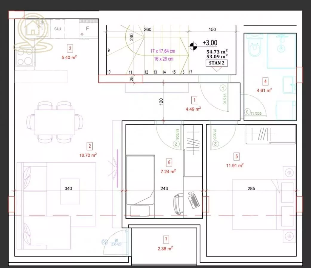
Na prodaju stan površine 53m² u mirnom delu Adica, Novi Sad. Stan se nalazi u novogradnji odličnog kvaliteta gradnje, u blizini škole, vrtića i prodavnica, idealno pozicioniran za porodičan život ili investiciju za izdavanje.
Osnovne informacije:
Lokacija: Adice, Novi Sad
Kvadratura: 53m²
Cena: 1.815 €/m² sa PDV-om
Tip objekta: Stan u zgradi (novogradnja)
Uknjiženje: U toku / Mogućnost kupovine preko kredita
Grejanje: Etažno / Centralno (zavisno od objekta)
Stanje: Nov, useljiv
Lift: Da (u zavisnosti od ulaza)
Pogodno za: Porodice, parove, investitore
Lokacija i okruženje:
Stan se nalazi u mirnom i bezbednom delu Adica, idealnom za porodični život. U neposrednoj blizini se nalaze osnovna škola, vrtić, market, javni prevoz i park. Odlična povezanost sa centrom grada i Novim Naseljem.
Prednosti:
Cena 1.815 €/m² sa PDV-om
Mirna lokacija – idealna za porodice
Blizina škole i vrtića
Kvalitetna novogradnja
Mogućnost kupovine putem kredita
Kontakt:
Agencija Kompas Nekretnine
Kontaktirajte nas za sve dodatne informacije i dogovor oko razgledanja stana.
Agencijska provizija se naplaćuje u skladu sa uslovima poslovanja.
*Sačuvaj oglas uz belešku i primaj obaveštenja o njihovom pojeftinjenju ili pojavljivanju sličnih
Prikaz stana na mapi
Parkovi u blizini
- Park Bistrica49 min

Obeležja kulture u blizini
- Dvorac Hadik-Kotek17 min
- Dvorac Eđšeg17 min
- Jodna Banja18 min

Škole/Fakulteti/Vrtići u blizini
- Osnovna škola (Osnovna škola Marija Trandafil)manje od 1 min
- Srednja škola (Privatna medicinska škola Dositej Obradović)8 min
- Vrtić (Dečiji vrtić Anđeo čuvar)6 min
- Fakultet (Protestantski teološki fakultet)10 min

- Bolnica (Ginekološka bolnica Ferona)9 min
- Klinika (Poliklinika Consilium)10 min
- Teretana (Fintess centar Basic Control Academy)9 min
- Prodavnica (Mikromarket)1 min
- Restoran (Restoran Exit West)28 min
- Kafana (Kafanica Kod Dače)45 min
- Taksi stajalište (Taxi prevoz Novi Sad)34 min
- Autobuska stanica (Veternička - Fešter osnovna škola)1 min
- Banka (Erste Bank Ekspres ekspozitura)10 min
- Pošta (Pošta Novi Sad 21142)6 min
Kontakt oglašivača
Krediti OTP banke
Saznaj više
Prikazana rata odnosi se na maksimalni period otplate. Kalkulator je informativnog karaktera.
* Nakon isteka 5 godina, prelazi se na varijabilnu kamatnu stopu


