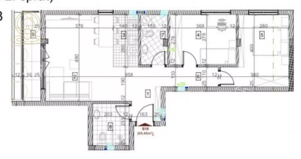
Troiposoban stan na prodaju, Adice, 139.020€, 80m²








139.020 €
1.738 € / m2
- Stan u zgradi
- Etažno grejanje
- U izgradnji
- Prostorije: terasa
- Opremljenost: Prazno - internet, interfon, klima
- Oglas oglašava agencija pod reg. brojem 1596
- 1 garažno mesto
- 1 parking mesto
- 1 lift
- Kablovska
- 1 telefonska linija
Opis oglasa
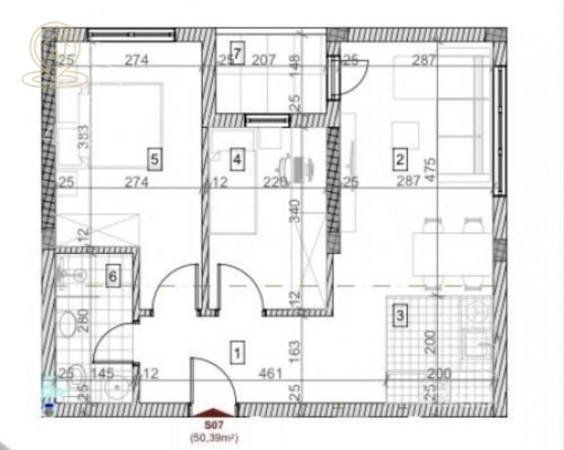
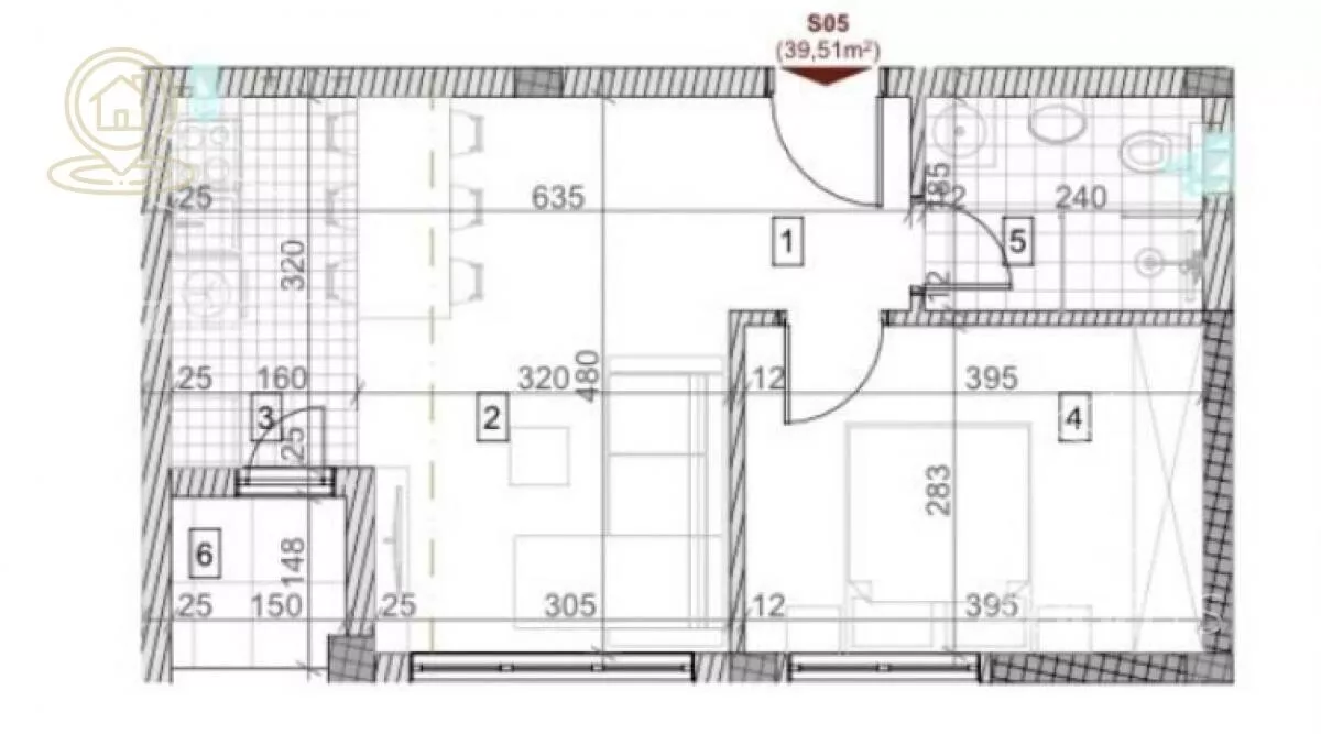
Prodaja stanova Novi Sad – Stanovi u izgradnji na Adicama u mirnom i porodičnom okruženju, kvadrature od 36m² do 79m².
U ponudi su jednosobni, dvosobni i trosobni stanovi, savršeni za porodično stanovanje ili investiciju. Zgrada se nalazi na odličnoj lokaciji u okviru projekta Adice Kvartet, koji nudi pouzdan kvalitet gradnje i funkcionalan raspored prostorija.
Rok završetka radova je jun 2026. godine + 60 dana tolerancije.
Zgrada je već ozidana, a trenutno su u toku unutrašnji radovi, što omogućava potencijalnim kupcima da isprate sve faze izgradnje.
Mogućnost odabira strukture stana prema vašim potrebama
Idealan izbor za sve koji traže mirno okruženje, a da su istovremeno blizu centra grada
Ako vas interesuje prodaja stanova u Novom Sadu na atraktivnoj lokaciji, ovaj projekat predstavlja odličnu priliku!
Za više informacija i zakazivanje obilaska, kontaktirajte naš prodajni tim.
Agencijska provizija u skladu sa opštim uslovima poslovanja.
Kompas Nekretnine – vaš pouzdan partner u kupovini i prodaji nekretnina.
*Sačuvaj oglas uz belešku i primaj obaveštenja o njihovom pojeftinjenju ili pojavljivanju sličnih
Prikaz stana na mapi
Obeležja kulture u blizini
- Dvorac Eđšeg16 min
- Jodna Banja17 min
- Dvorac Hadik-Kotek19 min

Škole/Fakulteti/Vrtići u blizini
- Osnovna škola (Privatna osnovna škola Sveti Kirilo i Metodije)5 min
- Srednja škola (Privatna medicinska škola Dositej Obradović)7 min
- Vrtić (Dečiji vrtić Anđeo čuvar)5 min
- Fakultet (Protestantski teološki fakultet)9 min

- Bolnica (Opšta bolnica sa porodilištem Gea)8 min
- Klinika (Poliklinika Consilium)10 min
- Teretana (Fintess centar Basic Control Academy)8 min
- Prodavnica (Mikromarket)11 min
- Restoran (Restoran Exit West)32 min
- Kafana (Kafanica Kod Dače)46 min
- Taksi stajalište (Taxi prevoz Novi Sad)33 min
- Autobuska stanica (Veternička - Marije Bursać)11 min
- Banka (Erste Bank Ekspres ekspozitura)5 min
- Pošta (Pošta Novi Sad 21142)5 min
Kontakt oglašivača
Krediti OTP banke
Saznaj više
Prikazana rata odnosi se na maksimalni period otplate. Kalkulator je informativnog karaktera.
* Nakon isteka 5 godina, prelazi se na varijabilnu kamatnu stopu


