Troiposoban stan na prodaju, Adice, 120.640€, 76m²


120.640 €
1.587 € / m2
- Stan u zgradi
- Grejanje na toplotnu pumpu
- U izgradnji
- Prostorije: kupatilo, toalet, terase (2)
- U procesu uknjižavanja
- Oglas oglašava agencija pod reg. brojem 1781
Opis oglasa
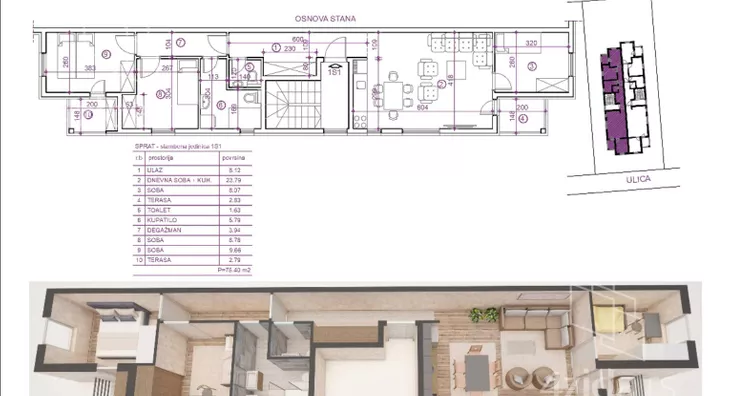
Troiposoban Stan 76m2
Stan u izgradnji nalazi se na prvom spratu urbane vile, trostrano orjentisan, odličnog rasporeda na mirnoj lokaciji.
Stan se sastoji od: prostrane dnevne sobe sa kuhinjom, i još 3 sobe, toaleta, kupatila, dve terase (jedne na izlazu iz dnevne sobe, i jedne na izlazu iz spavaćeg dela) i hodnika.
Planiran završetak radova druga polovina 2026. god.
- Moguća kupovina putem redovnih stambenih kredita.
- Navedena cena je sa PDV-om, kupci prve nekretnine imaju pravo na povrat PDV-a.
- Na ugovorenu cenu stana se dodatno obračunava agencijska provizija 3%.
Za sve dodatne informacije i dogovor oko razgledanja stana, kontaktirajte nas na telefon 065... (prikaži broj telefona) , Select Nekretnine, Registar posrednika br. 1781.
*Sačuvaj oglas uz belešku i primaj obaveštenja o njihovom pojeftinjenju ili pojavljivanju sličnih
Prikaz stana na mapi
Parkovi u blizini
- Park Bistrica49 min

Obeležja kulture u blizini
- Dvorac Eđšeg14 min
- Jodna Banja14 min
- Galerija Matice srpske18 min

Škole/Fakulteti/Vrtići u blizini
- Osnovna škola (Privatna osnovna škola Sveti Kirilo i Metodije)9 min
- Srednja škola (Privatna medicinska škola Dositej Obradović)7 min
- Vrtić (Dečiji vrtić Radosnica)8 min
- Fakultet (Protestantski teološki fakultet)6 min

- Bolnica (Ginekološka bolnica Ferona)5 min
- Klinika (Poliklinika Consilium)6 min
- Teretana (Fintess centar Basic Control Academy)6 min
- Prodavnica (Gomex market)8 min
- Restoran (Restoran Exit West)22 min
- Kafana (Kafanica Kod Dače)32 min
- Taksi stajalište (Taxi prevoz Novi Sad)19 min
- Autobuska stanica (Veternička - Kragujevačka)manje od 1 min
- Banka (Erste Bank Ekspres ekspozitura)5 min
- Pošta (Pošta Novi Sad 21142)9 min
Kontakt oglašivača
Stambeni krediti

- Period otplate od
96 -360 meseca
- NKS 4.75%
EKS 5.74%
Fiksna kamatna stopa
- Bez troškova obrade kredita
stranici kreditnih kalkulatora
Keš krediti
Period otplate
13 meseci
