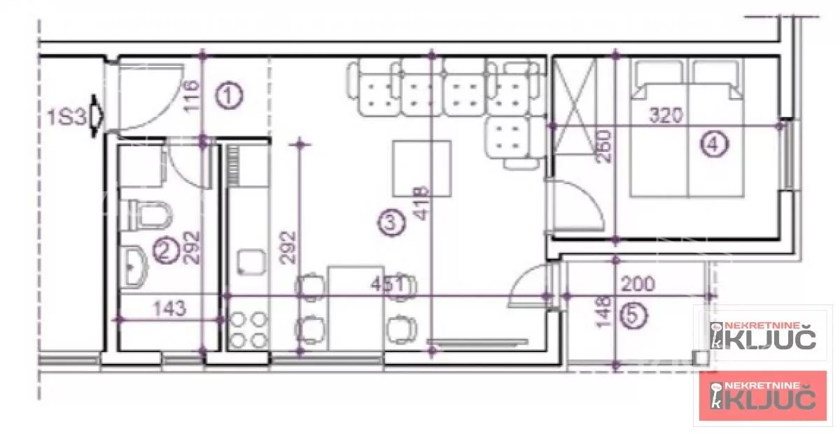
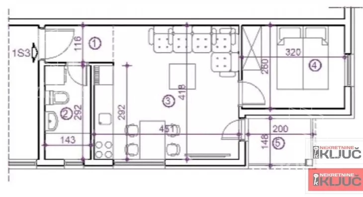
Jednoiposoban stan na prodaju, Adice, 72.100€, 35m²
Adice, Gradske lokacije, Novi Sad
Prikaži mapuŠifra oglasa: 4zida-3917Oglas ažuriran: 31.03.2026.


72.100 €
2.060 € / m2
35 m²
1.5 sobe
2/2 sprata
- Stan u zgradi
- Novo
- Prostorije: terasa
- Opremljenost: Prazno - internet, interfon
- Oglas oglašava agencija pod reg. brojem 360
- Kablovska
- 1 telefonska linija
Opis oglasa
Prodaje se 1.5 stan u NOVOM SADU, ADICE površine 35m2. Stan je u izgradnji. Cena stana je sa pdv. Mirna ulica. Mogučnost kupovine putem stambenog kredita. Dobro povezan sa glavnim saobraćajnicama. Stan zavređuje pažnju. Pozovite da pogledate.
*Sačuvaj oglas uz belešku i primaj obaveštenja o njihovom pojeftinjenju ili pojavljivanju sličnih
Prikaz stana na mapi
Parkovi u blizini
- Park Bistrica47 min

Obeležja kulture u blizini
- Jodna Banja14 min
- Dvorac Hadik-Kotek14 min
- Dvorac Eđšeg15 min

Škole/Fakulteti/Vrtići u blizini
- Osnovna škola (Osnovna škola Marija Trandafil)manje od 1 min
- Srednja škola (Privatna medicinska škola Dositej Obradović)6 min
- Vrtić (Dečiji vrtić Zlatokosa)5 min
- Fakultet (Protestantski teološki fakultet)11 min

Zdravlje
- Bolnica (Ginekološka bolnica Ferona)10 min
- Klinika (Family Medica poliklinika)11 min
- Teretana (Fintess centar Basic Control Academy)8 min
Hrana i piće
- Prodavnica (Mikromarket)1 min
- Restoran (Restoran Exit West)28 min
- Kafana (Kafanica Kod Dače)45 min
Prevoz
- Taksi stajalište (Taxi prevoz Novi Sad)34 min
- Autobuska stanica (Veternička - Fešter osnovna škola)1 min
Ostale ustanove
- Banka (Erste Bank Ekspres ekspozitura)10 min
- Pošta (Pošta Veternik 21203)5 min
Kontakt oglašivača
▾Reklama▾
Krediti OTP banke
Bez troškova obrade kredita
NKS 4.50% - EKS 5.74%
Period otplate 96 -360 meseca
Saznaj više
Prikazana rata odnosi se na maksimalni period otplate. Kalkulator je informativnog karaktera.
* Nakon isteka 5 godina, prelazi se na varijabilnu kamatnu stopu
Osiguranje domaćinstva online
Osiguraj svoje domaćinstvo u slučaju požara...


