Jednoiposoban stan na prodaju, Adice, 90.640€, 40m²






90.640 €
2.266 € / m2
- Stan u zgradi
- Grejanje na gas
- U izgradnji
- Prostorije: terasa
- Oglas oglašava agencija pod reg. brojem 217
- 1 parking mesto
- Godina izgradnje: 2026.
Opis oglasa
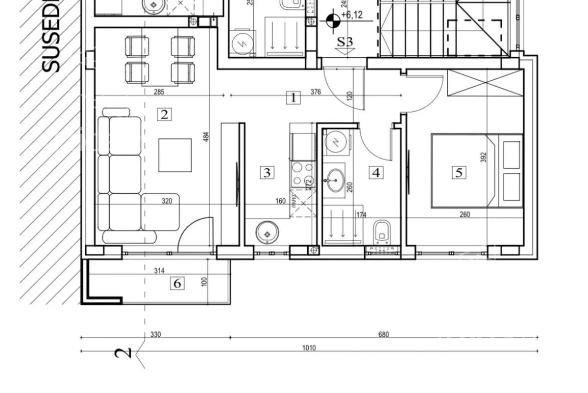
Jednoiposoban stan 40m u izgradnji na Adicama
Lokacija: Adice (Srbija, Novi Sad, Novi Sad)
Ulica i broj: Adice
Sobnost: Jednoiposoban
Kvadratura: 40m2
Stanje objekta: U izgradnji
Grejanje: Gas
Nivo u zgradi: 1. sprat
Dodatne informacije
Terasa, Internet, Satelitska, kablovska TV, Klima
Tekst oglasa
064... (prikaži broj telefona)
063... (prikaži broj telefona)
Oglašavamo prodaju stana 40m u izgradnji na Adicama u Novom Sadu, stan se nalazi na I spratu zgrade. Stan se sastoji od dnevnog boravka sa trpezarijom, kuhinja, spavaća soba, kupatilo i terasa. Stan poseduje svoje parking mesto. Krajem godine je useljenje.
Za sve dodatne informacije pozovite naše agente 064... (prikaži broj telefona) , 063... (prikaži broj telefona) ili dođite do nas Svetozara Miletića 51.
*Sačuvaj oglas uz belešku i primaj obaveštenja o njihovom pojeftinjenju ili pojavljivanju sličnih
Prikaz stana na mapi
Parkovi u blizini
- Park Bistrica47 min

Obeležja kulture u blizini
- Jodna Banja14 min
- Dvorac Hadik-Kotek14 min
- Dvorac Eđšeg15 min

Škole/Fakulteti/Vrtići u blizini
- Osnovna škola (Osnovna škola Marija Trandafil)manje od 1 min
- Srednja škola (Privatna medicinska škola Dositej Obradović)6 min
- Vrtić (Dečiji vrtić Zlatokosa)5 min
- Fakultet (Protestantski teološki fakultet)11 min

- Bolnica (Ginekološka bolnica Ferona)10 min
- Klinika (Family Medica poliklinika)11 min
- Teretana (Fintess centar Basic Control Academy)8 min
- Prodavnica (Mikromarket)1 min
- Restoran (Restoran Exit West)28 min
- Kafana (Kafanica Kod Dače)45 min
- Taksi stajalište (Taxi prevoz Novi Sad)34 min
- Autobuska stanica (Veternička - Fešter osnovna škola)1 min
- Banka (Erste Bank Ekspres ekspozitura)10 min
- Pošta (Pošta Veternik 21203)5 min
Kontakt oglašivača
Krediti OTP banke
Saznaj više
Prikazana rata odnosi se na maksimalni period otplate. Kalkulator je informativnog karaktera.
* Nakon isteka 5 godina, prelazi se na varijabilnu kamatnu stopu


